500 000 Р 6 160 $ или 5 320

Информация об помещении

3
Этаж

Состояние и оснащение

Количество этажей
3
Развернуть
Агент
РБН Воронеж
+7 (910) 281-80-56
Начать чат с агентом

Помещение свободного назначения в Воронежская область, Воронеж Задонье ...

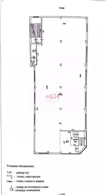
Сдается помещение свободного назначения 550 м в ТЦ НИК, ЖК Грин Парк (ЖМ Задонье)От собственника без комиссии Характеристика помещения и расположения:- 3й этаж;- есть лифт;- все коммуникации подведены (водоснабжение, отопление, канализация);- мощность электроэнергии - 30 кВт;- отличное расположение в сердце Грин Парка, район продолжает застраиваться;- хороший авто и пешеходный трафик.Отлично подойдет под: спортивные секции, развивающий, образовательный центры, танцевальный клуб, йога-центр.По всем вопросам обращаться к Белоглазовой Юлии.Арт.

Читать полностью
    Позвонить Написать
    500 000 Р6 160 $ или 5 320
    Агент
    РБН Воронеж
    +7 (910) 281-80-56
    Начать чат с агентом
    Похожие предложения
    Помещение свободного назначения в Воронежская область, Воронеж ул. ... - Фото 1
    Помещение свободного назначения в Воронежская область, Воронеж ул. ... - Фото 2
    Сдается помещение 400 м, полностью оборудованное под общепит в центре города.Заведение работает в качестве ресторана более 20 лет.Уникальность:- 2 печи с открытым огнем и мощной вытяжкой на крышу- расположено в НЕЖИЛОМ здании- готовая кухня с исправными...
    • 1/12 эт.
    500 000 Р
    Агент
    +7 (910) Показать номер
    Посмотреть контакты
    Помещение свободного назначения в Воронежская область, Воронеж ... - Фото 1
    Помещение свободного назначения в Воронежская область, Воронеж ... - Фото 2
    Арт.Сдам в аренду в отдельно стоящем здании торговые и офисные площади. Здание располагается на Московском проспекте, в районе пересечения с ул. Лизюкова. На данный момент предлагается торговая площадь на первом этаже площадью 419 кв. м. в новом пристроенном...
    • 1/4 эт.
    502 800 Р
    Агент
    +7 (986) Показать номер
    Посмотреть контакты
    Помещение свободного назначения в Воронежская область, Воронеж ... - Фото 1
    Помещение свободного назначения в Воронежская область, Воронеж ... - Фото 2
    Помещение в центре города с высоким как автомобильным, так и пешеходным трафиком.Огромные витражные окна позволят стать ближе к вашим клиентам и заинтересовать их внимание.Все коммуникации проведены, помещение полностью готово к эксплуатации.В радиусе...
    • 1/9 эт.
    510 000 Р
    Агент
    +7 (910) Показать номер
    Посмотреть контакты
    Помещение свободного назначения в Воронежская область, Воронеж ... - Фото 1
    Помещение свободного назначения в Воронежская область, Воронеж ... - Фото 2
    Сдаётся двухэтажное помещение в жилом доме под любые цели Площадь: 632 м2Идеальное расположение: Первая линия отличная видимость и проходимость Высокий трафик пешеходный и автомобильный. Рядом развитая инфраструктура, магазины (Пятерочка, Магнит),...
    • 1/5 эт.
    500 000 Р
    Агент
    +7 (934) Показать номер
    Посмотреть контакты
    Помещение свободного назначения в Москва ул. Академика Янгеля, 8А (220 ... - Фото 1
    Помещение свободного назначения в Москва ул. Академика Янгеля, 8А (220 ... - Фото 2
    Сдам в аренду пoмещение свободнoго нaзначения пo aдрeсу: ул. Акадeмикa Янгeля, 8AИдeальное рeшeниe для cклaда, пpoизвoдcтва и дpугих цeлей Общая площадь 220 м с coбствeннoй бoльшoй зaкрытoй терpитоpией (кaк показанo нa фотo), гдe удобнo пaрковать aвтомoбили,...
    • 1/1 эт.
    506 000 Р
    Агент
    +7 (915) Показать номер
    Посмотреть контакты

    Не нашли подходящего объявления?

    Оставьте заявку, и наши риэлторы подберут псн в районе Воронежа

    (0)