500 000 Р 6 580 $ или 5 500

Информация об помещении

1
Этаж

Состояние и оснащение

Количество этажей
12
Развернуть
Агент
+7 (910) 281-80-56
Начать чат с агентом

Помещение свободного назначения в Воронежская область, Воронеж ул. ...

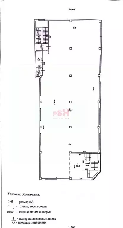
Сдается помещение 400 м, полностью оборудованное под общепит в центре города.Заведение работает в качестве ресторана более 20 лет.Уникальность:- 2 печи с открытым огнем и мощной вытяжкой на крышу- расположено в НЕЖИЛОМ здании- готовая кухня с исправными инженерными системами- уютный интерьерПоблизости БЦ, административные здания, медицинские и образовательные учреждения и другие объекты социальной и деловой инфраструктуры.Локация и фото изменены. Информация предоставляется только при личном общении Характеристики объекта:- центр города - 3 уровня, входная группа с 1-го этажа- кухня занимает 30 от всего заведения- все инженерные системы в порядке- большие электрические мощностиАрт.

Читать полностью
    Позвонить Написать
    500 000 Р6 580 $ или 5 500
    Агент
    +7 (910) 281-80-56
    Начать чат с агентом
    Похожие предложения
    Помещение свободного назначения в Воронежская область, Воронеж ... - Фото 1
    Помещение свободного назначения в Воронежская область, Воронеж ... - Фото 2
    Сдается помещение 400 м, полностью оборудованное под общепит в центре города.Заведение работает в качестве ресторана более 20 лет.От собственника. Без комиссии.Уникальность:- 2 печи с открытым огнем и мощной вытяжкой на крышу- расположено в НЕЖИЛОМ здании-...
    • 1/12 эт.
    500 000 Р
    Агент
    +7 (910) Показать номер
    Посмотреть контакты
    Помещение свободного назначения в Воронежская область, Воронеж ... - Фото 1
    Помещение свободного назначения в Воронежская область, Воронеж ... - Фото 2
    Помещение в центре города с высоким как автомобильным, так и пешеходным трафиком.Огромные витражные окна позволят стать ближе к вашим клиентам и заинтересовать их внимание.Все коммуникации проведены, помещение полностью готово к эксплуатации.В радиусе...
    • 1/9 эт.
    510 000 Р
    Агент
    +7 (985) Показать номер
    Посмотреть контакты
    Помещение свободного назначения в Воронежская область, Воронеж ул. ... - Фото 1
    Помещение свободного назначения в Воронежская область, Воронеж ул. ... - Фото 2
    Отдельно стоящее здание свободной планировки под коммерческие цели .Уважаемые Господа Предлагаем вашему вниманию к рассмотрению уникальное предложение по аренде отдельно стоящего здания, идеально подходящего для организации производственного, логистического,...
    • 1/1 эт.
    499 000 Р
    Агент
    +7 (919) Показать номер
    Посмотреть контакты
    Помещение свободного назначения в Воронежская область, Воронеж Задонье ... - Фото 1
    Помещение свободного назначения в Воронежская область, Воронеж Задонье ... - Фото 2
    Сдается помещение свободного назначения 550 м в ТЦ НИК, ЖК Грин Парк (ЖМ Задонье)От собственника без комиссии Характеристика помещения и расположения:- 3й этаж;- есть лифт;- все коммуникации подведены (водоснабжение, отопление, канализация);- мощность...
    • 3/3 эт.
    500 000 Р
    Агент
    +7 (910) Показать номер
    Посмотреть контакты
    Помещение свободного назначения в Москва Садовническая ул., 80 (86 м) - Фото 1
    Помещение свободного назначения в Москва Садовническая ул., 80 (86 м) - Фото 2
    ID 6211. Сдается в аренду помещение в районе Замоскворечье площадью 85.8 кв.м. на первом этаже с отдельным входом со стороны улицы Садовническая. Витринные окна, несколько мокрых точек , высота потолка 4 м. Выполнен дизайнерский ремонт. Коммунальные...
    • 1/6 эт.
    500 000 Р
    Агент
    +7 (919) Показать номер
    Посмотреть контакты

    Не нашли подходящего объявления?

    Оставьте заявку, и наши риэлторы подберут псн в районе Воронежа

    (0)