Реализация объекта недвижимости приостановлена

Информация о квартире

154.0 м2
Площадь
4
Комнаты
14
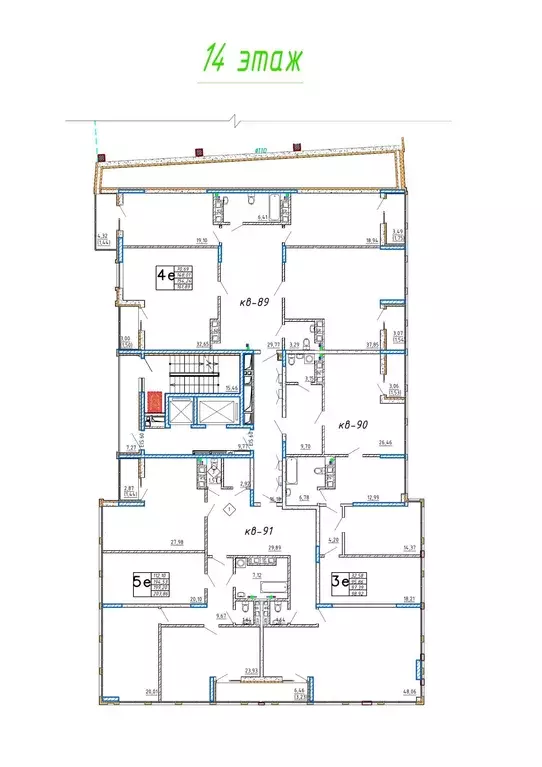
Этаж
14
Этажность
Развернуть

4-к кв. Воронежская область, Воронеж ул. Ленина, 58 (154.24 м)

Продаётся 4-комнатная квартира в строящемся доме (Дом 1), срок сдачи: IV-кв. 2027, общей площадью 154.24 кв.м., на 14 этаже. ЖИЛОЙ ДОМ НА УЛИЦЕ ЛЕНИНА СТАРТ ПРОДАЖ САМЫЕ ВЫГОДНЫЕ ЦЕНЫ КВАРТИРЫ В НОВОСТРОЙКЕ ОТ НАДЕЖНОГО ЗАСТРОЙЩИКАВВОД В ЭКСПЛУАТАЦИЮ 4 кв. 2027 года•ПРОЕКТНОЕ ФИНАНСИРОВАНИЕ СБЕР БАНК•СТРОИТЕЛЬСТВО В СООТВЕТСТВИИ С ФЗ ОТ 30.12.2004 N 214-ФЗ ОБ УЧАСТИИ В ДОЛЕВОМ СТРОИТЕЛЬСТВЕ МНОГОКВАРТИРНЫХ ДОМОВ И ИНЫХ ОБЪЕКТОВ НЕДВИЖИМОСТИ И О ВНЕСЕНИИ ИЗМЕНЕНИЙ В НЕКОТОРЫЕ ЗАКОНОДАТЕЛЬНЫЕ АКТЫ РОССИЙСКОЙ ФЕДЕРАЦИИ •БЕЗОПАСНЫЕ РАСЧЕТЫ, ПРОДАЖА КВАРТИР ЧЕРЕЗ СЧЕТА ЭСКРОУ•ИПОТЕКА.ГОСПОДДЕРЖКА.АККРЕДИТАЦИЯ СБЕР БАНК, ДОМ.РФ, АЛЬФА БАНК, ВТБ, СОВКОМБАНК, ПРОМСВЯЗЬБАНК.•СНИЖЕННЫЕ СТАВКИ ПО КРЕДИТАМ И СПЕЦИАЛЬНЫЕ ПРОГРАММЫ НА АККРЕДИТОВАННЫЙ ОБЪЕКТ•ДОМ В САМОМ ЦЕНТРЕ ГОРОДА ВОРОНЕЖА УДОБНАЯ ТРАНСПОРТНАЯ ЛОГИСТИКА.•ЗАКРЫТОЕ БЛАГОУСТРОЕННОЕ ДВОРОВОЕ ПРОСТРАНСТВО•КРЫШНАЯ КОТЕЛЬНАЯ•ВЫБОР ЭТАЖЕЙ И ПЛАНИРОВОК•РАЗВИТАЯ СОВРЕМЕННАЯ ИНФРАСТРУКТУРАДобро пожаловать в новый Жилой дом на улице Ленина, расположенный в самом центре города Проект дома идеален для тех, кто ценит комфорт городской жизни Это 14-этажный дом с 3-уровневой подземной парковкой, возводимый в Центральном районе г. Воронежа на ул. Ленина. Жизнь в центре города открывает доступ ко всем ключевым объектам городской инфраструктуры.Благодаря продуманному расположению дом уникален своими видовыми характеристиками. С верхних этажей дома открывается потрясающий вид на панораму левого берега Воронежа.Жилой дом расположен в непосредственной близости от зеленой зоны в шаговой доступности (10-15 минут) находится один из крупнейших парковых объектов на территории города Воронежский Центральный парк (прежнее название Динамо ), который является Памятником природы регионального значения. Такое соседство создает идеальные условия для прогулок и активного отдыха на свежем воздухе.Дом на ул. Ленина оборудован подземным 3-уровневым паркингом.На 3 подземных этажах дома размещены 62 парковочных места, а также 34 кладовки.ДОСТУПНАЯ РАЗВИТАЯ ИНФРАСТРУКТУРА, торговые точки, детский садик, парковая зона, остановка общественного транспорта.В непосредственной близости находятся детские сады и школы, вузы, сетевые магазины, парк, аптеки, спортивные комплексы и фитнес-центры.Жилой дом выполнен в современном стиле с использованием качественных материалов, что подчеркивает красоту и статус дома.Четкость форм, минимализм и лаконичная отделка фасада делают его настоящим украшением городской среды. Прямая продажа от Застройщика.ВВОД В ЭКСПЛУАТАЦИЮ 4 кв. 2027 года

Читать полностью

    Реализация объекта недвижимости приостановлена

    Не нашли подходящего объявления?

    Оставьте заявку, и наши риэлторы подберут квартиру в новостройке в районе Воронежа

    (0)