406 000 Р 5 190 $ или 4 470

Информация об помещении

1
Этаж

Состояние и оснащение

Количество этажей
3
Развернуть
Агент
+7 (910) 040-71-57
Начать чат с агентом

Помещение свободного назначения в Воронежская область, Воронеж ...

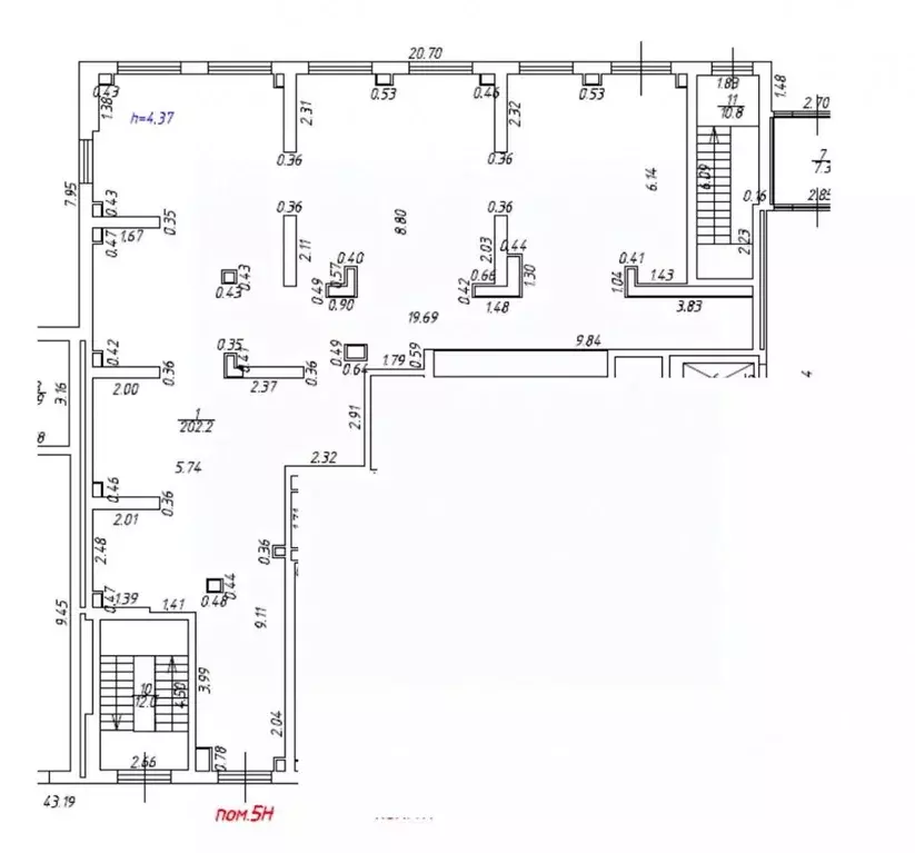
Сдается первый этаж 406м2 , двухэтажного торгового центра Ваш Выбор на пересечении Московского проспекта и улицы Хользунова ,на данный момент арендатор салон дверей , аренда до марта 2026 г. На втором этаже арендатор Fix Price. Высота потолка 3.95, полы керамогранит 0.6*0.6 ,два входа , собственная газовая котельная , мощность электроэнергии 30 кВт. .Рассмотрим различные варианты использования. Коммунальные оплачиваются отдельно. Звоните

Читать полностью
    Позвонить Написать
    406 000 Р5 190 $ или 4 470
    Агент
    +7 (910) 040-71-57
    Начать чат с агентом
    Похожие предложения
    Помещение свободного назначения в Воронежская область, Воронеж просп. ... - Фото 1
    Помещение свободного назначения в Воронежская область, Воронеж просп. ... - Фото 2
    Сдается в аренду складское помещение на Пр. Труда (территория Станкозавода) 1060 мОт собственника, без комиссии.Характеристика помещения:- высота потолков -12 м;- мощность электроэнергии - 50 кВт;- собственная парковка;- без отопления.Характеристика месторасположения:-...
    • 1/1 эт.
    400 000 Р
    Агент
    +7 (910) Показать номер
    Посмотреть контакты
    Помещение свободного назначения (294 м) - Фото 1
    Помещение свободного назначения (294 м) - Фото 2
    Объект №5979. Сдается уникальный объект - нежилое помещение 294,1м2 на ул. Большая Морская, 46. Отличная локация под любой вид деятельности на супер трафике в самом центре города. Большие фасадные окна, высокие потолки, выделенная линия электроснабжения...
    • 1/3 эт.
    400 000 Р
    Агент
    +7 (965) Показать номер
    Посмотреть контакты
    Помещение свободного назначения (106 м) - Фото 1
    Помещение свободного назначения (106 м) - Фото 2
    Сдается помещение свободного назначения в ЖК Открытый парк - 106,1 кв.м.Бетон после сдачи дома, предоставляются арендные каникулы.Высота потолков - 4,1м, электрическая мощность - 21 кВт с возможностью увеличения.Помещение угловое, прямо на заезде в микрорайон...
    • 1/17 эт.
    400 000 Р
    Агент
    +7 (985) Показать номер
    Посмотреть контакты
    Помещение свободного назначения в Москва Дорожная ул., 46к1 (202 м) - Фото 1
    Помещение свободного назначения в Москва Дорожная ул., 46к1 (202 м) - Фото 2
    Сдаётся помещение с большим количеством окон и 2мя входами ЖК Ютаново - локация с максимальным пешеходным и автомобильным трафиком. Это - самая трафиковая точка в ЖК, что делает объект идеальным для любого бизнеса, ориентированного на поток: от торговли...
    • 1/33 эт.
    400 000 Р
    Агент
    +7 (923) Показать номер
    Посмотреть контакты
    Помещение свободного назначения в Москва Ратная ул., 8А (180 м) - Фото 1
    Помещение свободного назначения в Москва Ратная ул., 8А (180 м) - Фото 2
    г. Москва, ул. Ратная, д. 8А. 15 минут пешком от метро Бульвар Дмитрия Донского. Сдается помещение 180,7 кв.м на первом этаже отдельностоящего торгового здания. Отдельный вход, витринные окна. Высота потолка 3,20 м. Центральное отопление, водоснабжение...
    • 1/1 эт.
    400 000 Р
    Агент
    +7 (985) Показать номер
    Посмотреть контакты

    Не нашли подходящего объявления?

    Оставьте заявку, и наши риэлторы подберут псн в районе Воронежа

    (0)