57 210 Р 731 $ или 630

Информация об помещении

1
Этаж

Состояние и оснащение

Количество этажей
22
Развернуть
Агент
+7 (985) 657-00-14
Начать чат с агентом

Помещение свободного назначения в Воронежская область, Воронеж ул. ...

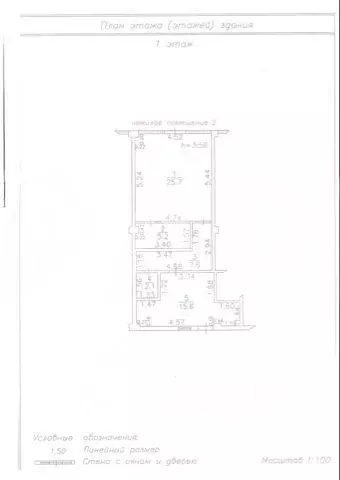
Коммерческое помещение свободного назначения в ЖК Октябрьский в Ленинском районе Воронежа. В данном ЖК так же есть помещение ( 51,53,48,57 метров) Особенности помещения: • Отдельный вход и санузел. • Черновая отделка, подведены электричество, вода и канализация. • Возможность размещения рекламных вывесок на фасаде здания для привлечения клиентов.Преимущества месторасположения: • ЖК Октябрьскийассчитан на 400 жителей, есть наземный паркинг. • Удобное расположение вблизи центра города, в районе с активной деловой жизнью. • Рядом находятся детские сады, школы, деловые и торговые центры: ТРЦ Галерея Чижова , Европа , ТЦ Солнечный Пассаж и другие. • Отличная транспортная доступность: развитая сеть общественного транспорта позволяет легко добраться в любую часть города.Звоните для получения актуальной информации.

Читать полностью
    Позвонить Написать
    57 210 Р731 $ или 630
    Агент
    +7 (985) 657-00-14
    Начать чат с агентом
    Похожие предложения
    Помещение свободного назначения в Воронежская область, Воронеж ул. ... - Фото 1
    Помещение свободного назначения в Воронежская область, Воронеж ул. ... - Фото 2
    Предлагается к продаже помещение свободного назначения в Жилом Доме Октябрьский неподалеку от центра Воронежа - в Ленинском районе.Данный вариант отлично подходит под любой вид коммерческой деятельности таких как: фитнес-студия, спортивные секции, салоны...
    • 1/19 эт.
    56 637 Р
    Агент
    +7 (980) Показать номер
    Посмотреть контакты
    Помещение свободного назначения в Воронежская область, Воронеж ул. ... - Фото 1
    Помещение свободного назначения в Воронежская область, Воронеж ул. ... - Фото 2
    Аренда офиса 75 м/кв ; Расположен на 2-м этаже офисного блока; Внутри собственный санузел/ рукомойникОтдельный вход с 1-го этажа, видео-домофон с 1-го этажа. Авто-парковка перед входом на 5 автоул Свободы пересечение с ул Кольцовская, Рядом остановка...
    • 2/3 эт.
    56 250 Р
    Агент
    +7 (980) Показать номер
    Посмотреть контакты
    Помещение свободного назначения в Воронежская область, Воронеж ул. ... - Фото 1
    Помещение свободного назначения в Воронежская область, Воронеж ул. ... - Фото 2
    Сдаётся коммерческое помещение под бизнес в центре города Адрес: ул. 45 Стрелковой дивизии, жилой дом, вход с двора. Идеально для: — Детского развивающего центра — Салона красоты или косметологии — Офиса, студии, магазина Готовое помещение: — Качественный...
    • 1/17 эт.
    56 700 Р
    Агент
    +7 (985) Показать номер
    Посмотреть контакты
    Помещение свободного назначения в Архангельская область, Архангельск ... - Фото 1
    Помещение свободного назначения в Архангельская область, Архангельск ... - Фото 2
    Объект 16205. Вакантно помещение свободного назначения, по адресу: ул. Павла Усова, д. 12 (территория бывшего АПАП-1).Помещение расположено на 1 этаже административного здания, и имеет три отдельных входа (основной - вход с ул. Стрелковая, два - со двора)....
    • 1/1 эт.
    56 000 Р
    Агент
    +7 (911) Показать номер
    Посмотреть контакты
    Помещение свободного назначения в Костромская область, Кострома ул. ... - Фото 1
    Помещение свободного назначения в Костромская область, Кострома ул. ... - Фото 2
    ОТ СОБСТВЕННИКА. БЕЗ КОМИССИИ.* Работаем без выходных и праздников. На связи с 10:00 до 20:00 * Предлагается в субаренду часть помещения свободного назначения общей площадью 31.5 кв. м. плюс общий тамбур и санузел. Преимущества: Первый этаж; Первая линия;...
    • 1/9 эт.
    56 700 Р
    Агент
    +7 (994) Показать номер
    Посмотреть контакты

    Не нашли подходящего объявления?

    Оставьте заявку, и наши риэлторы подберут псн в районе Воронежа

    (0)