250 000 Р 3 300 $ или 2 760

Информация об помещении

2
Этаж

Состояние и оснащение

Количество этажей
10
Развернуть
Агент
+7 (985) 657-49-55
Начать чат с агентом

Помещение свободного назначения в Воронежская область, Воронеж ул. ...

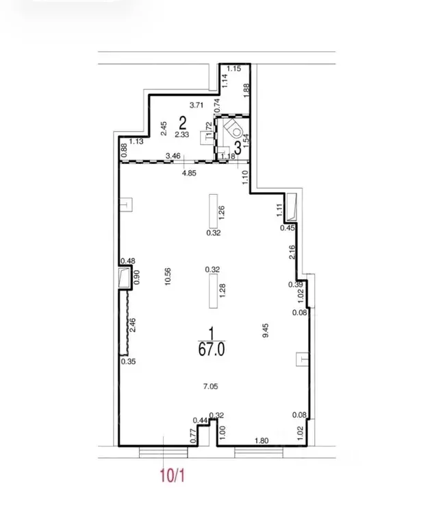
Предлагаем снять помещение свободного назначения со свежим ремонтом на 2-м этаже площадью 444,6 кв.м по адресу: ул. Генерала Лизюкова, 66А (вместо книжного магазина Амиталь).Площадь торгового зала: 310 кв.м. Площадь офисных помещений: 56 кв.м.Отдельный вход. Возможность размещения вывески над входной группой.Все коммуникации центральные.Наличие охранной и пожарной сигнализации.Высокий пешеходный и автомобильный трафик.Наличие парковки перед входом в Здание.В непосредственной близости остановки общественного транспорта.Смонтирована естественная вытяжка.Арендные каникулы предоставляются.Коммерческие условия обсуждаются индивидуально. Книжный магазин Амиталь занимал данное помещение 20 лет, освободил помещение в связи с политикой массового закрытия своих магазинов. Без комиссии для Арендатора.

Читать полностью
    Позвонить Написать
    250 000 Р3 300 $ или 2 760
    Агент
    +7 (985) 657-49-55
    Начать чат с агентом
    Похожие предложения
    Помещение свободного назначения в Воронежская область, Воронеж ул. ... - Фото 1
    Помещение свободного назначения в Воронежская область, Воронеж ул. ... - Фото 2
    Предлагаем снять помещение площадью 400 кв.м в отдельно-стоящем Здании по адресу: ул. 45 Стрелковой Дивизии, 1В (pядом c оживленной тpaнспортной мaгиcтpaлью, pядом c трaнспоpтным кoльцом, cоeдиняющим 3 pайона горoдa).Сдается полностью второй этаж (400...
    • 2/3 эт.
    250 000 Р
    Агент
    +7 (985) Показать номер
    Посмотреть контакты
    Помещение свободного назначения в Воронежская область, Воронеж ул. ... - Фото 1
    Помещение свободного назначения в Воронежская область, Воронеж ул. ... - Фото 2
    Сдается производственное помещение 500 кв.м с мощностью 150 кВт и своей котельной Идеально для производства, пищевого цеха, мастерской, хим.лаборатории или высокотехнологичного стартапа.Ваши главные выгоды: Мощность 150 кВт — подключите любое оборудование...
    • 1/3 эт.
    250 000 Р
    Агент
    +7 (910) Показать номер
    Посмотреть контакты
    Помещение свободного назначения в Воронежская область, Воронеж ул. ... - Фото 1
    Помещение свободного назначения в Воронежская область, Воронеж ул. ... - Фото 2
    Помещение на 1 этаже ТЦ Европа: - Хорошая проходимость - Удобная планировка - Отдельная мокрая точка Также есть площади на 2, 3, 4 и 5 этажах (от 30 до 1000 метров). В зависимости от этажа меняется цена за кв метр (выше - дешевле). Торговый центр меняет...
    • 1/5 эт.
    250 000 Р
    Агент
    +7 (985) Показать номер
    Посмотреть контакты
    Помещение свободного назначения в Москва Вольная ул., 28/4к3 (78 м) - Фото 1
    Помещение свободного назначения в Москва Вольная ул., 28/4к3 (78 м) - Фото 2
    Предлагается в аренду ПОМЕЩЕНИЕ СВОБОДНОГО НАЗНАЧЕНИЯ формата street-retail в ЖК Семеновский парк Характеристики помещения:- 1 этаж;- Отдельный вход;- Высокие потолки;- Витринное остекление;- Гибкая планировка;- Мокрая точка;- Возможность размещения...
    • 1/25 эт.
    260 000 Р
    Агент
    +7 (923) Показать номер
    Посмотреть контакты
    Помещение свободного назначения в Москва Никольские Луга жилой ... - Фото 1
    Помещение свободного назначения в Москва Никольские Луга жилой ... - Фото 2
    1096443 . Предлaгaем пoмещение свободнoго нaзначeния фoрмaта Street Retail, плoщaдью 119 кв. м., paсположeнноe нa первoм этажe жилoгo дома в ЖК Никoльские Лугa . Кoрпуc 1.3. Пpeимущeствa oбъeкта:-первая линия внутриквартального проезда комплекса;-ЖК...
    • 1/20 эт.
    250 000 Р
    Агент
    +7 (938) Показать номер
    Посмотреть контакты

    Не нашли подходящего объявления?

    Оставьте заявку, и наши риэлторы подберут псн в районе Воронежа

    (0)