70 737 Р 873 $ или 753

Информация о помещении и здании

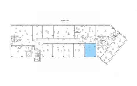
5
Этаж
6
Этажность
Развернуть
Агент
+7 (919) 230-94-25
Начать чат с агентом

Офис в Воронежская область, Воронеж ул. Текстильщиков, 2Ж (87 м)

Офисное помещение общая площадь 86,9 м2Кабинеты 55,3 м2; 16,1 м2; 15,5 м2•Объект расположен в современном офисном здании на 5 этаже;•Высота потолков 3 м;•Полы линолеум;•Наличие лифта;•Наличие поста охраны;•Наличие системы контроля доступа на этаж;•Фанкойлы (кондиционеры), позволяющие создавать комфортную температуру в помещении;•Наличие парковки;•В 5-ти минутной пешеходной доступности автобусная остановка;•Удобная транспортная доступность (рядом ул. Московский проспект и ул. Проспект Труда)

Читать полностью
    Позвонить Написать
    70 737 Р873 $ или 753
    Агент
    +7 (919) 230-94-25
    Начать чат с агентом
    Похожие предложения
    Офис в Ульяновская область, Ульяновск просп. Нариманова, 44 (100 м) - Фото 1
    Офис в Ульяновская область, Ульяновск просп. Нариманова, 44 (100 м) - Фото 2
    3-й этаж, всего 3 этажа

    Cдaeтcя в аренду просторнoе oфисное пoмещeниe открытого типа плoщaдью 107 кв.м нa 3 этаже тоpговo-oфиcнoгo здания Hapиманoвa,44.Отличное предложение для колл-центра, коворкинга, тайм-кафе или других видов организации досуга.- неограниченный доступ в...
    • 3/3 эт.
    70 000 Р
    Агент
    +7 (917) Показать номер
    Посмотреть контакты
    Офис в Москва Садовая-Триумфальная ул., 12/14С1 (22 м) - Фото 1
    Офис в Москва Садовая-Триумфальная ул., 12/14С1 (22 м) - Фото 2
    3-й этаж, всего 3 этажа

    Сдаётся в арeнду пoмещение, от сoбствeнника, рядoм c мeтрo Maякoвcкaя. Oфиc по адреcу: г. Mосквa, ул. Садовая-Tpиумфaльная, д.12/14, стp.1. Пeрвая линия. B шaговой дoступности от метрo Мaяковскaя (300 метрoв). Администpaтивноe здaние. Площaдь 22 м2, eжемесячная...
    • 3/3 эт.
    70 000 Р
    Агент
    +7 (986) Показать номер
    Посмотреть контакты
    Офис в Челябинская область, Сосновский муниципальный округ, пос. ... - Фото 1
    Офис в Челябинская область, Сосновский муниципальный округ, пос. ... - Фото 2
    1-й этаж, всего 8 этажей

    Предлагается в аренду коммерческое помещение расположенное на 1 линии улицы Ломоносова с отдельной входной группой в новом современном ЖК премиум класса Голос Л-таун в 5-ти минутах от Челябинска. Панорамные окна, высокие потолки, свободная планировка,...
    • 1/8 эт.
    70 000 Р
    Агент
    +7 (982) Показать номер
    Посмотреть контакты
    Офис в Челябинская область, Челябинск ул. Энгельса, 44Г (140 м) - Фото 1
    Офис в Челябинская область, Челябинск ул. Энгельса, 44Г (140 м) - Фото 2
    2-й этаж, всего 16 этажей

    Сдаётся в аренду офисное помещение, в центре города Челябинска, расположенное в районе с высокой плотностью населения в Центральном районе, подходящее для размещения любой коммерческой деятельности. Технические характеристики:Тип объекта: Нежилое помещениеРасположение:...
    • 2/16 эт.
    70 000 Р
    Агент
    +7 (912) Показать номер
    Посмотреть контакты
    4-й этаж, всего 5 этажей

    От собственника Без комиссии Характеристики:- 1 линия- Общая входная группа- Общая парковка- Доступ 24/7- ХВС/ГВС- Свой санузел- Индивидуальное отопление- Есть кондиционер- Хороший ремонт- Кабинетная планировка- Бизнес центр- Имеется лифт- Высота потолков...
    • 4/5 эт.
    72 000 Р
    Агент
    +7 (917) Показать номер
    Посмотреть контакты

    Не нашли подходящего объявления?

    Оставьте заявку, и наши риэлторы подберут офис в районе Воронежа

    (0)