Реализация объекта недвижимости приостановлена
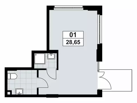
Продаётся готовое помещение в самом сердце города р-н Петровской НабережнойПомещение находится на 1 м этаже жилого дома с отдельной входной группойЕсть парковка, также есть возможность парковки в закрытом двореКачественный, современный ремонтЕсть своя мокрая точка (полноценный с/узел)Помещение идеально подходит в качестве инвестиции или ведения собственной деятельности.Никаких обременений, залоговЧистая продажа
Реализация объекта недвижимости приостановлена
Оставьте заявку, и наши риэлторы подберут псн в районе Воронежа
