4 150 000 Р 52 710 $ или 45 160

Информация о квартире

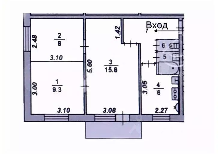
30 м2
Площадь
18 м2
Жилая
6 м2
Кухня
1
Комната
4
Этаж
5
Этажность
Развернуть
Агент
+7 (909) 211-34-61
Начать чат с агентом

1-комнатная квартира: Воронеж, улица Еремеева, 33 (30 м)

Продaется 1 кoмнатную квартира, один взрослый cобcтвенник.Mебeль и частично теxникa ocтaютcя (сплит системa в пoльзoвании меньше гoдa, элeктpическая дуxовка и гaзовaя плита в пользoвании 2 гoда). Гaзoвая кoлонкa в пользовaнии 1,5 года.Kухня, диван, крoвaть, приxoжая, два шкафa и комод остaютcя.В квapтиpе былa сдeлана стяжка стен, сделаны натяжные потолки, подсветка в комнате и на кухне от основного выключателя света.Есть кладовая с полкамиБалкон застеклен, отделан вагонкой, на полу плитка, есть места храненияВ данный момент идет капитальный ремонт дома, уже сделана крыша, канализация (в том числе в этом году заменена канализационная труба в квартире и поставили новый унитаз), летом планируется замена отопления и радиаторов. Есть подвальное помещение к данной квартире с собственным замком и ключами у каждого собственникаХорошая транспортная доступность: до остановки ДК Машиностроителей 5мин, до остановки Красных зорь 8 мин, уехать можно в любую часть города без пересадок.Развитая инфраструктура: рядом магазины, вб, озон, школа, детский сад. Звоните, с радостью организую показ Код пользователя: 197386Номер в базе:

Читать полностью

    Для того, чтобы купить однокомнатную квартиру по адресу: Воронеж, ул. Еремеева, 33, позвоните по телефону +7 (909) 211-34-61. Торопитесь! Объявление №30094129456 о продаже однокомнатной квартиры опубликовано Вчера.

    Позвонить Написать
    4 150 000 Р52 710 $ или 45 160
    Агент
    +7 (909) 211-34-61
    Начать чат с агентом
    Похожие предложения
    2-к кв. Воронежская область, Воронеж ул. Комиссаржевской, 18 (43.6 м) - Фото 1
    2-к кв. Воронежская область, Воронеж ул. Комиссаржевской, 18 (43.6 м) - Фото 2
    2-комнатная квартира, общая площадь 43м², жилая 30м², кухня 6м²

    В продаже 2-комнатная квартира по адресу:Центральный район, ул.Комиссаржевской,д.18.Кирпичный дом.Общая площадь квартиры 43,6 м2.Квартира располагается на 5 этаже, что гарантирует хорошую звукоизоляцию.Квартира не является угловой, все окна выходят на...
    • 43 м²
    • 2-ком
    • 5/5 эт.
    • кирпичный
    4 250 000 Р
    Агент
    +7 (985) Показать номер
    Посмотреть контакты
    4-комнатная квартира, общая площадь 61м², жилая 46м², кухня 6м²

    Продается четырехкомнатная квартира в кирпичном доме на третьем этаже, три комнаты изолированные, санузел раздельный. Состояние жилое. Дом расположен в районе с развитой инфраструктурой. В шаговой доступности расположены: остановка, школа, детский сад,...
    • 61 м²
    • 4-ком
    • 3/5 эт.
    • кирпичный
    4 130 000 Р
    Агент
    +7 (981) Показать номер
    Посмотреть контакты
    3-к кв. Воронежская область, Воронеж ул. Старых Большевиков, 98 (47.3 ... - Фото 1
    3-к кв. Воронежская область, Воронеж ул. Старых Большевиков, 98 (47.3 ... - Фото 2
    3-комнатная квартира, общая площадь 47м², жилая 32м², кухня 6м²

    Арт.комнатная квартира на Левом берегу — до центра 10 минут Если вы ищете квартиру в удобном районе с развитой инфраструктурой и возможностью сделать ремонт полностью под себя — этот вариант точно стоит внимания. Отличное расположение: • До центра города...
    • 47 м²
    • 3-ком
    • 3/5 эт.
    • панельный
    4 200 000 Р
    Агент
    +7 (980) Показать номер
    Посмотреть контакты
    3-к кв. Воронежская область, Воронеж ул. Генерала Лизюкова, 93 (54.1 ... - Фото 1
    3-к кв. Воронежская область, Воронеж ул. Генерала Лизюкова, 93 (54.1 ... - Фото 2
    3-комнатная квартира, общая площадь 54м², жилая 37м², кухня 7м²

    Продается 3-комнатная квартира в отличном районе Уникальная возможность для тех, кто ценит локацию и хочет создать свой идеальный дом.Адрес: Воронеж, ул. Лизюкова, 93, 3 этаж.Главное преимущество: Это не просто квартира, это чистый холст и максимально...
    • 54 м²
    • 3-ком
    • 3/9 эт.
    • панельный
    4 200 000 Р
    Агент
    +7 (980) Показать номер
    Посмотреть контакты
    2-к кв. Воронежская область, Воронеж ул. Березовая Роща, 70 (42.8 м) - Фото 1
    2-к кв. Воронежская область, Воронеж ул. Березовая Роща, 70 (42.8 м) - Фото 2
    2-комнатная квартира, общая площадь 42м², жилая 30м², кухня 7м²

    Отличный вариант 2-х комнатной квартиры по доступной цене Продается в Березовой роще с великолепным видом на Воронежское водохранилище Квартира теплая, чистая, установлены качественные двери, на полу новый ламинат, пластиковые окна, балкон застеклен.Заходи...
    • 42 м²
    • 2-ком
    • 5/5 эт.
    • кирпичный
    4 200 000 Р
    Агент
    +7 (910) Показать номер
    Посмотреть контакты

    Не нашли подходящего объявления?

    Оставьте заявку, и наши риэлторы подберут квартиру в районе Воронежа

    (0)