3 800 000 Р 48 600 $ или 41 850

Информация о квартире

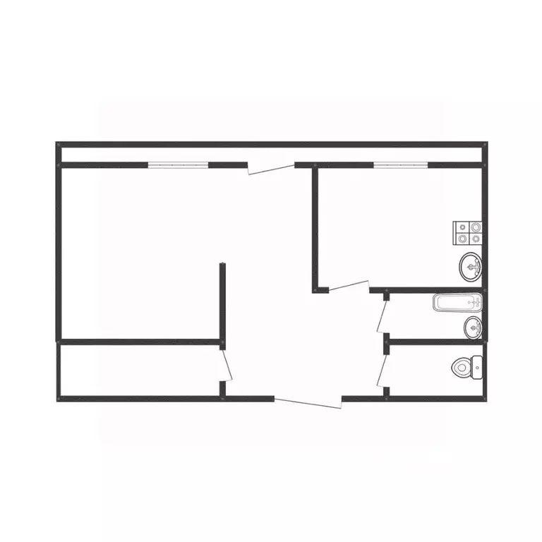
44 м2
Площадь
29 м2
Жилая
6 м2
Кухня
2
Комнаты
4
Этаж
5
Этажность

Дополнительная информация

Тип дома
кирпичный
Развернуть
Агент
+7 (981) 867-97-55
Начать чат с агентом

2-к кв. Воронежская область, Воронеж ул. Переверткина, 17 (44.0 м)

Продам светлую, уютную квартиру в хорошем районе , окна пластиковые , балкон застеклен , комнаты изолированные, с у / раздельный, полностью меня электропроводку . Развитая инфраструктура:Школа.Детский сады.Торговый центр Линия .Остановка общественного транспорта в любой конец города.Магазины.Прекрасный парк Дельфин .Вкусная точка .Звоните отвечу на все ваши вопросы Показ в любое удобное время

Читать полностью

    Для того, чтобы купить двухкомнатную квартиру по адресу: Воронеж, Железнодорожный, ул. Переверткина, 17, позвоните по телефону +7 (981) 867-97-55. Торопитесь! Объявление №30094033438 о продаже двухкомнатной квартиры опубликовано Вчера.

    Позвонить Написать
    3 800 000 Р48 600 $ или 41 850
    Агент
    +7 (981) 867-97-55
    Начать чат с агентом
    Похожие предложения
    1-к кв. Воронежская область, Воронеж ул. Переверткина, 24 (30.2 м) - Фото 1
    1-к кв. Воронежская область, Воронеж ул. Переверткина, 24 (30.2 м) - Фото 2
    1-комнатная квартира, общая площадь 30м², жилая 18м², кухня 6м²

    Продается просторная однокомнатная квартира на последнем этаже пятиэтажного дома. Объект отличается выгодным расположением в развитом районе с полной социальной и коммерческой инфраструктурой. В шаговой доступности, в пределах 150-400 метров, находятся...
    • 30 м²
    • 1-ком
    • 5/5 эт.
    • кирпичный
    3 700 000 Р
    Агент
    +7 (933) Показать номер
    Посмотреть контакты
    3-к кв. Воронежская область, Воронеж ул. Переверткина, 18 (61.1 м) - Фото 1
    3-к кв. Воронежская область, Воронеж ул. Переверткина, 18 (61.1 м) - Фото 2
    3-комнатная квартира, общая площадь 61м², жилая 38м², кухня 6м²

    Срочно продам трёхкомнатную квартиру в Левобережном районе, на улице Перевёрткина.Дом кирпичный, 1966 года постройки.Расположен в районе с отличной инфраструктурой - в шаговой доступности находятся:- гипермаркет Линия;- парк Дельфин; - бизнес-центр DEPO;-...
    • 61 м²
    • 3-ком
    • 3/5 эт.
    • кирпичный
    3 900 000 Р
    Агент
    +7 (910) Показать номер
    Посмотреть контакты
    1-к кв. Воронежская область, Воронеж ул. Переверткина, 47 (33.2 м) - Фото 1
    1-к кв. Воронежская область, Воронеж ул. Переверткина, 47 (33.2 м) - Фото 2
    1-комнатная квартира, общая площадь 33м², жилая 15м², кухня 9м²

    Продаётся уютная 1-комнатная квартира Планировка: Просторный коридор Гардеробная (кладовая) — дополнительное место для хранения Санузел и ванная Светлый зал Уютная кухня Лоджия Бонус: при продаже остаётся всё, что вы видите на фото — никаких лишних...
    • 33 м²
    • 1-ком
    • 8/12 эт.
    • кирпичный
    3 850 000 Р
    Агент
    +7 (980) Показать номер
    Посмотреть контакты
    1-к кв. Воронежская область, Воронеж ул. Маршала Одинцова, 2 (37.8 м) - Фото 1
    1-к кв. Воронежская область, Воронеж ул. Маршала Одинцова, 2 (37.8 м) - Фото 2
    1-комнатная квартира, общая площадь 37м², жилая 19м², кухня 7м²

    Код объекта: 2041549. Уютная 1-комнатная квартира в тихом месте Воронежа Ищете комфортное жильё без городской суеты? Эта квартира — идеальный выбор для тех, кто ценит тишину, порядок и удобное расположение. Планировка и пространство:- Общая площадь:...
    • 37 м²
    • 1-ком
    • 2/9 эт.
    • панельный
    3 800 000 Р
    Агент
    +7 (980) Показать номер
    Посмотреть контакты
    Студия Воронежская область, Воронеж ул. Артамонова, 34Ж (20.0 м) - Фото 1
    Студия Воронежская область, Воронеж ул. Артамонова, 34Ж (20.0 м) - Фото 2
    студия, общая площадь 20м², жилая 11м², кухня 4м²

    Код объекта: 1556482.Продаётся светлая и тёплая студия на улице Артамонова, 34Ж. Это идеальный вариант для молодых специалистов и студентов, которые ценят комфорт и уют.Квартира расположена на шестом этаже монолитного дома 2021 года постройки. Общая площадь...
    • 20 м²
    • студия-ком
    • 6/20 эт.
    • монолит
    3 780 000 Р
    Агент
    +7 (980) Показать номер
    Посмотреть контакты

    Не нашли подходящего объявления?

    Оставьте заявку, и наши риэлторы подберут квартиру в районе Воронежа

    (0)