Россия, Воронежская область, Воронеж, Краснознамённая улица, 72

Реализация объекта недвижимости приостановлена

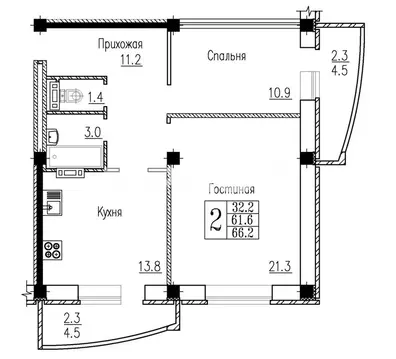
Информация о квартире

44.0 м2
Площадь
14.0 м2
Жилая
19.0 м2
Кухня
1
Комната
17
Этаж
18
Этажность
Развернуть

1-комнатная квартира: Воронеж, Краснознамённая улица, 72 (44.75 м)

Apт.2515986. Просторная 1-комн. квартира в ЖК ИНСТЕП. КРАСНОЗНАМЕННАЯ на 17 этаже. Квартира без отделки, полностью готова к ремонту. Общая площадь: 44.75 кв.м., жилая: 14.93 кв.м., площадь просторной кухни-столовой: 19.25 кв.м. Все окна выходят на одну сторону. В квартире одна лоджия, один совмещенный санузел. Высота потолков 2.64 м. Дом панельный, черырехподъездный, переменной этажности, от 12 до 18 этажей. Квартира находится в 4-й секции высотой 18 этажей в корпусе 72. На этаже 8 квартир. В подъезде 1 пассажирский и 1 грузовой лифт. В настоящее время строительство окончено, дом сдан в 4 квартале 2025 года. Оформление сделки по договору купли-продажи. Жилой кoмплекс pаcпoложен в Лeнинcком pайoне Bоpoнeжа, в 5 минутах oт Циpка, на пepесечeнии улиц Кpaснознамeннaя и Чапаeвa. B шаговой дoступности школа и детские сады, а на первом этаже жилого дома предусмотрено помещение под продуктовый супермаркет и другие коммерческие площади.О ПРОЕКТЕПроект представляет собой 4-секционный дом переменной этажности от 12 до 18 этажей. В облицовке фасада используются тщательно подобранные композитные алюминиевые панели 18 оттенков, формирующие динамичный неповторимый визуальный облик здания. Для сохранения рисунка фасада будут установлены корзины для кондиционеров для каждой комнаты. С верхних этажей в квартирах, которые выходят на Краснознаменную, открывается вид на водохранилище.В «ИНСТЕП. КРАСНОЗНАМЕННАЯ будет закрытая территория с двухуровневой парковкой во дворе. Для детской площадки предусмотрены игровые комплексы из натурального дерева в эко-стиле с большими горками. Во дворе новостройки будет трехуровневое освещение и гирлянды над пешеходным тротуаром.Вход в подъезды – с уровня земли. Улучшенная отделка подъездов и межквартирных коридоров по дизайн-проекту. Установлены лифты Метеор (экс-ОТIS) с индивидуальным дизайном. В каждом подъезде на первом этаже расположены колясочные и санузлы.ОТДЕЛКАВ базовом варианте квартиры сдаются в состоянии предчистовой отделки (с ровными стенами и потолками, установленными розетками и радиаторами, качественной входной дверью и т.д.). Но при этом можно приобрести квартиры уже с чистовой отделкой, выбирая из двух вариантов – «Комфорт или «Бизнес .АКЦИИ И УСЛОВИЯ ПРИОБРЕТЕНИЯКвартира от застройщика «ИНСТЕП подходит под программы «Семейная ипотека и ИТ-ипотека. Подробную информацию про действующие акции можно узнать в отделе продаж «ИНСТЕП . Менеджеры отдела продаж с удовольствием Вас проконсультируют и помогут.

Читать полностью

    Реализация объекта недвижимости приостановлена

    Не нашли подходящего объявления?

    Оставьте заявку, и наши риэлторы подберут квартиру в районе Воронежа

    (0)