Россия, Воронежская область, Воронеж, Олимпийский бульвар, 12

Реализация объекта недвижимости приостановлена

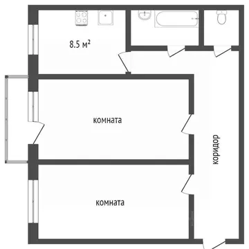
Информация о квартире

63.0 м2
Площадь
33.0 м2
Жилая
11.0 м2
Кухня
2
Комнаты
2
Этаж
17
Этажность
Развернуть

2-комнатная квартира: Воронеж, Олимпийский бульвар, 12 (63.3 м)

Арт.Продаётся уютная, светлая, правильной формы двухкомнатная квартира застройщика Выбор. В квартире ремонт в светлых тонах, на полу выложен качественный ламинат, кухня и ванная комната в плитке производства Беларусь с точечным освещением (потолок пластик), окна ПВХ. В кухне современная моющаяся штукатурка. В стоимость объекта входит: кухонный гарнитур, в спальне комплект мебели (без матраца), в коридоре прихожая производства Дядьково. Высота потолков 2, 6 м, ширина подоконников 43 см. Соседи тихие и семейные, чистый подъезд. В ЖК низкие коммунальные платежи. В жилом комплексе множество магазинов, аптек, кафе, салон красоты, пекарти, развивающие центры для малышей, современный детский сад, новая школа, рядом остановка общественного транспорта. В 10 минутах ходьбы ТЦ Окей и ТЦ Московский проспект. Чистая продажа, быстрый выход на сделку Помощь в получении ипотеки на лучших условиях за счёт продавца. Вся информация по телефону и в сообщениях.

Читать полностью

    Реализация объекта недвижимости приостановлена

    Не нашли подходящего объявления?

    Оставьте заявку, и наши риэлторы подберут квартиру в районе Воронежа

    (0)