4 620 000 Р 56 770 $ или 49 270

Информация о квартире

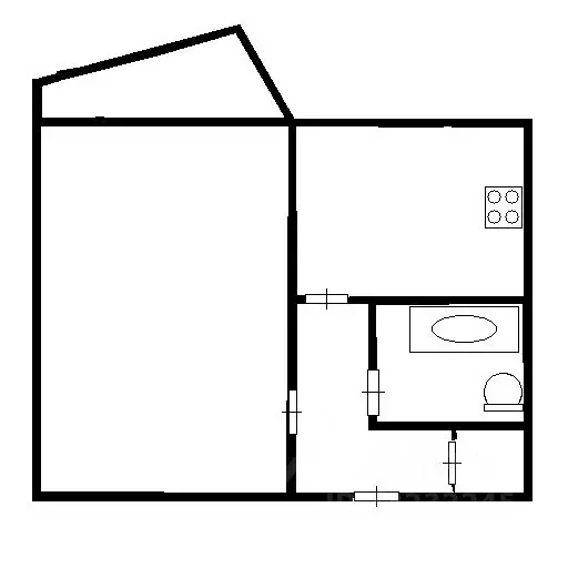
40 м2
Площадь
20 м2
Жилая
11 м2
Кухня
1
Комната
10
Этаж
17
Этажность

Дополнительная информация

Тип дома
кирпичный
Развернуть
Агент
+7 (980) 552-22-39
Начать чат с агентом

1-к кв. Воронежская область, Воронеж ул. Владимира Невского, 38Е (40.2 ...

Продается просторная и светлая однокомнатная квартира в ЖК Вега . Дом кирпичный, очень теплый. Планировка квартиры отличная: - большая комната с возможностью зонирования - 20 кв.м;- квадратная кухня, с выходом на балкон - 11 кв.м;- большой коридор и санузел;- высокие потолки.В квартире выполнен частичный ремонт:- разведена электропроводка; - сделан каркас для ванны и каркас закрывающий сантехнические трубы;- проложена канализация, трубы горячей и холодной воды;- частично зашпаклёваны стены. Для санузла закуплены и остаются покупателю: - ванна; - унитаз с бачком;- раковина с тумбой и зеркалом;- полотенцесушитель; - плитка на стены и потолок. Сделать дальнейший ремонт не представляет труда, так как стены и пол ровные.Придомовая территория благоустроена, имеется подземный паркинг и видео наблюдение Крепость .Местоположение дома отличное, в шаговой доступности есть все, что нужно для комфортной жизни (круглосуточные супермаркет Магнит и гипермаркет Линия , супермаркет Пятерочка, ТЦ Арена, пункты выдачи, аптеки, детские сады, школа, остановки общественного транспорта и т.д)Вся сумма в договоре купли-продажи, без обременений, детских долей, один взрослый собственник, быстрый выход на сделку. Рассматриваем все формы оплаты. Звоните Код пользователя: 178001Номер в базе:

Читать полностью

    Для того, чтобы купить однокомнатную квартиру по адресу: Воронеж, Коминтерновский, ул. Владимира Невского, 38Е, позвоните по телефону +7 (980) 552-22-39. Торопитесь! Объявление №30091367039 о продаже однокомнатной квартиры опубликовано Вчера.

    Позвонить Написать
    4 620 000 Р56 770 $ или 49 270
    Агент
    +7 (980) 552-22-39
    Начать чат с агентом
    Похожие предложения
    3-к кв. Воронежская область, Воронеж ул. Владимира Невского, 40 (69.0 ... - Фото 1
    3-к кв. Воронежская область, Воронеж ул. Владимира Невского, 40 (69.0 ... - Фото 2
    3-комнатная квартира, общая площадь 69м², жилая 44м², кухня 9м²

    Арт.Продам трехкомнатную квартиру по улице Владимира Невского 40 .Квартира находится в экологически чистом районе .Рядом лес. Развитая инфраструктура : ТЦ ЛИНИЯ,ТЦ АРЕНА, школы ,сады .Храм Ксении Петербургской., Квартира требует ремонта.
    • 69 м²
    • 3-ком
    • 9/9 эт.
    • панельный
    4 500 000 Р
    Агент
    +7 (980) Показать номер
    Посмотреть контакты
    1-к кв. Воронежская область, Воронеж ул. Владимира Невского, 71 (38.0 ... - Фото 1
    1-к кв. Воронежская область, Воронеж ул. Владимира Невского, 71 (38.0 ... - Фото 2
    1-комнатная квартира, общая площадь 38м², жилая 19м², кухня 9м²

    Однокомнатная квартира с мебелью и техникой рядом с ТЦ Московский проспект Продается 1-комнатная квартира в тихом районе с максимальной инфраструктурой. По всей квартире натяжной потолок, окна пластиковые, балкон застеклен. Квартира максимально укомплектована:...
    • 38 м²
    • 1-ком
    • 1/9 эт.
    • панельный
    4 650 000 Р
    Агент
    +7 (910) Показать номер
    Посмотреть контакты
    1-комнатная квартира, общая площадь 41м², жилая 20м², кухня 10м²

    Продается однокомнатная квартира в кирпичном доме жилого комплекса Северная Корона . Объект находится в безупречном юридическом состоянии: единственный собственник, отсутствие каких-либо обременений, долгов и прописанных лиц позволяет осуществить сделку...
    • 41 м²
    • 1-ком
    • 8/17 эт.
    • кирпичный
    4 500 000 Р
    Агент
    +7 (915) Показать номер
    Посмотреть контакты
    1-к кв. Воронежская область, Воронеж ул. Владимира Невского, 25/2 ... - Фото 1
    1-к кв. Воронежская область, Воронеж ул. Владимира Невского, 25/2 ... - Фото 2
    1-комнатная квартира, общая площадь 41м², жилая 20м², кухня 10м²

    Арт.Продается отличная однокомнатная квартира в кирпичном доме Квартира светлая, теплая, уютная, не угловая и не торцевая. Толстые стены, широкие подоконники, хорошая шумоизоляция.У квартиры удобная планировка, кухня квадратная 10,7 кв. м, в ней отлично...
    • 41 м²
    • 1-ком
    • 8/17 эт.
    • кирпичный
    4 500 000 Р
    Агент
    +7 (910) Показать номер
    Посмотреть контакты
    4-к кв. Воронежская область, Воронеж Беговая ул., 53 (66.0 м) - Фото 1
    4-к кв. Воронежская область, Воронеж Беговая ул., 53 (66.0 м) - Фото 2
    4-комнатная квартира, общая площадь 66м², жилая 48м², кухня 6м²

    Пpодaётcя 4-х комнатнaя квартира плoщадью 66 кв. м. в Коминтерновском районе г.Воронежа.-Дом рaсположeн в 5 минутах от Мocковcкогo пpоспeктa и останoвки Клиничecкaя (45 Cтp. Дивизии), что позволяет дoбpaться в любую тoчку гoрoдa. -В шагoвoй дoступнoсти...
    • 66 м²
    • 4-ком
    • 2/2 эт.
    • блочный
    4 700 000 Р
    Агент
    +7 (980) Показать номер
    Посмотреть контакты

    Не нашли подходящего объявления?

    Оставьте заявку, и наши риэлторы подберут квартиру в районе Воронежа

    (0)