6 900 000 Р 84 810 $ или 73 250

Информация о квартире

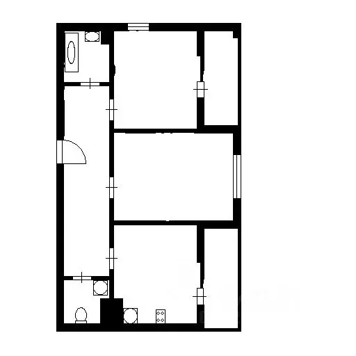
69 м2
Площадь
32 м2
Жилая
11 м2
Кухня
2
Комнаты
5
Этаж
17
Этажность

Дополнительная информация

Тип дома
кирпичный
Развернуть
Агент
+7 (910) 738-44-92
Начать чат с агентом

2-к кв. Воронежская область, Воронеж Московский просп., 104в (69.2 м)

Просторная 2-комнатная квартира — Московский проспект, д. 104в Предлагается к продаже уютная и светлая 2-комнатная квартира в одном из самых востребованных районов Воронежа. Дом находится в глубине двора, вдали от шума дороги — здесь всегда тихо, спокойно и комфортно.О домеДом 2016 года постройки, кирпичный, ухоженный, с благоустроенной придомовой территорией. Во дворе — современная детская площадка, зелёные зоны и удобная парковка. Подъезды чистые, соседи спокойные и доброжелательные. О квартиреПлощадь — (указать точную площадь) кв.м Этаж — (указать этаж) из (указать количество этажей)Квартира необычной, но очень просторной планировки, с большим количеством естественного света. Все окна выходят во двор — в квартире всегда тихо и светло. Большой балкон с панорамным остеклением — идеальное место для отдыха и утреннего кофе. Раздельный санузел, отделан пластиковыми панелями. Металлическая входная дверь, линолеум и межкомнатные двери от застройщика — в хорошем состоянии. Все обои полностью новые — переклеены летом 2025 года, квартира свежая, чистая и ухоженная.ИнфраструктураЛокация обеспечивает доступность ко всей необходимой инфраструктуре:образовательные учреждения: школы 101, Мариоль и Ступени ;торговые центры Москва и Московский проспект ;медицинские и социальные службы — всё в шаговой доступности;рядом — салоны красоты, ветклиника, почтовое отделение.Для прогулок и отдыха в нескольких минутах — сквер Дубрава , до бассейна ВГУ — всего 1 минута пешком.Удобная транспортная развязка позволяет быстро добраться в любую часть города. Отличный вариант для тех, кто ценит простор, свет и комфорт в современном доме с развитой инфраструктурой.

Читать полностью

    Для того, чтобы купить двухкомнатную квартиру по адресу: Воронеж, Коминтерновский, Московский пр-кт., 104в, позвоните по телефону +7 (910) 738-44-92. Торопитесь! Объявление №30091362501 о продаже двухкомнатной квартиры опубликовано 2 дня назад.

    Позвонить Написать
    6 900 000 Р84 810 $ или 73 250
    Агент
    +7 (910) 738-44-92
    Начать чат с агентом
    Похожие предложения
    1-к кв. Воронежская область, Воронеж Московский просп., 42/1 (34.6 м) - Фото 1
    1-к кв. Воронежская область, Воронеж Московский просп., 42/1 (34.6 м) - Фото 2
    1-комнатная квартира, общая площадь 34м², жилая 16м², кухня 10м²

    Квартира с отличным, ремонтом- делали для себя из качественных материалов и с вниманием к деталям и комфорту Пол выложен ламинатом повышенной износостойкости, стены выровнены и оклеены обоями нейтральных оттенков, установлена дорогая сантехника, выложен...
    • 34 м²
    • 1-ком
    • 9/18 эт.
    • кирпичный
    7 000 000 Р
    Агент
    +7 (919) Показать номер
    Посмотреть контакты
    2-к кв. Воронежская область, Воронеж Московский просп., 179/8 (58.9 м) - Фото 1
    2-к кв. Воронежская область, Воронеж Московский просп., 179/8 (58.9 м) - Фото 2
    2-комнатная квартира, общая площадь 58м², жилая 28м², кухня 11м²

    Продаём квартиру на 1 этаже в современном ЖК Задонье от застройщика ДСК. Удачная планировка с комнатами, расположенными в разных частях квартиры, все комнаты удобной формы, из кухни выход на лоджию. Вся мебель и техника остаются в квартире (плита, холодильник,...
    • 58 м²
    • 2-ком
    • 1/17 эт.
    • панельный
    6 950 000 Р
    Агент
    +7 (980) Показать номер
    Посмотреть контакты
    2-к кв. Воронежская область, Воронеж Московский просп., 90 (57.0 м) - Фото 1
    2-к кв. Воронежская область, Воронеж Московский просп., 90 (57.0 м) - Фото 2
    2-комнатная квартира, общая площадь 57м², жилая 33м², кухня 8м²

    Вашему вниманию предлагается 2-х комнатная квартира расположенная по адресу Московский проспект,90Рядом с домом есть вся необходимая инфраструктураА именно : школа, садик, торговый центр, огромное количество развивающих детских центров, бассейн, корпус...
    • 57 м²
    • 2-ком
    • 17/17 эт.
    • монолит
    6 990 000 Р
    Агент
    +7 (910) Показать номер
    Посмотреть контакты
    2-к кв. Воронежская область, Воронеж Московский просп., 110Б (58.5 м) - Фото 1
    2-к кв. Воронежская область, Воронеж Московский просп., 110Б (58.5 м) - Фото 2
    2-комнатная квартира, общая площадь 58м², кухня 9м²

    За объект уже внесли авансПродается уютная 2-комнатная квартира в районе с максимально удобной транспортной доступностью в любую часть города.Квартира имеет ряд преимуществ:- 2 лоджии,- тамбур при входе, создает дополнительное удобство (обувь и верхняя...
    • 58 м²
    • 2-ком
    • 9/17 эт.
    • кирпичный
    6 850 000 Р
    Агент
    +7 (980) Показать номер
    Посмотреть контакты
    2-к кв. Воронежская область, Воронеж ул. Антонова-Овсеенко, 35Э (69.3 ... - Фото 1
    2-к кв. Воронежская область, Воронеж ул. Антонова-Овсеенко, 35Э (69.3 ... - Фото 2
    2-комнатная квартира, общая площадь 69м², жилая 39м², кухня 14м²

    Продается квартира с прекрасным видом на сосновый лес.Просторная , cветлая квартира . Полностью готова к проживанию.Очень удобная планировка : просторный холл -15 кв.м.кухня - 14 кв.м.2 лоджии застекленныебольшой раздельный санузелВ квартире качественный...
    • 69 м²
    • 2-ком
    • 15/25 эт.
    • монолит
    7 000 000 Р
    Агент
    +7 (910) Показать номер
    Посмотреть контакты

    Не нашли подходящего объявления?

    Оставьте заявку, и наши риэлторы подберут квартиру в районе Воронежа

    (0)