8 050 000 Р 99 150 $ или 85 590

Информация о квартире

ЖК Поколение
Название ЖК
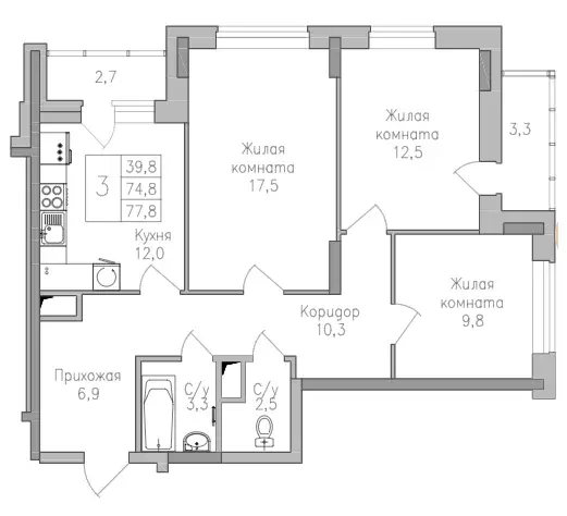
77.8 м2
Площадь
39.8 м2
Жилая
12 м2
Кухня
3
Комнаты
6
Этаж
25
Этажность
9.8/12.5/17.5 м2
Площадь комнат

Состояние и оснащение

Наличие балкона
2 лоджии
Вид из окон
во двор
Ремонт
отсутствует
Окна
пластиковые
Тип санузла
раздельный
Лифт
есть

Дополнительная информация

Тип дома
монолит
Тип комнат
раздельные
Свободная планировка
нет
Лифт
пассажирский и грузовой
Цена в ДКП
полная
Тип продажи
от застройщика
Возможность ипотеки
да

Территория

Детская площадка
есть
Развернуть
Мануковская Надежда
PRO
+7 (952) 541-88-87
Профессионал AFY.ru с 2025 г.
Начать чат с агентом

Продажа квартиры в новостройке

ЖК ПОКОЛЕНИЕ!!!

СДАЧА дома 2 квартал 2027!!!

Подходит под все виды льготных ипотечных программ

Комплекс находится в Советском районе г. Воронежа в мкр. Придонской в 20 минутах езды на машине от центра города.

В ЖК планируется строительство 6 домов. В первой очереди строительства три дома переменной этажности с эргономичными планировками, классическим остеклением лоджий и балконов.

К продаже представлены студии, однокомнатные, двухкомнатные и трехкомнатные квартиры.

Квартиры предлагаются в двух вариантах отделки: качественной предчистовой и чистовой отделкой «под ключ».

В микрорайоне Придонской большой выбор социальной и коммерческой инфраструктуры:

неподалеку находятся школы №55, №81 с большим выбором дополнительных общеобразовательных программ;
4 детских сада и частный детский центр «Радость моя»;
стадион Строитель и спорткомплексы на ул. Защитников Родины и ул. Киселёва включают в себя секции как для взрослых, так и для детей;
ДШИ №15 - центр художественного образования детей микрорайона;
в ДК дети могут заниматься вокалом, хореографией, изобразительным искусством.
В шаговой доступности супермаркеты, аптеки, поликлиники, рынок, салоны красоты, остановки общественного транспорта.

Микрорайон Придонской окружен лесным массивом. Это позволяет много времени проводить на природе, занимаясь спортом или неспешно прогуливаясь наслаждаться свежим воздухом.

Для Вас полное юридическое сопровождение сделки абсолютно БЕСПЛАТНО!!!

Выбор этажей и планировок.

Читать полностью
    Позвонить Написать
    8 050 000 Р99 150 $ или 85 590
    Мануковская Надежда
    PRO
    +7 (952) 541-88-87
    Профессионал AFY.ru с 2025 г.
    Начать чат с агентом
    Похожие предложения
    Продажа квартиры в новостройке - Фото 1
    Продажа квартиры в новостройке - Фото 2
    Продажа квартиры в новостройке - Фото 3
    Продажа квартиры в новостройке - Фото 4
    Продажа квартиры в новостройке - Фото 5
    3-комнатная квартира, без ремонта, общая площадь 77.8м², жилая 39.8м², кухня 12м², с балконом, пластиковые стеклопакеты

    ЖК ПОКОЛЕНИЕ!!! СДАЧА дома 2 квартал 2027!!! Подходит под все виды льготных ипотечных программ Комплекс находится в Советском районе г. Воронежа в мкр. Придонской в 20 минутах езды на машине от центра города. В ЖК планируется строительство...
    • 77.8 м²
    • 3-ком
    • 6/25 эт.
    • монолит
    8 050 000 Р
    PRO
    +7 (952) Показать номер
    Посмотреть контакты
    3-к кв. Воронежская область, Воронеж Шилово мкр, Авиапарк жилой ... - Фото 1
    3-к кв. Воронежская область, Воронеж Шилово мкр, Авиапарк жилой ... - Фото 2
    3-комнатная квартира, общая площадь 78м²

    В продаже квартира площадью 78.17 кв. м с черновой отделкой. Квартира расположена на 15 этаже 18 этажного дома, в новом жилом квартале Авиапарк .Идеальное сочетание природности и городского комфорта теперь по доступной цене Новый жилой комплекс Авиапарк...
    • 78 м²
    • 3-ком
    • 15/18 эт.
    • монолит
    8 090 595 Р
    Агент
    +7 (933) Показать номер
    Посмотреть контакты
    2-к кв. Воронежская область, Воронеж Поколение жилой комплекс (79.6 м) - Фото 1
    2-к кв. Воронежская область, Воронеж Поколение жилой комплекс (79.6 м) - Фото 2
    2-комнатная квартира, общая площадь 79м², жилая 32м², кухня 24м²

    Код объекта: 1569683.ЖК Поколение новый квартал в мкр. Придонской в Воронеже. В ЖК представлены 30 планировочных решений от студи и компактных двушек, до более просторных трехкомнатных квартир. Сложившаяся инфрасктруктура района с обилием школ и объектов...
    • 79 м²
    • 2-ком
    • 3/10 эт.
    8 200 000 Р
    Агент
    +7 (958) Показать номер
    Посмотреть контакты
    3-к кв. Воронежская область, Воронеж ул. Шибилкина, 5 (73.5 м) - Фото 1
    3-к кв. Воронежская область, Воронеж ул. Шибилкина, 5 (73.5 м) - Фото 2
    3-комнатная квартира, общая площадь 73м²

    Продаётся 3-комнатная квартира в строящемся доме (Шибилкина, 5 (Позиция 22)), срок сдачи: II-кв. 2027, общей площадью 73.5 кв.м., на 2 этаже. Жилой квартал Ласточкино - это современное благоустроенное жилье в экологически чистом микрорайоне Шилово....
    • 73 м²
    • 3-ком
    • 2/17 эт.
    • панельный
    8 011 500 Р
    Агент
    +7 (912) Показать номер
    Посмотреть контакты
    1-к кв. Воронежская область, Воронеж Притяжение жилой комплекс (45.5 ... - Фото 1
    1-к кв. Воронежская область, Воронеж Притяжение жилой комплекс (45.5 ... - Фото 2
    1-комнатная квартира, общая площадь 45м²

    Продаётся 1-комнатная квартира в строящемся доме (Секции 1-3 (1 этап)), срок сдачи: II-кв. 2028, общей площадью 45.5 кв.м., на 6 этаже. Новый жилой комплекс Притяжение от Специализированного застройщика ЛЕВЫЙ БЕРЕГасположен по адресу: г. Воронеж, по...
    • 45 м²
    • 1-ком
    • 6/25 эт.
    8 162 700 Р
    Агент
    +7 (912) Показать номер
    Посмотреть контакты

    Не нашли подходящего объявления?

    Оставьте заявку, и наши риэлторы подберут квартиру в новостройке в районе Воронежа

    (0)