11 827 215 Р 146 500 $ или 127 700

Информация о квартире

90 м2
Площадь
3
Комнаты
2
Этаж
9
Этажность
Развернуть
Агент
+7 (912) 096-20-39
Начать чат с агентом

3-к кв. Воронежская область, Воронеж Оникс жилой комплекс (90.63 м)

Продаётся 3-комнатная квартира в строящемся доме (Дом 1, дом 2), срок сдачи: I-кв. 2027, общей площадью 90.63 кв.м., на 2 этаже. Новый жилой комплекс от группы компаний Проект Инвестасположен по адресу: г. Воронеж, по ул. Шишкова.

Читать полностью
    Позвонить Написать
    11 827 215 Р146 500 $ или 127 700
    Агент
    +7 (912) 096-20-39
    Начать чат с агентом
    Похожие предложения в Воронеже
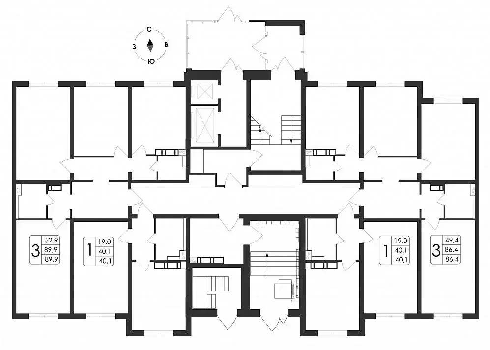
    3-к кв. Воронежская область, Воронеж ул. Загоровского, 5/3 (89.9 м) - Фото 1
    3-к кв. Воронежская область, Воронеж ул. Загоровского, 5/3 (89.9 м) - Фото 2
    3-комнатная квартира, общая площадь 89м², жилая 52м², кухня 13м²

    Квартира: 3 к 89,90 кв.м., 1 этаж в комплексе Яблоневые сады, 1 очередь, корп.14.4, сдача: 3кв. , этажей: 17, адрес Воронеж г., Загоровского ул., д. 5/3, Застройщик: ВЫБОР.
    • 89 м²
    • 3-ком
    • 1/17 эт.
    11 237 500 Р
    Агент
    +7 (904) Показать номер
    Посмотреть контакты
    3-к кв. Воронежская область, Воронеж ул. Пескова, 8 (83.2 м) - Фото 1
    3-комнатная квартира, общая площадь 83м²

    Продаётся 3-комнатная квартира в строящемся доме (Позиция 7), срок сдачи: I-кв. 2026, общей площадью 83.2 кв.м., на 16 этаже. Новый жилок комплекс Яблоневые сады от группы компаний Домостроительный комбинатасположен по адресу: г. Воронеж, по ул. Загоровского....
    • 83 м²
    • 3-ком
    • 16/20 эт.
    • панельный
    11 373 440 Р
    Агент
    +7 (958) Показать номер
    Посмотреть контакты
    3-к кв. Воронежская область, Воронеж ул. Пескова, 10 (89.2 м) - Фото 1
    3-комнатная квартира, общая площадь 89м², жилая 55м², кухня 22м²

    МОНОЛИТ. Срок сдачи дома июнь 2027 года.Все квартиры сдаются со 100 качественной отделкой под ключ.- Помощь в одобрении ипотеки- Полное сопровождение сделкиЖилой комплекс Яблоневые сады находится в границах улиц Ломоносова, Загоровского и Московского...
    • 89 м²
    • 3-ком
    • 6/19 эт.
    • монолит
    11 899 000 Р
    Агент
    +7 (915) Показать номер
    Посмотреть контакты
    2-к кв. Воронежская область, Воронеж ул. Жилина, 7 (66.5 м) - Фото 1
    2-к кв. Воронежская область, Воронеж ул. Жилина, 7 (66.5 м) - Фото 2
    2-комнатная квартира, общая площадь 66м², жилая 39м², кухня 13м²

    СЕМЕЙНАЯ ИПОТЕКА 3,5 ГОДОВЫХ НА ВЕСЬ СРОК КРЕДИТОВАНИЯ Клубный дом Коллекция находится в самом центре Воронежа на улице Жилина 7,9 (недалеко от улицы Сакко и Ванцетти). Комплекс рассчитан всего на 52 квартиры, за счет этого обеспечивается высокий...
    • 66 м²
    • 2-ком
    • 5/5 эт.
    • монолит
    11 891 862 Р
    Агент
    +7 (912) Показать номер
    Посмотреть контакты
    3-к кв. Воронежская область, Воронеж ул. Жилина, 7 (81.5 м) - Фото 1
    3-к кв. Воронежская область, Воронеж ул. Жилина, 7 (81.5 м) - Фото 2
    3-комнатная квартира, общая площадь 81м², жилая 48м², кухня 16м²

    СЕМЕЙНАЯ ИПОТЕКА 3,5 ГОДОВЫХ НА ВЕСЬ СРОК КРЕДИТОВАНИЯ Клубный дом Коллекция находится в самом центре Воронежа на улице Жилина 7,9 (недалеко от улицы Сакко и Ванцетти). Комплекс рассчитан всего на 52 квартиры, за счет этого обеспечивается высокий...
    • 81 м²
    • 3-ком
    • 2/5 эт.
    • монолит
    12 714 000 Р
    Агент
    +7 (912) Показать номер
    Посмотреть контакты

    Не нашли подходящего объявления?

    Оставьте заявку, и наши риэлторы подберут квартиру в новостройке в районе Воронежа

    (0)