Реализация объекта недвижимости приостановлена

Информация о квартире

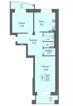
55.0 м2
Площадь
2
Комнаты
6
Этаж
24
Этажность
Развернуть

2-к кв. Воронежская область, Воронеж ул. Березовая Роща (55.24 м)

Продаётся 2-комнатная квартира в строящемся доме (Метрополь), срок сдачи: III-кв. 2026, общей площадью 55.24 кв.м., на 6 этаже. Новый жилой комплекс Метрополь от группы компаний Развитиеасположен по адресу: г. Воронеж, по ул. Березовая Роща.

Читать полностью

    Реализация объекта недвижимости приостановлена

    Не нашли подходящего объявления?

    Оставьте заявку, и наши риэлторы подберут квартиру в новостройке в районе Воронежа

    (0)