Реализация объекта недвижимости приостановлена

Информация о квартире

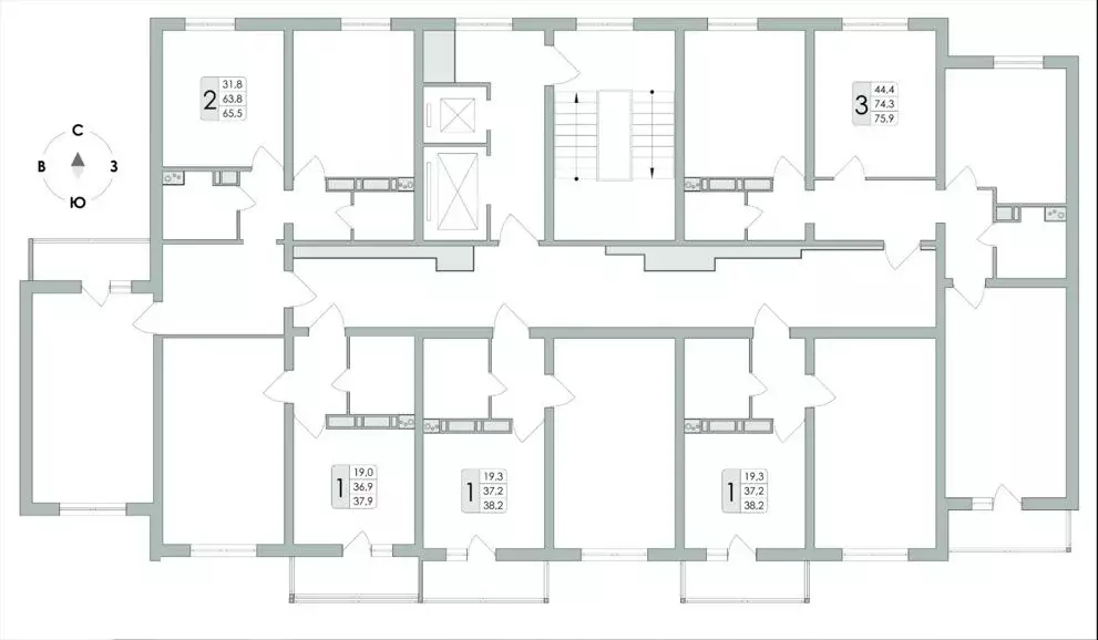
38.0 м2
Площадь
1
Комната
11
Этаж
17
Этажность

Дополнительная информация

Тип дома
панельный
Развернуть

1-к кв. Воронежская область, Воронеж Озерки жилой квартал, (38.2 м)

Продаётся 1-комнатная квартира в строящемся доме (Позиция 49), срок сдачи: IV-кв. 2025, общей площадью 38.2 кв.м., на 11 этаже. Расположение, транспортная доступность Жилой комплекс Озерки - это квартал 17-этажных зданий бюджетного класса, возведенных по технологии объемно-блочного домостроения. Квартал находится в юго-восточной части города, в Левобережном районе, на улице Ильюшина, рядом с улицами Шидловского и Иркутская. Путь от квартала Озерки до центра города на общественном транспорте займет примерно 20-30 минут. Ближайшая автобусная остановка называется ЖК Озерки . Примерно в двух километрах от комплекса находится станция Придача (известная также как железнодорожный вокзал Южный ), от которой на самых быстрых электропоездах можно за 29 минут доехать до железнодорожного вокзала Воронеж-1 . Инфраструктура Собственная инфраструктура квартала включает в себя два детских сада, общеобразовательную школу, торговый центр, магазины и офисные помещения. В радиусе двух километров от Озерков находятся детские сады 130, 112, 88, 133, 183, 42, 180,школы 30 69, 23, Институт ФСИН, детская поликлиника 7, отделение восстановительного лечения поликлиники 14, супермаркеты Магнит , Пятью пять , Пятерочка , Центорг , Европа , рынок Грузовой двор , продуктовый рынок, магазин Хозтовары , отделение почты. За 5-10 минут от квартала можно доехать до городской больницы 10, больницы 16, торговых центров Metro Cash Carry, Твой Дом , Айсберг , Ваи , Полет , гипермаркетов Леруа Мерлен , Линия , магазина сети Ассорти идей , военно-исторического музея Музей-диорама , стадиона Буран . Экологическая ситуация здесь, по городским меркам, хорошая. Квартал находится на окраине города, рядом с лесопарковой зоной. В то же время, поблизости с ним располагаются автотрасса на улице Ильюшина, нефтебаза и промзоны. Надежность застройщика Квартал Озерки - это очередной масштабный проект основанной в 1997 году воронежской компании Выбор . Это одна из лидирующих компаний на воронежском строительном рынке, специализирующаяся на возведении жилых зданий, коммерческих и социальных объектов в Воронеже и Воронежской области. Также Выбор занимается реконструкцией исторических зданий, дизайном, ремонтом и отделкой помещений. Компания строит самую разнообразную жилую недвижимость (от эконом до бизнес-класса). Одно из главных направлений деятельности компании - комплексное освоение территорий и возведение крупномасштабных жилых кварталов и микрорайонов. Другая особенность компании - использование инновационной технологии строительства зданий из объемных блоков (которые для компании изготавливает собственный завод объемно-блочного домостроения Выбор-ОБД ). Кроме того, в состав компании входит проектный институт. В родном городе компания Выбор построила жилые комплексы Эльбрус , Цветной бульвар , Ultra, Ботанический сад , Атлант , жилые дома на улицах Шишкова, Березовая роща, Тимирязева, Владимира Невского, бутик-отель Ветряков , р

Читать полностью

    Реализация объекта недвижимости приостановлена

    Не нашли подходящего объявления?

    Оставьте заявку, и наши риэлторы подберут квартиру в новостройке в районе Воронежа

    (0)