Реализация объекта недвижимости приостановлена

Информация о квартире

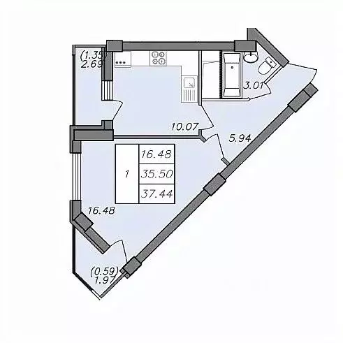
37.0 м2
Площадь
1
Комната
8
Этаж
13
Этажность
Развернуть

1-к кв. Воронежская область, Воронеж Волгоградская ул., 45 (37.44 м)

Продаётся 1-комнатная квартира в сданном доме (Волгоградская, 45 (Секция 4)), срок сдачи: IV-кв. 2023, общей площадью 37.44 кв.м., на 8 этаже. Новый жилой комплекс Свой дом от Специализированного застройщика ООО Свой домасположен по адресу: г. Воронеж, по ул. Волгоградская.

Читать полностью

    Реализация объекта недвижимости приостановлена

    Не нашли подходящего объявления?

    Оставьте заявку, и наши риэлторы подберут квартиру в новостройке в районе Воронежа

    (0)