Реализация объекта недвижимости приостановлена

Информация о квартире

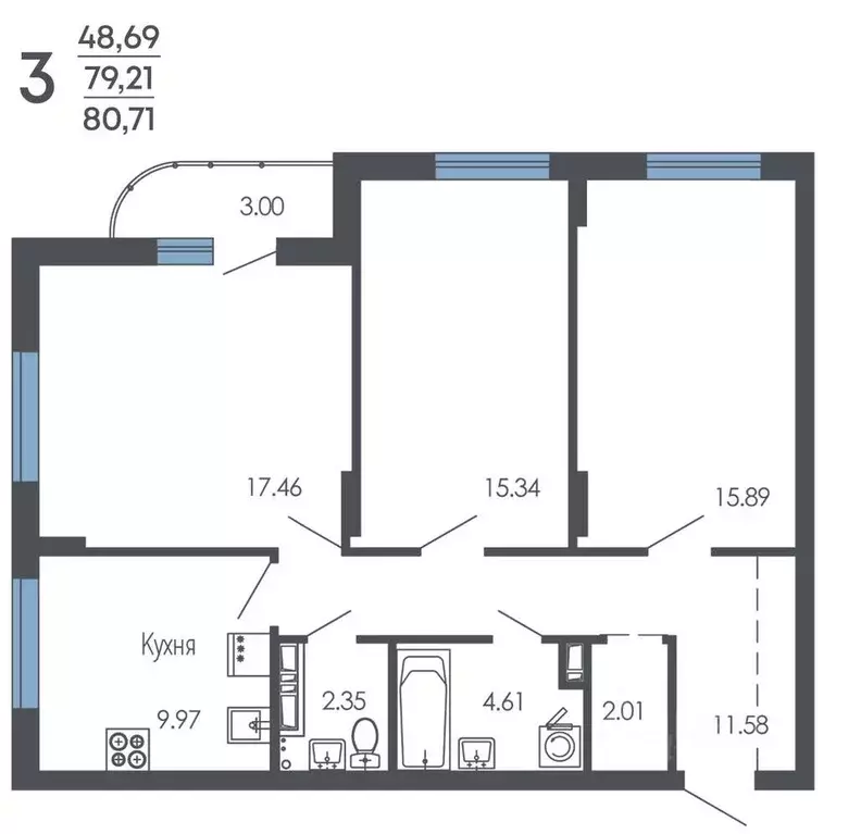
80.0 м2
Площадь
3
Комнаты
6
Этаж
9
Этажность
Развернуть

3-к кв. Воронежская область, Воронеж Оникс жилой комплекс (80.71 м)

Продаётся 3-комнатная квартира в строящемся доме (Дом 1, дом 2), срок сдачи: I-кв. 2027, общей площадью 80.71 кв.м., на 6 этаже. Новый жилой комплекс от группы компаний Проект Инвестасположен по адресу: г. Воронеж, по ул. Шишкова.

Читать полностью

    Реализация объекта недвижимости приостановлена

    Не нашли подходящего объявления?

    Оставьте заявку, и наши риэлторы подберут квартиру в новостройке в районе Воронежа

    (0)