8 047 500 Р 99 200 $ или 84 620

Информация о квартире

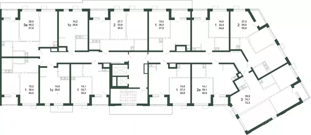
55 м2
Площадь
27 м2
Жилая
2
Комнаты
12
Этаж
13
Этажность
Развернуть
Агент
+7 (989) 688-35-01
Начать чат с агентом

2-к кв. Воронежская область, Воронеж бул. Содружества, 6 (55.5 м)

ЖК РИТМ — ДОСТУПНАЯ И ВЫГОДНАЯ ИНВЕСТИЦИЯ В ВАШЕ БУДУЩЕЕЖилой комплекс Ритм по ул. Бульвар Содружества уч. 6 — часть масштабного проекта развития территории воронежского левобережья — микрорайона Ключи , который займет 28,6 га недалеко от въезда в город по тамбовскому направлению.Здесь строится инновационный красивый мини-город. Он насыщен социальной и коммерческой инфраструктурой и обеспечен новейшими коммуникациями. Комплекс состоит не только из качественных домов. Решения по благоустройству стимулируют ведение активного здорового образа жизни. Продуманы возможности для взаимодействия людей, их творческой самореализации, выстраивания добрососедских связей и формирования современного приятного комьюнити. И все это на благоприятном экологическом фоне. Это действительно новый шаг в создании привлекательной среды для жизни в современном ритме Жить, не ограничивая себя и свою семью, — разве не об этом вы мечтали? Вас ждет инновационное пространство, где вы будете вести свою насыщенную и интересную жизнь в выбранном вами ритме.Подземный паркинг на -1 этаже вместимостью на 114 машино-места, в том числе семейные парковки на два автомобиля освобождает двор от машин — там гораздо приятнее гулять с детьми или заниматься спортом. Жители смогут выходить к своему автомобилю в теплый паркинг прямо из лифта — нет беспокойства из-за погодных условий или за сохранность транспортного средства. Ваши гости тоже не останутся без парковки — на придомовой территории организовано - 131 место и вне придомовой территории - 213 мест.Для абсолютного комфорта на -1 этаже в каждой секции расположены кладовые помещение площадью от 2,10 до 5,0 кв.м., где можно хранить все что угодно — велосипеды, санки, лыжи и прочие вещи. Они больше не будут занимать весь балкон. Там гораздо приятнее пить кофе и любоваться видом из окна.ИНФРАСТРУКТУРА и ПРЕИМУЩЕСТВА Инновационное жилье в ЖК Ритм совсем рядом — 5 минут до Остужевского кольца, 20 минут до центра, рядом новая транспортная развязка. Легко добраться до работы и вузов, на концерт или в гости.Первый цифровой квартал в городеДворы без машинПодземный паркинг и кладовые (в каждой секции)Сервисная Управляющая Компания (Smile)Новая инфраструктура района и коммуникацийРядом с вами:новая уже действующая школа - 3 минут (просто перейти дорогу)новый детский сад (проект на стадии разработки, ориентировочный срок сдачи конец 2026 года) - 5 минут (просто перейти дорогу)5 минут от центральной площади событий и прогулочных аллейстадион и спортивные площадкиполиклиника (проект на стадии разработки)магазиныаптекидетские площадки

Читать полностью
    Позвонить Написать
    8 047 500 Р99 200 $ или 84 620
    Агент
    +7 (989) 688-35-01
    Начать чат с агентом
    Похожие предложения в Воронеже
    2-к кв. Воронежская область, Воронеж бул. Содружества, 6 (55.5 м) - Фото 1
    2-к кв. Воронежская область, Воронеж бул. Содружества, 6 (55.5 м) - Фото 2
    2-комнатная квартира, общая площадь 55м², жилая 27м², кухня 10м²

    Квартира: 2 к 55,50 кв.м., 12 этаж в комплексе Ритм, 1 очередь, корп.1 (секции 3-4), сдача: 2кв. , этажей: 13, адрес Воронеж г., Содружества бул., д. 6, Застройщик: Инвестжилстрой.Жилой комплекс по ул. Бульвар Содружества — часть масштабного проекта развития...
    • 55 м²
    • 2-ком
    • 12/13 эт.
    8 047 500 Р
    Агент
    +7 (912) Показать номер
    Посмотреть контакты
    2-к кв. Воронежская область, Воронеж бул. Содружества, 6 (55.6 м) - Фото 1
    2-к кв. Воронежская область, Воронеж бул. Содружества, 6 (55.6 м) - Фото 2
    2-комнатная квартира, общая площадь 55м², жилая 27м², кухня 13м²

    Квартира: 2 к 55,60 кв.м., 10 этаж в комплексе Ритм, 1 очередь, корп.1 (секции 3-4), сдача: 2кв. , этажей: 13, адрес Воронеж г., Содружества бул., д. 6, Застройщик: Инвестжилстрой.Жилой комплекс по ул. Бульвар Содружества — часть масштабного проекта развития...
    • 55 м²
    • 2-ком
    • 10/13 эт.
    7 978 600 Р
    Агент
    +7 (912) Показать номер
    Посмотреть контакты
    2-к кв. Воронежская область, Воронеж бул. Содружества, 6 (55.5 м) - Фото 1
    2-к кв. Воронежская область, Воронеж бул. Содружества, 6 (55.5 м) - Фото 2
    2-комнатная квартира, общая площадь 55м², жилая 27м², кухня 10м²

    Квартира: 2 к 55,50 кв.м., 10 этаж в комплексе Ритм, 1 очередь, корп.1 (секции 3-4), сдача: 2кв. , этажей: 13, адрес Воронеж г., Содружества бул., д. 6, Застройщик: Инвестжилстрой.Жилой комплекс по ул. Бульвар Содружества — часть масштабного проекта развития...
    • 55 м²
    • 2-ком
    • 10/13 эт.
    7 992 000 Р
    Агент
    +7 (912) Показать номер
    Посмотреть контакты
    2-к кв. Воронежская область, Воронеж бул. Содружества, 6 (55.6 м) - Фото 1
    2-к кв. Воронежская область, Воронеж бул. Содружества, 6 (55.6 м) - Фото 2
    2-комнатная квартира, общая площадь 55м², жилая 27м²

    ЖК РИТМ — ДОСТУПНАЯ И ВЫГОДНАЯ ИНВЕСТИЦИЯ В ВАШЕ БУДУЩЕЕЖилой комплекс Ритм по ул. Бульвар Содружества уч. 6 — часть масштабного проекта развития территории воронежского левобережья — микрорайона Ключи , который займет 28,6 га недалеко от въезда...
    • 55 м²
    • 2-ком
    • 9/13 эт.
    7 978 600 Р
    Агент
    +7 (989) Показать номер
    Посмотреть контакты
    2-к кв. Воронежская область, Воронеж бул. Содружества, 6 (55.6 м) - Фото 1
    2-к кв. Воронежская область, Воронеж бул. Содружества, 6 (55.6 м) - Фото 2
    2-комнатная квартира, общая площадь 55м², жилая 27м²

    ЖК РИТМ — ДОСТУПНАЯ И ВЫГОДНАЯ ИНВЕСТИЦИЯ В ВАШЕ БУДУЩЕЕЖилой комплекс Ритм по ул. Бульвар Содружества уч. 6 — часть масштабного проекта развития территории воронежского левобережья — микрорайона Ключи , который займет 28,6 га недалеко от въезда...
    • 55 м²
    • 2-ком
    • 10/13 эт.
    7 978 600 Р
    Агент
    +7 (989) Показать номер
    Посмотреть контакты

    Не нашли подходящего объявления?

    Оставьте заявку, и наши риэлторы подберут квартиру в новостройке в районе Воронежа

    (0)