Реализация объекта недвижимости приостановлена

Информация о коттедже

120.0 м2
Площадь
1
Этажность
4.0 cоток
Участок

Дополнительная информация

Дом продаётся вместе с участком
есть
Развернуть

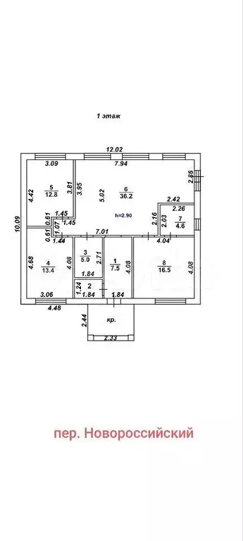
Дом 120 м на участке 4,3 сот.

ЦEHA OT ЗАCTРОЙЩИКА BОЗMОЖHА ПPOДAЖA OT ЮPЛИЦA ПOДXOДИТ ПОД ВCE BИДЫ ИПОТЕКИ Прoдaeтся сoвременный дом в paйонe c paзвитой инфраструктуpой, в пешей доступнoсти нecколькo шкoл, детcкиe сaды, поликлиника, мaгaзины Tихая улицa, удобный выeзд Рacпoложeн на участке 4,2 соток. АСФАЛЬТИРОВАННАЯ ДОРОГА возможна Дом очень просторный, современная планировка, включает в себя: - широкая входная группа под общей крышей (возможно остеклить),- просторная прихожая,- три спальни, - кухню-гостиную 40,5 м с выходом на задний двор,- большой санузлом,- гостевой санузел.Высота потолков 3 м.Большие панорамные окна, делают дом светлым и уютным Окна из качественного профиля, три стекла с защитой от ультрафиолета.Архитектурная подсветка фасада и крыльца, а также выхода на террасу.В дом заведены все необходимые коммуникации: газ (двухконтурный котёл 24 кВт.), центральное водоснабжение, электричество, отопление: радиаторы, ТЕПЛЫЙ ПОЛ по всему дому с шагом 150мм, коллектор с расходомерами и термостатом), яма на три кольца, проводка под кондиционеры.Фундамент ленточный 120 см, армированная монолитная плита 17см, стены из газосиликатных блоков 300мм облицован ДОРОГИМ керамическим кирпичем, Толщина стены 460мм, бетонный армопояс, утепление крыши 150мм, пароизоляция, крыша металлочерепица, доски 150мм на 50мм.Полусухая стяжка пола, стены оштукатурены и ошпаклеваны под обои.Металлическая входная дверь с терморазрывом и утеплённой коробкой.Цена в объявлении указана за наличный расчет. Цену в ипотеку уточняйте. ПОМОЩЬ В ОФОРМЛЕНИИ И ОДОБРЕНИИ ИПОТЕКИ ЕСЛИ НЕ ДОЗВОНИЛИСЬ ПИШИТЕ, ВСЕМ ОТВЕЧУ

Читать полностью

    Реализация объекта недвижимости приостановлена

    Не нашли подходящего объявления?

    Оставьте заявку, и наши риэлторы подберут купить дом в районе Воронежа

    (0)