Реализация объекта недвижимости приостановлена

Информация о коттедже

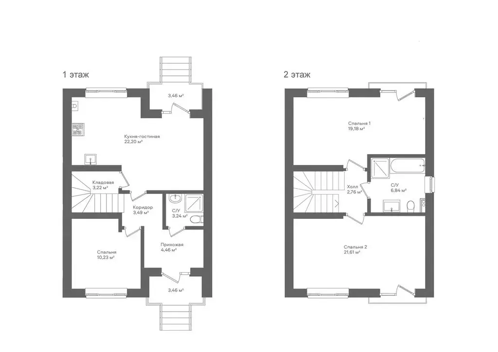
105.0 м2
Площадь
2
Этажность
3.0 cоток
Участок

Дополнительная информация

Дом продаётся вместе с участком
есть
Развернуть

Дом в Семилукский район, Губарёвское сельское поселение, жилой ...

Коттеджный поселок проектируется по системе умный поселок . Это 5 очередей строительства в едином авторском архитектурном стиле и в общей концепции городского комфорта загородного жилья. Жилой комплекс создается по европейским принципам квартальной застройки. Формат 2-этажных таунхаусов совмещает удобство благоустроенной территории с индивидуальностью частного дома. У каждого блока свой огороженный двор и место для парковки с удобным въездом.На территории поселка современные детские и спортивные площадки, пешеходные и велодорожки, продуманное освещение, дизайнерское озеленение. Территория закрыта от посторонних и круглосуточно охраняется. Чистоту и порядок в комплексе гарантирует собственная управляющая компания. Стандарты загородной жизни расширяются за счет продуманных коммуникаций: централизованное водоснабжение и канализация, собственные водозаборный узел для питьевого водоснабжения и подстанция с защитой от сбоев, индивидуальные газовые приборы и встроенно-пристроенные котельные, умное отопление дома в зависимости от температуры окружающей среды, зарядные станции для электромобилей в каждом квартале.Коттеджный поселок находится всего в 9 км от Воронежа. Для комфорта жителей до ЖК легко добраться не только на машине, но и на общественном транспорте, ведь до умной остановки всего 10 метров. В 8 км от жилого комплекса расположен горнолыжный комплекс Донгор.

Читать полностью

    Реализация объекта недвижимости приостановлена

    Не нашли подходящего объявления?

    Оставьте заявку, и наши риэлторы подберут купить дом в районе Семилукского района

    (0)