Реализация объекта недвижимости приостановлена

Информация о квартире

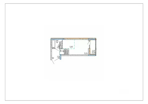
47.0 м2
Площадь
1
Комната
4
Этаж
9
Этажность
Развернуть

1-к кв. Воронежская область, Семилуки (47.8 м)

Продаётся 1-комнатная квартира в строящемся доме (Дом 1), срок сдачи: III-кв. 2025, общей площадью 47.8 кв.м., на 4 этаже. Новый жилой комплекс Донское от группы компаний ПромСпецСтройасположен по адресу: г. Семилуки, по ул. Ленина.

Читать полностью

    Реализация объекта недвижимости приостановлена

    Не нашли подходящего объявления?

    Оставьте заявку, и наши риэлторы подберут квартиру в новостройке в районе Семилуков

    (0)