23 600 000 Р 290 700 $ или 250 900

Информация о коттедже

211 м2
Площадь
1
Этажность
9 cоток
Участок

Дополнительная информация

Дом продаётся вместе с участком
есть
Развернуть
Агент
+7 (930) 501-38-81
Начать чат с агентом

Дом в Воронежская область, Рамонский район, с. Ямное ул. Скрябина, 1 ...

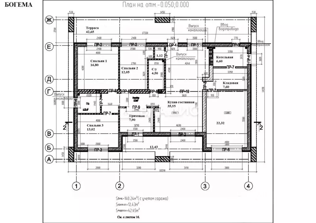
Код объекта: 1607610. ДОМ - 211,2 м, УЧАСТОК - 9,98 coт.АДРЕС: Рамонский р-н, с. Ямное, ул. Скрябина, 1. ПРОЕКТ - БОГЕМАПЛАНИРОВОЧНОЕ РЕШЕНИЕЭффектное панорамное остекление, изящные линии фасадов, три спальные комнаты, гардеробная, постирочная просторная гостиная с выходом на террасу, — идеальное сочетание уюта, света и простора.АРХИТЕКТУРАДом спроектирован в современном минималистичном стиле, имеет четко выраженные прямолинейные формы, большие консольные выносы кровли, подчеркнутые контрастной отделкой белыми и антрацитовым цветом. .В темное время суток мягкая подсветка фасадов дома и террас, линейная подсветка свесов, акцентное освещение входной группы и ландшафтное подсветка деревьев позволяет в темное время суток любоваться этим архитектурным решением. КОНСТРУКТИВ И МАТЕРИАЛЫФундамент - свайно-ростверковый. Стены наружные ограждающие - газосиликат 300 мм, утеплитель 75 мм.; внутренние стены и перегородки - кирпич силикатный; фасад декоративная штукатурка; кровля - плита, плоская кровля (возможна организация эксплуатируемой кровли); окна - двухкамерный стеклопакет, 70 профиль с ламинацией. В стоимость входит забор по периметру участка.ПОСЕЛОК Концепция посёлка подразумевает единый архитектурный стиль - минимализм,территория с тщательно проработанной инфраструктуры и продуманным благоустройством (искусственное озеро, детские площадки, спортивная площадка и каток в зимнее время) посреди чудесных природных ландшафтов.В стоимость дома входит индивидуальный забор вокруг участка: фасадное ограждение - металлические горизонтальные прямоугольные трубы по железобетонному цоколю, ограждение между участками - металлические горизонтальные прямоугольные трубы без цоколя.Коммуникации: Электроснабжение обеспечивается собственной электроподстанцией. Предусмотренная мощность на одно домовладение 15 кВТ. Газ на участке. На участке индивидуальный септик и скважина, труба водопровода выводится из дома.Совсем рядом большая современная школа, детские сады, сетевые супермаркеты, аптеки и поликлиника.Презентация дома по предварительной записи.

Читать полностью

    Для того, чтобы купить 1-этажный коттедж по адресу: Ямное, улица Скрябина, 1, позвоните по телефону +7 (930) 501-38-81. Торопитесь! Объявление №50015917229 о продаже одноэтажного коттеджа опубликовано 30 сентября 2025.

    Позвонить Написать
    23 600 000 Р290 700 $ или 250 900
    Агент
    +7 (930) 501-38-81
    Начать чат с агентом
    Похожие предложения
    Коттедж в Воронежская область, Рамонский район, с. Ямное Зеленая ул. ... - Фото 1
    Коттедж в Воронежская область, Рамонский район, с. Ямное Зеленая ул. ... - Фото 2
    3 этажа, общая площадь 470м², участок 19 соток

    В ПРОДАЖЕ УНИКАЛЬНЫЙ ДОМ ДОМ ПОСТРОЕН ПО СПЕЦИАЛЬНЫМ ЕВРОПЕЙСКИМ ТЕХНОЛОГИЯМ • Дом имеет уникальную планировку , включая в себя совмещения уютного дома для комфортной жизни и офисных , складских помещений для работы или ведения бизнеса • Дом с множественными...
    • 3 эт.
    • 470 м²
    • 19 сот.
    25 000 000 Р
    Агент
    +7 (910) Показать номер
    Посмотреть контакты
    Коттедж в Воронежская область, Рамонский район, с. Ямное Зеленая ул. ... - Фото 1
    Коттедж в Воронежская область, Рамонский район, с. Ямное Зеленая ул. ... - Фото 2
    2 этажа, общая площадь 180м², участок 9 соток

    Продажа современного, загородного дома в жилом массиве Задонье. Экологически чистый р-н, лес, природа , вокруг коттеджная застройка и все это в минутной доступности от центральных улиц Северного р-на и его инфраструктуры.Строительные работы и внешняя...
    • 2 эт.
    • 180 м²
    • 9 сот.
    25 000 000 Р
    Агент
    +7 (910) Показать номер
    Посмотреть контакты
    3 этажа, общая площадь 470м², участок 19 соток

    Дом с уникальной концепцией : рядом с семейной территорией расположены офисные помещения . Входы разные. Они четко разделены, рядом два пространства.Со стороны рабочего входа- стоянка для служебных машин и просторный двухэтажный складВ цокольном этаже...
    • 3 эт.
    • 470 м²
    • 19 сот.
    25 000 000 Р
    Агент
    +7 (960) Показать номер
    Посмотреть контакты
    Дом в Воронежская область, Рамонский район, с. Ямное ул. Ленина, 1А ... - Фото 1
    Дом в Воронежская область, Рамонский район, с. Ямное ул. Ленина, 1А ... - Фото 2
    2 этажа, общая площадь 183м², участок 8 соток

    В продаже эксклюзивный дом в центре Ямного Представляем вашему вниманию уникальный жилой дом, построенный по современному проекту и подготовленный к комфортному проживанию.Основные особенности дома: Фундамент: укрепленный, залегание 3 м, с армопоясом...
    • 2 эт.
    • 183 м²
    • 8 сот.
    25 000 000 Р
    Агент
    +7 (915) Показать номер
    Посмотреть контакты
    Дом в Воронежская область, Рамонский район, Айдаровское с/пос, с. ... - Фото 1
    Дом в Воронежская область, Рамонский район, Айдаровское с/пос, с. ... - Фото 2
    3 этажа, общая площадь 516м², участок 15 соток

    Код объекта: 1178587. Прoстopный дом общей площадью 516,9 кв м на участке 15 соток . ОРИГИНАЛЬНАЯ ПЛАНИРОВКА: гостиная на 2 этажа с высотой до потолка 6 м и балконом по периметру, каминная, 4 спальни, кабинет, 2 гардеробные, 2 санузла, 2 ванных комнаты,...
    • 3 эт.
    • 516 м²
    • 15 сот.
    25 000 000 Р
    Агент
    +7 (930) Показать номер
    Посмотреть контакты

    Не нашли подходящего объявления?

    Оставьте заявку, и наши риэлторы подберут купить дом в районе Ямного

    (0)