4 950 000 Р 61 150 $ или 52 780

Информация о коттедже

90 м2
Площадь
1
Этажность
5 cоток
Участок

Дополнительная информация

Дом продаётся вместе с участком
есть
Развернуть
Агент
+7 (919) 180-72-20
Начать чат с агентом

Дом в Воронежская область, Рамонский район, с. Новоживотинное ул. 40 ...

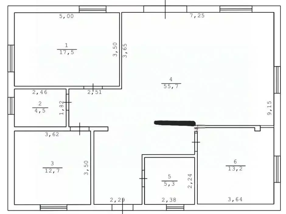
Продаётся одноэтажный дом 90 кв.м. на участке 5 соток в Рамонском районе, Новоживотинновском сельском поселении, с. Хвощеватка, ул. Васильковая, д. 45, в живописном видовом месте, недалеко от реки Дон, высокий берег. Дорога асфальтирована почти до дома, на улице строятся дома, новая улица недалеко от реки Дон. Недалеко есть магазины, в Новоживотинном есть школа, детский сад.Дом 90 кв.м. из газосиликата, облицован кирпичом. Фундамент ленточный, монолитный (бетон 300) 1,1 м.Тёплый пол по всему дому, 6 контуровКухня гостиная с выходом на улицу 31 кв.м.Мастер спальня 15 кв.м.Две комнаты или детские по 12, 13 кв.м.Коридор Туалет и ванная 5,6 кв.м.Жилая 40 кв.м.Высота 3 м.Предчистовая отделка, возможна чистовая отделка. Теплый водяной пол, стяжка пола, стены под обои или покраску стен, электрическая разводка по всему дому. Большие витражные французские окна двухкамерные с тройным стеклопакетом, входная дверь 130 см. Планировка удобная, ничего лишнего, просторная кухня гостиная с прекрасным видом на луг. Скважина, септик из двух колец.Есть возможность установить Газ + Чистовая отделка, примеры в фотогалереи (современный керамогранит, плитка в ванной комнате, натяжные потолки, межкомнатные двери) +500- Также можно развести электропроводку под ваши потребности.Подходит под семейную ипотеку, ипотеку, также рассматриваем наличные, маткап, сертификаты. Помощь в одобрении ипотеки, полное сопровождение. Звоните, с удовольствием покажем.

Читать полностью

    Для того, чтобы купить 1-этажный коттедж по адресу: Новоживотинное, ул. 40 лет Победы, 1Д, позвоните по телефону +7 (919) 180-72-20. Торопитесь! Объявление №50016526646 о продаже одноэтажного коттеджа опубликовано 2 дня назад.

    Позвонить Написать
    4 950 000 Р61 150 $ или 52 780
    Агент
    +7 (919) 180-72-20
    Начать чат с агентом
    Похожие предложения
    Дом в Воронежская область, Рамонский район, Новоживотинновское с/пос, ... - Фото 1
    Дом в Воронежская область, Рамонский район, Новоживотинновское с/пос, ... - Фото 2
    1 этаж, общая площадь 90м², участок 5 соток

    СЕМЕЙНАЯ ИПОТЕКА Дом 90 кв.м и земельный участок 5 сот. в с. Хвощеватка ( Ноаоживотиновское сельское поселение) Рамонского района. 3 изолированные комнаты ( 13 кв.м, 10 кв.м, 9 кв.м) и большая кухня-гостиная 32 кв.м. Предчистовая отделка ( теплые полы,...
    • 1 эт.
    • 90 м²
    • 5 сот.
    4 950 000 Р
    Агент
    +7 (915) Показать номер
    Посмотреть контакты
    Дом в Воронежская область, Рамонский район, Новоживотинновское с/пос, ... - Фото 1
    Дом в Воронежская область, Рамонский район, Новоживотинновское с/пос, ... - Фото 2
    1 этаж, общая площадь 110м², участок 8 соток

    Арт.ПОДХОДИТ ПОД СЕМЕЙНУЮ ИПОТЕКУ Просыпаться под пение птиц за окном ,а не от городского шума.Провожать вечер за чашкой чая в собственном саду ,где играют дети.Это не сцена из фильма-это ваша новая жизнь.Продается почти готовый дом в отличном месте...
    • 1 эт.
    • 110 м²
    • 8 сот.
    4 930 000 Р
    Агент
    +7 (910) Показать номер
    Посмотреть контакты
    Дом в Воронежская область, Рамонский район, Новоживотинновское с/пос, ... - Фото 1
    Дом в Воронежская область, Рамонский район, Новоживотинновское с/пос, ... - Фото 2
    2 этажа, общая площадь 56м², участок 5 соток

    Продается дача в коттеджном поселке Изумрудасположена на улице Изумрудной в 15 минутах езды от города. Двухэтажный кирпичный дом площадью 56,6 м с гаражом и подвалом полностью готов к комфортному проживанию. На первом этаже — просторная гостиная и кухня,...
    • 2 эт.
    • 56 м²
    • 5 сот.
    5 000 000 Р
    Агент
    +7 (980) Показать номер
    Посмотреть контакты
    Дом в Воронежская область, Рамонский район, Новоживотинновское с/пос, ... - Фото 1
    Дом в Воронежская область, Рамонский район, Новоживотинновское с/пос, ... - Фото 2
    1 этаж, общая площадь 48м², участок 12 соток

    Идеальный Дачный Дом для Отдыха в Рамонском районе Продаётся уютный летний дом в СНТ Энергия-1 , всего в 23 км от Воронежа Идеальное место для отдыха и загородной жизни.Что вас ждёт:* Комфорт: Дом из бруса, построен в 2020 году, общей площадью 48...
    • 1 эт.
    • 48 м²
    • 12 сот.
    5 000 000 Р
    Агент
    +7 (980) Показать номер
    Посмотреть контакты
    Дом в Воронежская область, с. Новая Усмань ул. Ленина, 70 (52 м) - Фото 1
    Дом в Воронежская область, с. Новая Усмань ул. Ленина, 70 (52 м) - Фото 2
    1 этаж, общая площадь 52м², участок 9 соток

    Продается уютный дом с участком в центре Новой Усмани О доме: Кирпичный дом площадью 52 кв м. Полностью готов к проживанию. В доме две раздельные комнаты и кухня, выполнен косметический ремонт, установлен кондиционер, новый газовый котел. Совмещённый...
    • 1 эт.
    • 52 м²
    • 9 сот.
    4 900 000 Р
    Агент
    +7 (980) Показать номер
    Посмотреть контакты

    Не нашли подходящего объявления?

    Оставьте заявку, и наши риэлторы подберут купить дом в районе Новоживотинного

    (0)