13 900 000 Р 171 800 $ или 148 800

Информация о коттедже

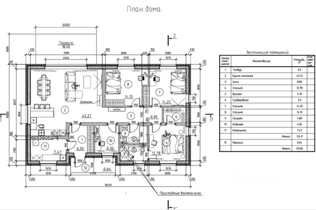
130 м2
Площадь
1
Этажность
10 cоток
Участок

Дополнительная информация

Дом продаётся вместе с участком
есть
Развернуть
Агент
+7 (980) 530-22-76
Начать чат с агентом

Коттедж в Воронежская область, Рамонский район, Новоживотинновское ...

Продается ГОТОВЫЙ ДОМ с предчистовой отделкой по концепции White Box. Дом расположен в охраняемом КП Лазурный. Почему стоит выбрать данный проект: - Входная группа и терраса облицованы керамогранитом- Кровля дома выполнена из гибкой черепицы Dcke графитового цвета- Отделка фасада выполнена из декоративной штукатуркой Dufa и фасадной плиткой- Выполнена фасадная часть забора, автоматические откатные ворота Alutech, видеодомофон- Выполнено благоустройство территории (тротуарная плитка, мраморная крошка, туи) - В доме подключены все необходимые коммуникации (электричество, газ, отопление, вода, канализация и интернет JustLan 300 мбит)- Установлен газовый котел ITALTHERM (навесной, двухконтурный) с открытой камерой сгорания, 24 кВт.- Алюминиевые окнаи зготовлены из немецкого профиля 65 мм с двухкамерным, мультифункциональным стеклопакетом (за счет зеркального покрытия летом отражает солнечные лучи, зимой держит тепло внутри дома).- По всей территории дома установлены водяные теплые полы, в том числе и на террасе - В доме предусмотрен удобный витражный выход из просторной кухне-гостиной на вашу летнюю террасу.- В доме присутствует чердак, чтобы вы могли реализовать весь потенциал просторного подкровельного пространства.- Грамотные архитекторы с большим опытом разработали практичную и продуманную планировку дома и расположения комнат по зональности.- Планировка дома предусматривает два санузла и прачечную комнату, что всегда оценит хорошая хозяйкаВам остается только выбрать обои, положить плитку и уже в ближайшее время можно наслаждаться жизнью в своем собственном доме. Насыщенная инфраструктура: школы, сады, магазины формата у дома, детские и спортивные площадки, торгово-развлекательные центры, смешанный лес вокруг и потрясающая природа позволят полноценно насладиться загородной жизнью и забыть о городской суетеЗаписывайтесь на просмотр в удобное для вас время

Читать полностью

    Для того, чтобы купить 1-этажный коттедж по адресу: Медовка, Лазурная улица, 115, позвоните по телефону +7 (980) 530-22-76. Торопитесь! Объявление №50015852621 о продаже одноэтажного коттеджа опубликовано 30 октября 2025.

    Позвонить Написать
    13 900 000 Р171 800 $ или 148 800
    Агент
    +7 (980) 530-22-76
    Начать чат с агентом
    Похожие предложения
    Коттедж в Воронежская область, Рамонский район, Новоживотинновское ... - Фото 1
    Коттедж в Воронежская область, Рамонский район, Новоживотинновское ... - Фото 2
    1 этаж, общая площадь 130м², участок 10 соток

    Арт.Продается Готовый Дом с предчистовой отделкой по концепции White Box. Дом расположен в охраняемом КП Лазурный.Почему стоит выбрать данный проект:- Входная группа и терраса облицованы керамогранитом.- Кровля дома выполнена из гибкой черепицы Dcke графитового...
    • 1 эт.
    • 130 м²
    • 10 сот.
    13 400 000 Р
    Агент
    +7 (933) Показать номер
    Посмотреть контакты
    Дом в Воронежская область, Рамонский район, Новоживотинновское с/пос, ... - Фото 1
    Дом в Воронежская область, Рамонский район, Новоживотинновское с/пос, ... - Фото 2
    1 этаж, общая площадь 174м², участок 10 соток

    Продаётся дом в Рамонском районе, деревня Медовка Предлагается к покупке дом, построенный из газосиликатных блоков. Это надёжный и прочный материал, который обеспечивает долговечность и энергоэффективность здания. Основные характеристики: * Общая площадь...
    • 1 эт.
    • 174 м²
    • 10 сот.
    14 600 000 Р
    Агент
    +7 (933) Показать номер
    Посмотреть контакты
    Дом в Воронежская область, Рамонский район, Новоживотинновское с/пос, ... - Фото 1
    Дом в Воронежская область, Рамонский район, Новоживотинновское с/пос, ... - Фото 2
    1 этаж, общая площадь 140м², участок 7 соток

    Дом, который говорит сам за себя Удобная планировка без лишних коридоров: кухня гостинная, 3 спальни, кабинет, 2 сан. уз., котельная, терраса Все коммуникации подключены:-газ-свет-вода централизованная.Благоустроенный участок с забором, откатные ворота...
    • 1 эт.
    • 140 м²
    • 7 сот.
    13 000 000 Р
    Агент
    +7 (981) Показать номер
    Посмотреть контакты
    Дом в Воронежская область, Рамонский район, Новоживотинновское с/пос, ... - Фото 1
    Дом в Воронежская область, Рамонский район, Новоживотинновское с/пос, ... - Фото 2
    1 этаж, общая площадь 125м², участок 7 соток

    Дом Мечты? Легко Новый, теплый, уютный дом Удобная планировка без лишних коридоров. O ДОМЕ:Площадь дома 125 кв.мВысота потолков 3мФундамент: ленточный глубина 1,1 cмСтены: ГЗС 300 мм+ вент зазор+ облицовочный кирпичКровля: Meталлoчерeпица 0,44мм, утепление...
    • 1 эт.
    • 125 м²
    • 7 сот.
    13 500 000 Р
    Агент
    +7 (981) Показать номер
    Посмотреть контакты
    Дом в Воронежская область, Рамонский район, Новоживотинновское с/пос, ... - Фото 1
    Дом в Воронежская область, Рамонский район, Новоживотинновское с/пос, ... - Фото 2
    1 этаж, общая площадь 232м², участок 10 соток

    Продается капитальный дом площадью 232 м на собственном участке 10 соток в деревне Медовка Рамонского района. Объект характеризуется продуманной и рациональной планировкой: четыре изолированные комнаты, просторная кухня-гостиная 55 м, два санузла и две...
    • 1 эт.
    • 232 м²
    • 10 сот.
    14 000 000 Р
    Агент
    +7 (980) Показать номер
    Посмотреть контакты

    Не нашли подходящего объявления?

    Оставьте заявку, и наши риэлторы подберут купить дом в районе Медовки

    (0)