5 935 000 Р 73 070 $ или 63 250

Информация о квартире

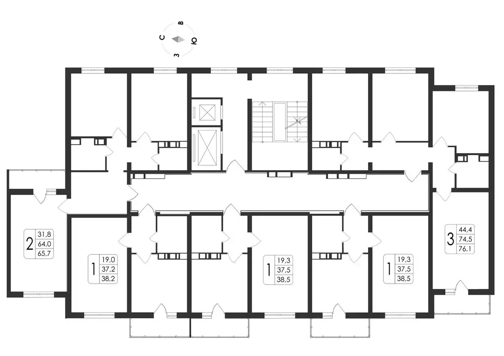
76 м2
Площадь
3
Комнаты
9
Этаж
10
Этажность

Дополнительная информация

Тип дома
блочный
Развернуть
Агент
+7 (958) 485-07-19
Начать чат с агентом

3-к кв. Воронежская область, Новоусманский район, пос. Отрадное ул. ...

Продаётся 3-комнатная квартира в строящемся доме (Позиция 61), срок сдачи: IV-кв. 2025, общей площадью 76.1 кв.м., на 9 этаже. Расположение, транспортная доступность Жилой комплекс Новое Отрадное - это микрорайон, в состав которого входят сорок восемь 10-этажных зданий бюджетного класса, возведенных по технологии объемно-блочного домостроения. Микрорайон, включающий в себя четыре квартала, размещается на огромной территории площадью 74,9 гектар, в села Рыкань Новоусманского района Воронежской области, на улице Первомайская, рядом с улицами Димитрова и Ильюшина, по соседству с Левобережным районом Воронежа. Здесь курсирует множество автобусов и маршрутных такси, на которых можно добраться до любого района Воронежа. Ближайшие автобусные остановки - Нефтебаза , Отрадное-1 и Дачная . Инфраструктура Собственная инфраструктура микрорайона включает в себя несколько детских садов, общеобразовательную школу, взрослую и детскую поликлинику, разнообразные магазины, кафе, аптеки, сервисные службы и оздоровительные учреждения. Главный внешний инфраструктурный объект, располагающийся буквально в нескольких сотнях метров от Нового Отрадного - это гипермаркет товаров для дома и дачи Леруа Мерлен . Рядом находится ещё один крупный магазин домашних товаров - торговый центр Твой дом . Поблизости также магазин товаров для дома и косметики Ассорти идей . За 10-15 минут от микрорайона можно доехать до инфраструктуры ближайших районов Воронежа, где работают детские сады 88, 133, 183, 42, 180, школы 30 69, 23, 54, Автомобильно-транспортный институт, детская поликлиника 7, отделение восстановительного лечения поликлиники 14, городская больница 10, больница 16, супермаркеты Магнит , Пятью пять , Пятерочка , Центорг , Европа , рынок Грузовой двор , торговые центры Metro Cash Carry, Ваи , Глеб , Полет , гипермаркет Линия , военно-исторический музей Музей-диорама , стадион Буран . Экологическая ситуация здесь неоднозначная. С одной стороны, микрорайон находится за пределами городской черты, рядом с лесопарковой зоной. С другой стороны, поблизости с ним располагаются нефтебаза, промзоны и крупные автотрассы. Недалеко также Левобережное кладбище. Надежность застройщика Микрорайон Новое Отрадное - это масштабный проект созданной в 1997 году воронежской компании Выбор . Компания строит в Воронеже самую разнообразную жилую недвижимость (от эконом до бизнес-класса), а также коммерческие и социальные объекты. Одно из главных направлений деятельности Выбора - комплексное освоение территорий и возведение крупномасштабных жилых кварталов и микрорайонов. Другая особенность компании - использование инновационной технологии строительства зданий из объемных блоков (которые для компании изготавливает собственный завод объемно-блочного домостроения Выбор-ОБД ). В родном городе компания Выбор построила жилые комплексы Эльбрус , Цветной бульвар , Ultra, Ботанический сад , Атлант , жилые дома на улицах Шишкова, Березовая роща,

Читать полностью
    Позвонить Написать
    5 935 000 Р73 070 $ или 63 250
    Агент
    +7 (958) 485-07-19
    Начать чат с агентом
    Похожие предложения в Отрадном
    2-к кв. Воронежская область, Новоусманский район, пос. Отрадное ул. ... - Фото 1
    2-к кв. Воронежская область, Новоусманский район, пос. Отрадное ул. ... - Фото 2
    2-комнатная квартира, общая площадь 66м²

    Современная квартира с большой кухней-гостинной. Большая кухня-гостиная, Удобная планировка, Просторная гардеробная, Выход на лоджию из спальни, Увеличенные видовые окна. Квартира спроектирована с учётом современного стиля жизни и тенденций. Большая...
    • 66 м²
    • 2-ком
    • 6/9 эт.
    5 882 899 Р
    Агент
    +7 (912) Показать номер
    Посмотреть контакты
    2-к кв. Воронежская область, Новоусманский район, пос. Отрадное ул. ... - Фото 1
    2-к кв. Воронежская область, Новоусманский район, пос. Отрадное ул. ... - Фото 2
    2-комнатная квартира, общая площадь 65м²

    Современная квартира с большой кухней-гостинной. Большая кухня-гостиная, Удобная планировка, Просторная гардеробная, Выход на лоджию из спальни, Увеличенные видовые окна. Квартира спроектирована с учётом современного стиля жизни и тенденций. Большая...
    • 65 м²
    • 2-ком
    • 6/9 эт.
    5 856 200 Р
    Агент
    +7 (912) Показать номер
    Посмотреть контакты
    2-к кв. Воронежская область, Новоусманский район, пос. Отрадное ул. ... - Фото 1
    2-к кв. Воронежская область, Новоусманский район, пос. Отрадное ул. ... - Фото 2
    2-комнатная квартира, общая площадь 65м²

    Современная квартира с большой кухней-гостинной. Большая кухня-гостиная, Удобная планировка, Просторная гардеробная, Выход на лоджию из спальни, Увеличенные видовые окна. Квартира спроектирована с учётом современного стиля жизни и тенденций. Большая...
    • 65 м²
    • 2-ком
    • 2/9 эт.
    5 856 200 Р
    Агент
    +7 (912) Показать номер
    Посмотреть контакты
    2-к кв. Воронежская область, Новоусманский район, пос. Отрадное ул. ... - Фото 1
    2-к кв. Воронежская область, Новоусманский район, пос. Отрадное ул. ... - Фото 2
    2-комнатная квартира, общая площадь 66м²

    Современная квартира с большой кухней-гостинной. Большая кухня-гостиная, Удобная планировка, Просторная гардеробная, Выход на лоджию из спальни, Увеличенные видовые окна. Квартира спроектирована с учётом современного стиля жизни и тенденций. Большая...
    • 66 м²
    • 2-ком
    • 3/9 эт.
    5 882 899 Р
    Агент
    +7 (912) Показать номер
    Посмотреть контакты
    2-к кв. Воронежская область, Новоусманский район, пос. Отрадное ул. ... - Фото 1
    2-к кв. Воронежская область, Новоусманский район, пос. Отрадное ул. ... - Фото 2
    2-комнатная квартира, общая площадь 65м²

    Современная квартира с большой кухней-гостинной. Большая кухня-гостиная, Удобная планировка, Просторная гардеробная, Выход на лоджию из спальни, Увеличенные видовые окна. Квартира спроектирована с учётом современного стиля жизни и тенденций. Большая...
    • 65 м²
    • 2-ком
    • 7/9 эт.
    5 856 200 Р
    Агент
    +7 (912) Показать номер
    Посмотреть контакты

    Не нашли подходящего объявления?

    Оставьте заявку, и наши риэлторы подберут квартиру в новостройке в районе Отрадного

    (0)