6 280 533 Р 77 180 $ или 66 980

Информация о квартире

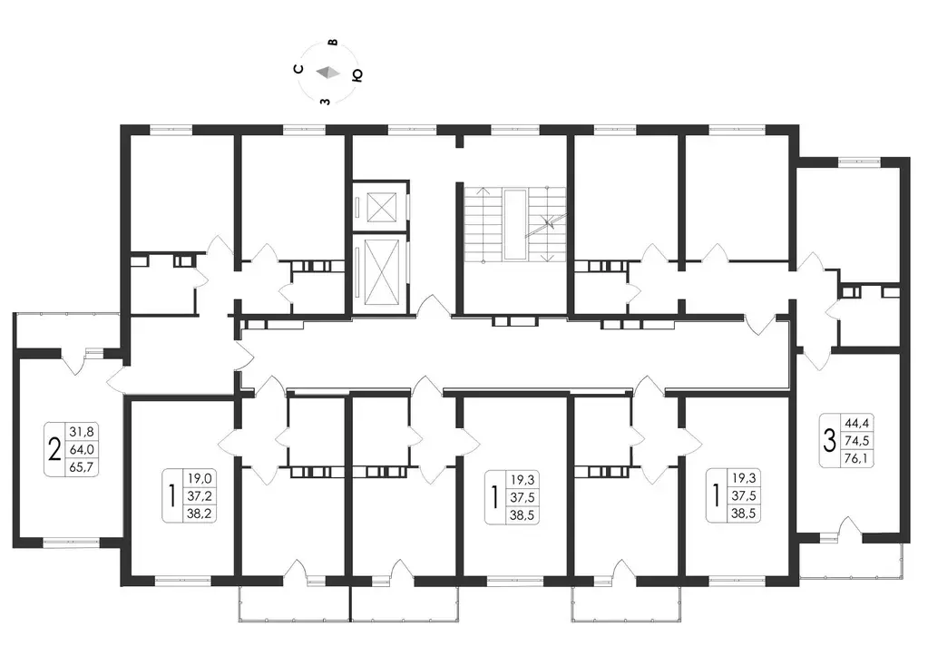
76 м2
Площадь
3
Комнаты
6
Этаж
10
Этажность

Дополнительная информация

Тип дома
блочный
Развернуть
Агент
+7 (958) 485-07-19
Начать чат с агентом

3-к кв. Воронежская область, Новоусманский район, пос. Отрадное ул. ...

Продаётся 3-комнатная квартира в строящемся доме (Позиция 61), срок сдачи: IV-кв. 2025, общей площадью 76.1 кв.м., на 6 этаже. Расположение, транспортная доступность Жилой комплекс Новое Отрадное - это микрорайон, в состав которого входят сорок восемь 10-этажных зданий бюджетного класса, возведенных по технологии объемно-блочного домостроения. Микрорайон, включающий в себя четыре квартала, размещается на огромной территории площадью 74,9 гектар, в села Рыкань Новоусманского района Воронежской области, на улице Первомайская, рядом с улицами Димитрова и Ильюшина, по соседству с Левобережным районом Воронежа. Здесь курсирует множество автобусов и маршрутных такси, на которых можно добраться до любого района Воронежа. Ближайшие автобусные остановки - Нефтебаза , Отрадное-1 и Дачная . Инфраструктура Собственная инфраструктура микрорайона включает в себя несколько детских садов, общеобразовательную школу, взрослую и детскую поликлинику, разнообразные магазины, кафе, аптеки, сервисные службы и оздоровительные учреждения. Главный внешний инфраструктурный объект, располагающийся буквально в нескольких сотнях метров от Нового Отрадного - это гипермаркет товаров для дома и дачи Леруа Мерлен . Рядом находится ещё один крупный магазин домашних товаров - торговый центр Твой дом . Поблизости также магазин товаров для дома и косметики Ассорти идей . За 10-15 минут от микрорайона можно доехать до инфраструктуры ближайших районов Воронежа, где работают детские сады 88, 133, 183, 42, 180, школы 30 69, 23, 54, Автомобильно-транспортный институт, детская поликлиника 7, отделение восстановительного лечения поликлиники 14, городская больница 10, больница 16, супермаркеты Магнит , Пятью пять , Пятерочка , Центорг , Европа , рынок Грузовой двор , торговые центры Metro Cash Carry, Ваи , Глеб , Полет , гипермаркет Линия , военно-исторический музей Музей-диорама , стадион Буран . Экологическая ситуация здесь неоднозначная. С одной стороны, микрорайон находится за пределами городской черты, рядом с лесопарковой зоной. С другой стороны, поблизости с ним располагаются нефтебаза, промзоны и крупные автотрассы. Недалеко также Левобережное кладбище. Надежность застройщика Микрорайон Новое Отрадное - это масштабный проект созданной в 1997 году воронежской компании Выбор . Компания строит в Воронеже самую разнообразную жилую недвижимость (от эконом до бизнес-класса), а также коммерческие и социальные объекты. Одно из главных направлений деятельности Выбора - комплексное освоение территорий и возведение крупномасштабных жилых кварталов и микрорайонов. Другая особенность компании - использование инновационной технологии строительства зданий из объемных блоков (которые для компании изготавливает собственный завод объемно-блочного домостроения Выбор-ОБД ). В родном городе компания Выбор построила жилые комплексы Эльбрус , Цветной бульвар , Ultra, Ботанический сад , Атлант , жилые дома на улицах Шишкова, Березовая роща,

Читать полностью
    Позвонить Написать
    6 280 533 Р77 180 $ или 66 980
    Агент
    +7 (958) 485-07-19
    Начать чат с агентом
    Похожие предложения
    3-к кв. Воронежская область, Новоусманский район, пос. Отрадное ул. ... - Фото 1
    3-к кв. Воронежская область, Новоусманский район, пос. Отрадное ул. ... - Фото 2
    3-комнатная квартира, общая площадь 76м²

    Продаётся 3-комнатная квартира в строящемся доме (Позиция 61), срок сдачи: IV-кв. 2025, общей площадью 76.1 кв.м., на 7 этаже. Расположение, транспортная доступность Жилой комплекс Новое Отрадное - это микрорайон, в состав которого входят сорок восемь...
    • 76 м²
    • 3-ком
    • 7/10 эт.
    • блочный
    6 280 533 Р
    Агент
    +7 (958) Показать номер
    Посмотреть контакты
    3-к кв. Воронежская область, Новоусманский район, пос. Отрадное ул. ... - Фото 1
    3-к кв. Воронежская область, Новоусманский район, пос. Отрадное ул. ... - Фото 2
    3-комнатная квартира, общая площадь 76м²

    Продаётся 3-комнатная квартира в строящемся доме (Позиция 61), срок сдачи: IV-кв. 2025, общей площадью 76.1 кв.м., на 8 этаже. Расположение, транспортная доступность Жилой комплекс Новое Отрадное - это микрорайон, в состав которого входят сорок восемь...
    • 76 м²
    • 3-ком
    • 8/10 эт.
    • блочный
    6 280 533 Р
    Агент
    +7 (958) Показать номер
    Посмотреть контакты
    3-к кв. Воронежская область, Новоусманский район, пос. Отрадное ул. ... - Фото 1
    3-к кв. Воронежская область, Новоусманский район, пос. Отрадное ул. ... - Фото 2
    3-комнатная квартира, общая площадь 76м²

    Продаётся 3-комнатная квартира в строящемся доме (Позиция 61), срок сдачи: IV-кв. 2025, общей площадью 76.1 кв.м., на 4 этаже. Расположение, транспортная доступность Жилой комплекс Новое Отрадное - это микрорайон, в состав которого входят сорок восемь...
    • 76 м²
    • 3-ком
    • 4/10 эт.
    • блочный
    6 280 533 Р
    Агент
    +7 (958) Показать номер
    Посмотреть контакты
    3-к кв. Воронежская область, Новоусманский район, пос. Отрадное ул. ... - Фото 1
    3-к кв. Воронежская область, Новоусманский район, пос. Отрадное ул. ... - Фото 2
    3-комнатная квартира, общая площадь 76м²

    Продаётся 3-комнатная квартира в строящемся доме (Позиция 61), срок сдачи: IV-кв. 2025, общей площадью 76.1 кв.м., на 5 этаже. Расположение, транспортная доступность Жилой комплекс Новое Отрадное - это микрорайон, в состав которого входят сорок восемь...
    • 76 м²
    • 3-ком
    • 5/10 эт.
    • блочный
    6 280 533 Р
    Агент
    +7 (958) Показать номер
    Посмотреть контакты
    2-к кв. Воронежская область, с. Новая Усмань, Ольха мкр  (65.47 м) - Фото 1
    2-к кв. Воронежская область, с. Новая Усмань, Ольха мкр  (65.47 м) - Фото 2
    2-комнатная квартира, общая площадь 65м², жилая 22м², кухня 19м²

    Продается 2-комн. квартира с отделкой в ЖК Инстеп. Бабяково на 12 этаже. Общая площадь: 65.47 кв.м., жилая: 22.42 кв.м., площадь просторной кухни-столовой: 19.54 кв.м. Комнаты изолированные, все окна выходят на одну сторону. В квартире две лоджии, один...
    • 65 м²
    • 2-ком
    • 12/12 эт.
    • монолит
    6 219 650 Р
    Агент
    +7 (912) Показать номер
    Посмотреть контакты

    Не нашли подходящего объявления?

    Оставьте заявку, и наши риэлторы подберут квартиру в новостройке в районе Отрадного

    (0)