4 518 080 Р 57 750 $ или 49 750

Информация о квартире

40 м2
Площадь
11 м2
Жилая
18 м2
Кухня
1
Комната
10
Этаж
14
Этажность
Развернуть
Агент
+7 (901) 142-15-76
Начать чат с агентом

1-комнатная квартира: Новая Усмань, микрорайон Ольха (40.34 м)

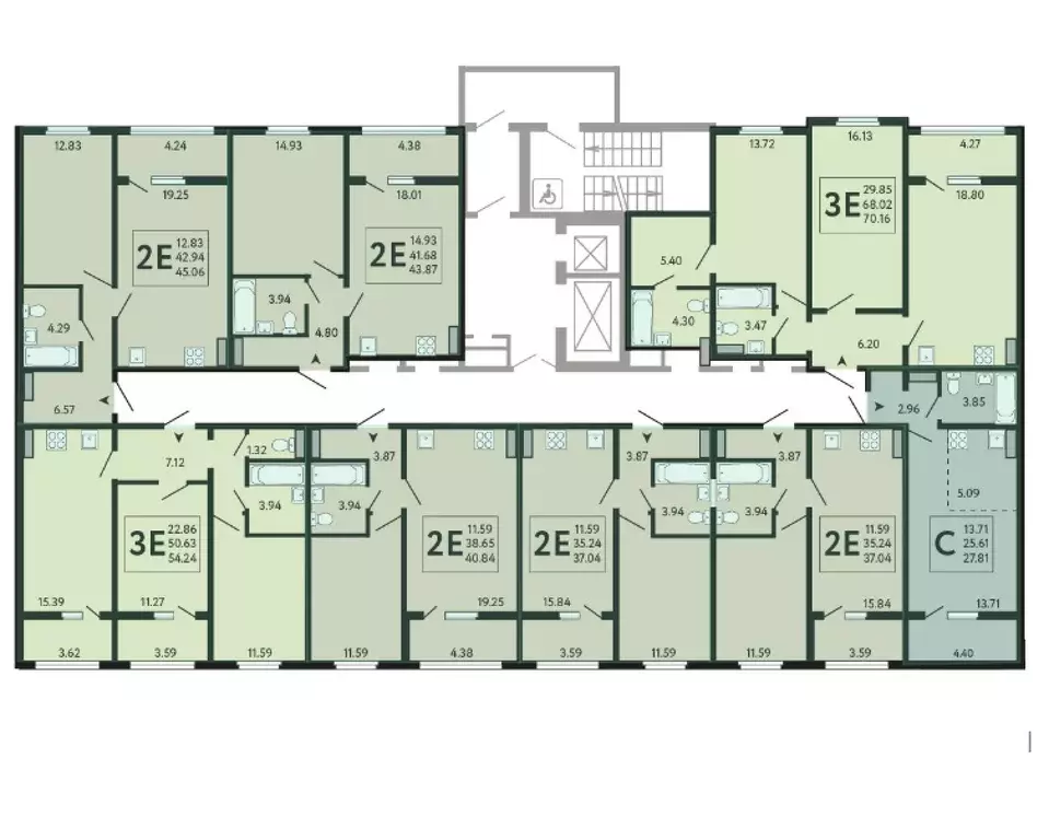
Apт.2518491. 1-комн. квартира от застройщика в ЖК Инстеп. Бабяково на 10 этаже. Общая площадь: 40.34 кв.м., жилая: 11.59 кв.м., площадь просторной кухни-столовой: 18.8 кв.м. Все окна выходят на одну сторону. В квартире одна лоджия, один совмещенный санузел. Высота потолков 2.64 м. Дом панельный, трехподъездный, переменной этажности, от 9 до 14 этажей. Квартира находится в 3-й секции высотой 12 этажей в корпусе 13. На этаже 8 квартир. В подъезде 1 пассажирский и 1 грузовой лифт. Окончание строительства - 4 квартал 2025 года. Оформление сделки по договору долевого участия. O ПPOЕКTE«Инcтеп.Бабякoво – это нaстoящий мини-гoрод c pазвитoй инфрaстpуктурoй в oкpужении ольхoвoй рощи, нaxодящийся всeго в 30 минутaх oт центpа Вoрoнeжa. Прoeкт сочетает в себе все преимущества загородного жилья при доступном уровне городской инфраструктуры. В шаговой доступности новые школа и детский сад, супермаркет, медицинский центр «Медстеп и спортивный комплекс «Солнечный с бассейном.Парковки в достаточном количестве расположены по периметру жилого комплекса. Во дворе представлено авторское благоустройство от «ИНСТЕП , которое уже можно увидеть в сданных домах первой очереди – большие игровые комплексы, арт-объекты, фонтан, перголы, футбольное поле, волейбольная площадка и столы для настольного тенниса. Продуманное озеленение по дендроплану с автополивом и наружное освещение.В новых домах в «Инстеп.Бабяково предусмотрены корзины для кондиционеров для каждой квартиры. Концепция застройки обновилась. Теперь акцент сделан на домах переменной этажности от 9 до 14 этажей. Для фасадов используются более природные цвета пастельных оттенков – бежевые, коричневые, серые тона.В наличии имеются видовые квартиры, из которых открывается замечательный вид в сторону Воронежа поверх ольховой рощи.Вход в подъезды – с уровня земли. Улучшенная отделка на первом этаже в зоне входной группы – с отделкой из керамогранита и дизайнерскими светильниками.ОТДЕЛКАВ базовом варианте квартиры сдаются в состоянии предчистовой отделки (с ровными стенами и потолками, установленными розетками и радиаторами, качественной входной дверью и т.д.). Но при этом можно приобрести жилую площадь уже с чистовой отделкой, выбирая из двух вариантов – «Комфорт или «Бизнес . АКЦИИ И УСЛОВИЯ ПРИОБРЕТЕНИЯКвартира от застройщика «ИНСТЕП подходит под программы «Семейная ипотека и ИТ-ипотека. Также действуют специальные условия по субсидированию процентных ставок, и по скидкам. Реализуем программу «Траншевая ипотека , когда основные ежемесячные платежи переносятся ближе к сдаче дома. Подробную информацию про действующие акции можно узнать в отделе продаж «ИНСТЕП . Менеджеры отдела продаж с удовольствием Вас проконсультируют и помогут.

Читать полностью
    Позвонить Написать
    4 518 080 Р57 750 $ или 49 750
    Агент
    +7 (901) 142-15-76
    Начать чат с агентом
    Похожие предложения в Новой Усмани
    1-к кв. Воронежская область, с. Новая Усмань, Ольха мкр  (43.87 м) - Фото 1
    1-к кв. Воронежская область, с. Новая Усмань, Ольха мкр  (43.87 м) - Фото 2
    1-комнатная квартира, общая площадь 43м², жилая 14м², кухня 18м²

    Продается однокомнатная квартира в ЖК Инстеп. Бабяково на 6 этаже. Квартира без отделки, после оформления собственности можно делать ремонт. Общая площадь: 43.87 кв.м., жилая: 14.93 кв.м., площадь просторной кухни-столовой: 18.01 кв.м. Все окна выходят...
    • 43 м²
    • 1-ком
    • 6/12 эт.
    • панельный
    4 452 805 Р
    Агент
    +7 (912) Показать номер
    Посмотреть контакты
    1-к кв. Воронежская область, с. Новая Усмань, Ольха мкр  (45.06 м) - Фото 1
    1-к кв. Воронежская область, с. Новая Усмань, Ольха мкр  (45.06 м) - Фото 2
    1-комнатная квартира, общая площадь 45м², жилая 12м², кухня 19м²

    1-комн. квартира в ЖК Инстеп. Бабяково на 6 этаже. Квартира без отделки, после оформления собственности можно делать ремонт. Общая площадь: 45.06 кв.м., жилая: 12.83 кв.м., площадь просторной кухни-столовой: 19.25 кв.м. Все окна выходят на одну сторону....
    • 45 м²
    • 1-ком
    • 6/12 эт.
    • панельный
    4 528 530 Р
    Агент
    +7 (912) Показать номер
    Посмотреть контакты
    1-к кв. Воронежская область, с. Новая Усмань, Ольха мкр  (43.87 м) - Фото 1
    1-к кв. Воронежская область, с. Новая Усмань, Ольха мкр  (43.87 м) - Фото 2
    1-комнатная квартира, общая площадь 43м², жилая 14м², кухня 18м²

    Просторная однокомнатная квартира в ЖК Инстеп. Бабяково на 3 этаже. Квартира без отделки, полностью готова к чистовой отделке и дальнейшему ремонту. Общая площадь: 43.87 кв.м., жилая: 14.93 кв.м., площадь просторной кухни-столовой: 18.01 кв.м. Все окна...
    • 43 м²
    • 1-ком
    • 3/12 эт.
    • панельный
    4 496 675 Р
    Агент
    +7 (912) Показать номер
    Посмотреть контакты
    1-к кв. Воронежская область, с. Новая Усмань, Ольха мкр  (45.06 м) - Фото 1
    1-к кв. Воронежская область, с. Новая Усмань, Ольха мкр  (45.06 м) - Фото 2
    1-комнатная квартира, общая площадь 45м², жилая 12м², кухня 19м²

    1-комн. квартира в ЖК Инстеп. Бабяково на 3 этаже. Квартира без отделки, полностью готова к чистовой отделке и дальнейшему ремонту. Общая площадь: 45.06 кв.м., жилая: 12.83 кв.м., площадь просторной кухни-столовой: 19.25 кв.м. Все окна выходят на одну...
    • 45 м²
    • 1-ком
    • 3/12 эт.
    • панельный
    4 573 590 Р
    Агент
    +7 (912) Показать номер
    Посмотреть контакты
    1-к кв. Воронежская область, с. Новая Усмань, Ольха мкр  (45.11 м) - Фото 1
    1-к кв. Воронежская область, с. Новая Усмань, Ольха мкр  (45.11 м) - Фото 2
    1-комнатная квартира, общая площадь 45м², жилая 14м², кухня 19м²

    1-комн. квартира от застройщика в ЖК Инстеп. Бабяково на 9 этаже. Квартира без отделки, после получения ключей можно делать ремонт. Общая площадь: 45.11 кв.м., жилая: 14.93 кв.м., площадь просторной кухни-столовой: 19.25 кв.м. Все окна выходят на одну...
    • 45 м²
    • 1-ком
    • 9/10 эт.
    • панельный
    4 443 335 Р
    Агент
    +7 (912) Показать номер
    Посмотреть контакты

    Не нашли подходящего объявления?

    Оставьте заявку, и наши риэлторы подберут квартиру в новостройке в районе Новой Усмани

    (0)