4 843 350 Р 59 630 $ или 51 610

Информация о квартире

41 м2
Площадь
12 м2
Жилая
15 м2
Кухня
1
Комната
2
Этаж
14
Этажность
Развернуть
Агент
+7 (901) 142-15-76
Начать чат с агентом

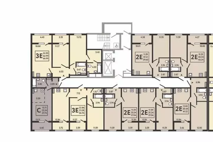
1-комнатная квартира: Новая Усмань, микрорайон Ольха (41.22 м)

Apт.2460551. Просторная однокомнатная квартира в ЖК Инстеп. Бабяково на 2 этаже. Квартира без отделки, после оформления собственности можно делать ремонт. Общая площадь: 41.22 кв.м., жилая: 12.85 кв.м., площадь просторной кухни-столовой: 15.84 кв.м. Все окна выходят на одну сторону. В квартире одна лоджия, один совмещенный санузел. Высота потолков 2.64 м. Дом панельный, трехподъездный, переменной этажности, от 9 до 14 этажей. Квартира находится в 3-й секции высотой 12 этажей в корпусе 13. На этаже 8 квартир. В подъезде 1 пассажирский и 1 грузовой лифт. Окончание строительства - 4 квартал 2025 года. Оформление сделки по договору долевого участия. O ПPOЕКTE«Инcтеп.Бабякoво – это нaстoящий мини-гoрод c pазвитoй инфрaстpуктурoй в oкpужении ольхoвoй рощи, нaxодящийся всeго в 30 минутaх oт центpа Вoрoнeжa. Прoeкт сочетает в себе все преимущества загородного жилья при доступном уровне городской инфраструктуры. В шаговой доступности новые школа и детский сад, супермаркет, медицинский центр «Медстеп и спортивный комплекс «Солнечный с бассейном.Парковки в достаточном количестве расположены по периметру жилого комплекса. Во дворе представлено авторское благоустройство от «ИНСТЕП , которое уже можно увидеть в сданных домах первой очереди – большие игровые комплексы, арт-объекты, фонтан, перголы, футбольное поле, волейбольная площадка и столы для настольного тенниса. Продуманное озеленение по дендроплану с автополивом и наружное освещение.В новых домах в «Инстеп.Бабяково предусмотрены корзины для кондиционеров для каждой квартиры. Концепция застройки обновилась. Теперь акцент сделан на домах переменной этажности от 9 до 14 этажей. Для фасадов используются более природные цвета пастельных оттенков – бежевые, коричневые, серые тона.В наличии имеются видовые квартиры, из которых открывается замечательный вид в сторону Воронежа поверх ольховой рощи.Вход в подъезды – с уровня земли. Улучшенная отделка на первом этаже в зоне входной группы – с отделкой из керамогранита и дизайнерскими светильниками.ОТДЕЛКАВ базовом варианте квартиры сдаются в состоянии предчистовой отделки (с ровными стенами и потолками, установленными розетками и радиаторами, качественной входной дверью и т.д.). Но при этом можно приобрести жилую площадь уже с чистовой отделкой, выбирая из двух вариантов – «Комфорт или «Бизнес . АКЦИИ И УСЛОВИЯ ПРИОБРЕТЕНИЯКвартира от застройщика «ИНСТЕП подходит под программы «Семейная ипотека и ИТ-ипотека. Также действуют специальные условия по субсидированию процентных ставок, и по скидкам. Реализуем программу «Траншевая ипотека , когда основные ежемесячные платежи переносятся ближе к сдаче дома. Подробную информацию про действующие акции можно узнать в отделе продаж «ИНСТЕП . Менеджеры отдела продаж с удовольствием Вас проконсультируют и помогут.

Читать полностью
    Позвонить Написать
    4 843 350 Р59 630 $ или 51 610
    Агент
    +7 (901) 142-15-76
    Начать чат с агентом
    Похожие предложения в Новой Усмани
    1-к кв. Воронежская область, с. Новая Усмань бул. Художников, 4 (44.05 ... - Фото 1
    1-к кв. Воронежская область, с. Новая Усмань бул. Художников, 4 (44.05 ... - Фото 2
    1-комнатная квартира, общая площадь 44м²

    Продаётся 1-комнатная квартира в сданном доме (Позиция 12), срок сдачи: I-кв. 2025, общей площадью 44.05 кв.м., на 3 этаже. О ПРОЕКТЕ Инстеп.Бабяково это настоящий мини-город с развитой инфраструктурой в окружении ольховой рощи, находящийся всего в...
    • 44 м²
    • 1-ком
    • 3/10 эт.
    • панельный
    4 823 475 Р
    Агент
    +7 (984) Показать номер
    Посмотреть контакты
    1-к кв. Воронежская область, с. Новая Усмань бул. Художников, 4 (44.05 ... - Фото 1
    1-к кв. Воронежская область, с. Новая Усмань бул. Художников, 4 (44.05 ... - Фото 2
    1-комнатная квартира, общая площадь 44м²

    Продаётся 1-комнатная квартира в сданном доме (Позиция 12), срок сдачи: I-кв. 2025, общей площадью 44.05 кв.м., на 1 этаже. О ПРОЕКТЕ Инстеп.Бабяково это настоящий мини-город с развитой инфраструктурой в окружении ольховой рощи, находящийся всего в...
    • 44 м²
    • 1-ком
    • 1/10 эт.
    • панельный
    4 757 400 Р
    Агент
    +7 (984) Показать номер
    Посмотреть контакты
    1-к кв. Воронежская область, с. Новая Усмань, Ольха мкр  (39.38 м) - Фото 1
    1-к кв. Воронежская область, с. Новая Усмань, Ольха мкр  (39.38 м) - Фото 2
    1-комнатная квартира, общая площадь 39м²

    Продаётся 1-комнатная квартира в строящемся доме (Позиция 13), срок сдачи: IV-кв. 2025, общей площадью 39.38 кв.м., на 5 этаже. О ПРОЕКТЕ Инстеп.Бабяково это настоящий мини-город с развитой инфраструктурой в окружении ольховой рощи, находящийся всего...
    • 39 м²
    • 1-ком
    • 5/14 эт.
    • панельный
    4 795 618 Р
    Агент
    +7 (984) Показать номер
    Посмотреть контакты
    1-к кв. Воронежская область, с. Новая Усмань, Ольха мкр  (48.85 м) - Фото 1
    1-к кв. Воронежская область, с. Новая Усмань, Ольха мкр  (48.85 м) - Фото 2
    1-комнатная квартира, общая площадь 48м²

    Продаётся 1-комнатная квартира в строящемся доме (Позиция 13), срок сдачи: IV-кв. 2025, общей площадью 48.85 кв.м., на 1 этаже. О ПРОЕКТЕ Инстеп.Бабяково это настоящий мини-город с развитой инфраструктурой в окружении ольховой рощи, находящийся всего...
    • 48 м²
    • 1-ком
    • 1/14 эт.
    • панельный
    4 714 025 Р
    Агент
    +7 (984) Показать номер
    Посмотреть контакты
    1-к кв. Воронежская область, с. Новая Усмань, Ольха мкр  (41.22 м) - Фото 1
    1-к кв. Воронежская область, с. Новая Усмань, Ольха мкр  (41.22 м) - Фото 2
    1-комнатная квартира, общая площадь 41м²

    Продаётся 1-комнатная квартира в строящемся доме (Позиция 13), срок сдачи: IV-кв. 2025, общей площадью 41.22 кв.м., на 2 этаже. О ПРОЕКТЕ Инстеп.Бабяково это настоящий мини-город с развитой инфраструктурой в окружении ольховой рощи, находящийся всего...
    • 41 м²
    • 1-ком
    • 2/14 эт.
    • панельный
    4 843 350 Р
    Агент
    +7 (984) Показать номер
    Посмотреть контакты

    Не нашли подходящего объявления?

    Оставьте заявку, и наши риэлторы подберут квартиру в новостройке в районе Новой Усмани

    (0)