4 336 200 Р 53 380 $ или 46 210

Информация о квартире

39 м2
Площадь
1
Комната
6
Этаж
14
Этажность

Дополнительная информация

Тип дома
панельный
Развернуть
Агент
+7 (984) 705-11-94
Начать чат с агентом

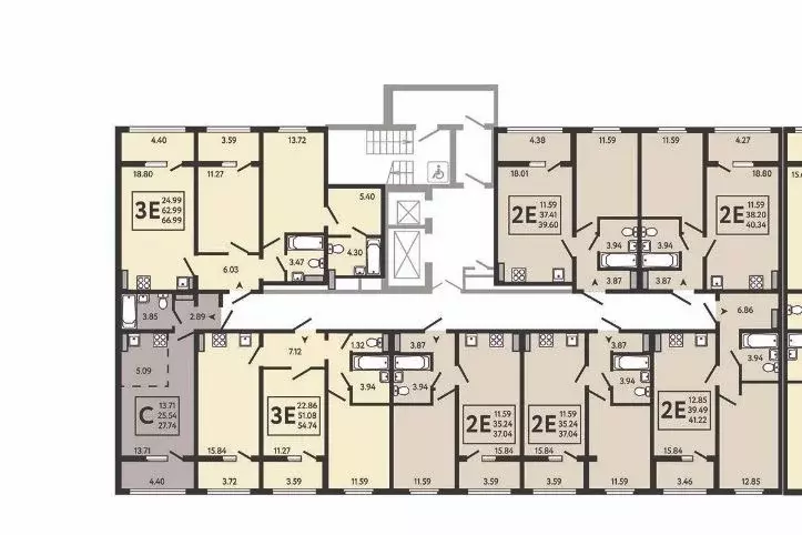
1-к кв. Воронежская область, с. Новая Усмань, Ольха мкр (39.6 м)

Продаётся 1-комнатная квартира в строящемся доме (Позиция 13), срок сдачи: IV-кв. 2025, общей площадью 39.6 кв.м., на 6 этаже. О ПРОЕКТЕ Инстеп.Бабяково это настоящий мини-город с развитой инфраструктурой в окружении ольховой рощи, находящийся всего в 30 минутах от центра Воронежа. Проект сочетает в себе все преимущества загородного жилья при доступном уровне городской инфраструктуры. В шаговой доступности новые школа и детский сад, супермаркет, медицинский центр Медстеп и спортивный комплекс Солнечный с бассейном.Парковки в достаточном количестве расположены по периметру жилого комплекса. Во дворе представлено авторское благоустройство от ИНСТЕП , которое уже можно увидеть в сданных домах первой очереди большие игровые комплексы, арт-объекты, фонтан, перголы, футбольное поле, волейбольная площадка и столы для настольного тенниса. Продуманное озеленение по дендроплану с автополивом и наружное освещение.В новых домах в Инстеп.Бабяково предусмотрены корзины для кондиционеров для каждой квартиры. Концепция застройки обновилась. Теперь акцент сделан на домах переменной этажности от 9 до 14 этажей. Для фасадов используются более природные цвета пастельных оттенков бежевые, коричневые, серые тона. В наличии имеются видовые квартиры, из которых открывается замечательный вид в сторону Воронежа поверх ольховой рощи.Вход в подъезды с уровня земли. Улучшенная отделка на первом этаже в зоне входной группы с отделкой из керамогранита и дизайнерскими светильниками.ОТДЕЛКАВ базовом варианте квартиры сдаются в состоянии предчистовой отделки (с ровными стенами и потолками, установленными розетками и радиаторами, качественной входной дверью и т.д.). Но при этом можно приобрести жилую площадь уже с чистовой отделкой, выбирая из двух вариантов Комфорт или Бизнес . В санузлах квартир будет установлена вся необходимая сантехника, а стены и пол отделаны керамогранитом различных цветовых оттенков, на полу в комнатах уложен ламинат, стены оклеены качественными светлыми обоями под покраску, поставлены межкомнатные двери.ПЛАНИРОВКИВ новостройке Инстеп.Бабяково представлены уникальные планировки. Большинство из них евроформата, с большой кухней-гостиной. Но есть и квартиры с мастер-спальней, с двумя лоджиями, с большим санузлом, или с окнами на две стороны.АКЦИИ И УСЛОВИЯ ПРИОБРЕТЕНИЯКвартиры от застройщика ИНСТЕП подходят под программы Семейная ипотека и ИТ-ипотека. Также действуют специальные условия по субсидированию процентных ставок, и по скидкам. Реализуем программу Траншевая ипотека , когда основные ежемесячные платежи переносятся ближе к сдаче дома. Подробную информацию про квартиры и про действующие акции можно узнать в отделе продаж ИНСТЕП . Менеджеры отдела продаж с удовольствием Вас проконсультируют и помогут.

Читать полностью
    Позвонить Написать
    4 336 200 Р53 380 $ или 46 210
    Агент
    +7 (984) 705-11-94
    Начать чат с агентом
    Похожие предложения в Новой Усмани
    1-комнатная квартира: Новая Усмань, микрорайон Ольха (43.8 м) - Фото 1
    1-комнатная квартира: Новая Усмань, микрорайон Ольха (43.8 м) - Фото 2
    1-комнатная квартира, общая площадь 43м², жилая 14м², кухня 18м²

    Apт.2501539. Просторная однокомнатная квартира с отделкой в ЖК Инстеп. Бабяково на 9 этаже. Общая площадь: 43.8 кв.м., жилая: 14.93 кв.м., площадь просторной кухни-столовой: 18.01 кв.м. Все окна выходят на одну сторону. В квартире одна лоджия, один...
    • 43 м²
    • 1-ком
    • 9/14 эт.
    4 380 000 Р
    Агент
    +7 (901) Показать номер
    Посмотреть контакты
    1-комнатная квартира: Новая Усмань, микрорайон Ольха (42.45 м) - Фото 1
    1-комнатная квартира: Новая Усмань, микрорайон Ольха (42.45 м) - Фото 2
    1-комнатная квартира, общая площадь 42м², жилая 15м², кухня 16м²

    Apт.2480343. Продается однокомнатная квартира от застройщика в ЖК Инстеп. Бабяково на 9 этаже. Квартира без отделки, после выдачи ключей можно делать ремонт. Общая площадь: 42.45 кв.м., жилая: 15.57 кв.м., площадь просторной кухни-столовой: 16.13 кв.м....
    • 42 м²
    • 1-ком
    • 9/14 эт.
    4 202 550 Р
    Агент
    +7 (901) Показать номер
    Посмотреть контакты
    1-комнатная квартира: Новая Усмань, микрорайон Ольха (39.6 м) - Фото 1
    1-комнатная квартира: Новая Усмань, микрорайон Ольха (39.6 м) - Фото 2
    1-комнатная квартира, общая площадь 39м², жилая 11м², кухня 18м²

    Apт.2479580. Однокомнатная квартира в ЖК Инстеп. Бабяково на 5 этаже. Квартира без отделки, полностью готова к ремонту. Общая площадь: 39.6 кв.м., жилая: 11.59 кв.м., площадь просторной кухни-столовой: 18.01 кв.м. Все окна выходят на одну сторону. В...
    • 39 м²
    • 1-ком
    • 5/14 эт.
    4 336 200 Р
    Агент
    +7 (901) Показать номер
    Посмотреть контакты
    1-комнатная квартира: Новая Усмань, микрорайон Ольха (42.45 м) - Фото 1
    1-комнатная квартира: Новая Усмань, микрорайон Ольха (42.45 м) - Фото 2
    1-комнатная квартира, общая площадь 42м², жилая 15м², кухня 16м²

    Apт.2480322. Продается однокомнатная квартира от застройщика в ЖК Инстеп. Бабяково на 3 этаже. Квартира без отделки, новый владелец может сделать ремонт по своему дизайн-проекту. Общая площадь: 42.45 кв.м., жилая: 15.57 кв.м., площадь просторной кухни-столовой:...
    • 42 м²
    • 1-ком
    • 3/14 эт.
    4 329 900 Р
    Агент
    +7 (901) Показать номер
    Посмотреть контакты
    1-комнатная квартира: Новая Усмань, микрорайон Ольха (39.6 м) - Фото 1
    1-комнатная квартира: Новая Усмань, микрорайон Ольха (39.6 м) - Фото 2
    1-комнатная квартира, общая площадь 39м², жилая 11м², кухня 18м²

    Apт.2460568. Продается однокомнатная квартира в ЖК Инстеп. Бабяково на 8 этаже. Квартира без отделки, новый владелец может сделать ремонт по индивидуальному дизайн-проекту. Общая площадь: 39.6 кв.м., жилая: 11.59 кв.м., площадь просторной кухни-столовой:...
    • 39 м²
    • 1-ком
    • 8/14 эт.
    4 276 800 Р
    Агент
    +7 (901) Показать номер
    Посмотреть контакты

    Не нашли подходящего объявления?

    Оставьте заявку, и наши риэлторы подберут квартиру в новостройке в районе Новой Усмани

    (0)