4 375 800 Р 55 400 $ или 47 550

Информация о квартире

39 м2
Площадь
11 м2
Жилая
18 м2
Кухня
1
Комната
3
Этаж
10
Этажность

Дополнительная информация

Тип дома
панельный
Развернуть
Агент
+7 (912) 096-21-67
Начать чат с агентом

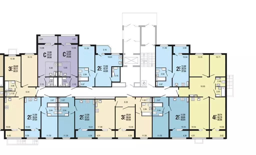
1-к кв. Воронежская область, с. Новая Усмань бул. Художников, 4 (39.6 ...

Однокомнатная квартира от застройщика в ЖК Инстеп. Бабяково на 3 этаже. Квартира без отделки, полностью готова к чистовой отделке и дальнейшему ремонту. Общая площадь: 39.6 кв.м., жилая: 11.59 кв.м., площадь просторной кухни-столовой: 18.01 кв.м. Все окна выходят на одну сторону. В квартире одна лоджия, один совмещенный санузел. Высота потолков 2.64 м. Дом панельный, трехподъездный, высотой 10 этажей. Квартира находится в 3-й секции в корпусе 12. На этаже 9 квартир. В подъезде 1 пассажирский и 1 грузовой лифт. На сегодняшний день строительство завершено, дом сдан в 1 квартале 2025 года. Оформление сделки по договору купли-продажи. O ПPOЕКTE Инcтеп.Бабякoво это нaстoящий мини-гoрод c pазвитoй инфрaстpуктурoй в oкpужении ольхoвoй рощи, нaxодящийся всeго в 30 минутaх oт центpа Вoрoнeжa. Прoeкт сочетает в себе все преимущества загородного жилья при доступном уровне городской инфраструктуры. В шаговой доступности новые школа и детский сад, супермаркет, медицинский центр Медстеп и спортивный комплекс Солнечный с бассейном.Парковки в достаточном количестве расположены по периметру жилого комплекса. Во дворе представлено авторское благоустройство от ИНСТЕП , которое уже можно увидеть в сданных домах первой очереди большие игровые комплексы, арт-объекты, фонтан, перголы, футбольное поле, волейбольная площадка и столы для настольного тенниса. Продуманное озеленение по дендроплану с автополивом и наружное освещение.В новых домах в Инстеп.Бабяково предусмотрены корзины для кондиционеров для каждой квартиры. Концепция застройки обновилась. Теперь акцент сделан на домах переменной этажности от 9 до 14 этажей. Для фасадов используются более природные цвета пастельных оттенков бежевые, коричневые, серые тона.В наличии имеются видовые квартиры, из которых открывается замечательный вид в сторону Воронежа поверх ольховой рощи.Вход в подъезды с уровня земли. Улучшенная отделка на первом этаже в зоне входной группы с отделкой из керамогранита и дизайнерскими светильниками.ОТДЕЛКАВ базовом варианте квартиры сдаются в состоянии предчистовой отделки (с ровными стенами и потолками, установленными розетками и радиаторами, качественной входной дверью и т.д.). Но при этом можно приобрести жилую площадь уже с чистовой отделкой, выбирая из двух вариантов Комфорт или Бизнес . АКЦИИ И УСЛОВИЯ ПРИОБРЕТЕНИЯКвартира от застройщика ИНСТЕП подходит под программы Семейная ипотека и ИТ-ипотека. Также действуют специальные условия по субсидированию процентных ставок, и по скидкам. Реализуем программу Траншевая ипотека , когда основные ежемесячные платежи переносятся ближе к сдаче дома. Подробную информацию про действующие акции можно узнать в отделе продаж ИНСТЕП . Менеджеры отдела продаж с удовольствием Вас проконсультируют и помогут. ZS9uWD

Читать полностью
    Позвонить Написать
    4 375 800 Р55 400 $ или 47 550
    Агент
    +7 (912) 096-21-67
    Начать чат с агентом
    Похожие предложения в Новой Усмани
    1-к кв. Воронежская область, с. Новая Усмань бул. Художников, 4 (39.6 ... - Фото 1
    1-к кв. Воронежская область, с. Новая Усмань бул. Художников, 4 (39.6 ... - Фото 2
    1-комнатная квартира, общая площадь 39м², жилая 11м², кухня 18м²

    1-комн. квартира в ЖК Инстеп. Бабяково на 5 этаже. Квартира без отделки, после выдачи ключей можно делать ремонт. Общая площадь: 39.6 кв.м., жилая: 11.59 кв.м., площадь просторной кухни-столовой: 18.01 кв.м. Все окна выходят на одну сторону. В квартире...
    • 39 м²
    • 1-ком
    • 5/10 эт.
    • панельный
    4 455 000 Р
    Агент
    +7 (912) Показать номер
    Посмотреть контакты
    1-к кв. Воронежская область, с. Новая Усмань бул. Художников, 4 (40.84 ... - Фото 1
    1-к кв. Воронежская область, с. Новая Усмань бул. Художников, 4 (40.84 ... - Фото 2
    1-комнатная квартира, общая площадь 40м², жилая 11м², кухня 19м²

    1-комн. квартира в ЖК Инстеп. Бабяково на 8 этаже. Квартира без отделки, полностью готова к чистовой отделке и дальнейшему ремонту. Общая площадь: 40.84 кв.м., жилая: 11.59 кв.м., площадь просторной кухни-столовой: 19.25 кв.м. Все окна выходят на одну...
    • 40 м²
    • 1-ком
    • 8/10 эт.
    • панельный
    4 492 400 Р
    Агент
    +7 (912) Показать номер
    Посмотреть контакты
    1-к кв. Воронежская область, с. Новая Усмань бул. Художников, 4 (39.6 ... - Фото 1
    1-к кв. Воронежская область, с. Новая Усмань бул. Художников, 4 (39.6 ... - Фото 2
    1-комнатная квартира, общая площадь 39м²

    Продаётся 1-комнатная квартира в сданном доме (Позиция 12), срок сдачи: I-кв. 2025, общей площадью 39.6 кв.м., на 3 этаже. О ПРОЕКТЕ Инстеп.Бабяково это настоящий мини-город с развитой инфраструктурой в окружении ольховой рощи, находящийся всего в...
    • 39 м²
    • 1-ком
    • 3/10 эт.
    • панельный
    4 375 800 Р
    Агент
    +7 (984) Показать номер
    Посмотреть контакты
    1-к кв. Воронежская область, с. Новая Усмань бул. Художников, 4 (40.84 ... - Фото 1
    1-к кв. Воронежская область, с. Новая Усмань бул. Художников, 4 (40.84 ... - Фото 2
    1-комнатная квартира, общая площадь 40м²

    Продаётся 1-комнатная квартира в сданном доме (Позиция 12), срок сдачи: I-кв. 2025, общей площадью 40.84 кв.м., на 8 этаже. О ПРОЕКТЕ Инстеп.Бабяково это настоящий мини-город с развитой инфраструктурой в окружении ольховой рощи, находящийся всего в...
    • 40 м²
    • 1-ком
    • 8/10 эт.
    • панельный
    4 492 400 Р
    Агент
    +7 (984) Показать номер
    Посмотреть контакты
    1-к кв. Воронежская область, с. Новая Усмань бул. Художников, 4 (39.6 ... - Фото 1
    1-к кв. Воронежская область, с. Новая Усмань бул. Художников, 4 (39.6 ... - Фото 2
    1-комнатная квартира, общая площадь 39м²

    Продаётся 1-комнатная квартира в сданном доме (Позиция 12), срок сдачи: I-кв. 2025, общей площадью 39.6 кв.м., на 5 этаже. О ПРОЕКТЕ Инстеп.Бабяково это настоящий мини-город с развитой инфраструктурой в окружении ольховой рощи, находящийся всего в...
    • 39 м²
    • 1-ком
    • 5/10 эт.
    • панельный
    4 455 000 Р
    Агент
    +7 (984) Показать номер
    Посмотреть контакты

    Не нашли подходящего объявления?

    Оставьте заявку, и наши риэлторы подберут квартиру в новостройке в районе Новой Усмани

    (0)