3 453 630 Р 43 190 $ или 37 260

Информация о квартире

27 м2
Площадь
студия
Комнат
2
Этаж
14
Этажность

Дополнительная информация

Тип дома
панельный
Развернуть
Агент
+7 (984) 705-11-94
Начать чат с агентом

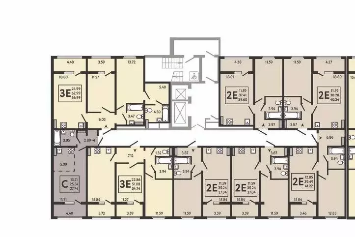
Студия Воронежская область, с. Новая Усмань, Ольха мкр (27.74 м)

Продаётся студия в строящемся доме (Позиция 13), срок сдачи: IV-кв. 2025, общей площадью 27.74 кв.м., на 2 этаже. О ПРОЕКТЕ Инстеп.Бабяково это настоящий мини-город с развитой инфраструктурой в окружении ольховой рощи, находящийся всего в 30 минутах от центра Воронежа. Проект сочетает в себе все преимущества загородного жилья при доступном уровне городской инфраструктуры. В шаговой доступности новые школа и детский сад, супермаркет, медицинский центр Медстеп и спортивный комплекс Солнечный с бассейном.Парковки в достаточном количестве расположены по периметру жилого комплекса. Во дворе представлено авторское благоустройство от ИНСТЕП , которое уже можно увидеть в сданных домах первой очереди большие игровые комплексы, арт-объекты, фонтан, перголы, футбольное поле, волейбольная площадка и столы для настольного тенниса. Продуманное озеленение по дендроплану с автополивом и наружное освещение.В новых домах в Инстеп.Бабяково предусмотрены корзины для кондиционеров для каждой квартиры. Концепция застройки обновилась. Теперь акцент сделан на домах переменной этажности от 9 до 14 этажей. Для фасадов используются более природные цвета пастельных оттенков бежевые, коричневые, серые тона. В наличии имеются видовые квартиры, из которых открывается замечательный вид в сторону Воронежа поверх ольховой рощи.Вход в подъезды с уровня земли. Улучшенная отделка на первом этаже в зоне входной группы с отделкой из керамогранита и дизайнерскими светильниками.ОТДЕЛКАВ базовом варианте квартиры сдаются в состоянии предчистовой отделки (с ровными стенами и потолками, установленными розетками и радиаторами, качественной входной дверью и т.д.). Но при этом можно приобрести жилую площадь уже с чистовой отделкой, выбирая из двух вариантов Комфорт или Бизнес . В санузлах квартир будет установлена вся необходимая сантехника, а стены и пол отделаны керамогранитом различных цветовых оттенков, на полу в комнатах уложен ламинат, стены оклеены качественными светлыми обоями под покраску, поставлены межкомнатные двери.ПЛАНИРОВКИВ новостройке Инстеп.Бабяково представлены уникальные планировки. Большинство из них евроформата, с большой кухней-гостиной. Но есть и квартиры с мастер-спальней, с двумя лоджиями, с большим санузлом, или с окнами на две стороны.АКЦИИ И УСЛОВИЯ ПРИОБРЕТЕНИЯКвартиры от застройщика ИНСТЕП подходят под программы Семейная ипотека и ИТ-ипотека. Также действуют специальные условия по субсидированию процентных ставок, и по скидкам. Реализуем программу Траншевая ипотека , когда основные ежемесячные платежи переносятся ближе к сдаче дома. Подробную информацию про квартиры и про действующие акции можно узнать в отделе продаж ИНСТЕП . Менеджеры отдела продаж с удовольствием Вас проконсультируют и помогут.

Читать полностью
    Позвонить Написать
    3 453 630 Р43 190 $ или 37 260
    Агент
    +7 (984) 705-11-94
    Начать чат с агентом
    Похожие предложения в Новой Усмани
    Квартира-студия: Новая Усмань, микрорайон Ольха (26.68 м) - Фото 1
    Квартира-студия: Новая Усмань, микрорайон Ольха (26.68 м) - Фото 2
    студия, общая площадь 26м², жилая 18м²

    Apт.2462567. 1-комн. квартира-студия от застройщика в ЖК Инстеп. Бабяково на 3 этаже. Квартира без отделки, после оформления собственности можно делать ремонт. Общая площадь: 26.68 кв.м., площадь гостиной 18.96 кв.м., из которых 5 кв.м. выделено под...
    • 26 м²
    • студия-ком
    • 3/14 эт.
    3 428 380 Р
    Агент
    +7 (901) Показать номер
    Посмотреть контакты
    Квартира-студия: Новая Усмань, микрорайон Ольха (27.74 м) - Фото 1
    Квартира-студия: Новая Усмань, микрорайон Ольха (27.74 м) - Фото 2
    студия, общая площадь 27м², жилая 18м²

    Apт.2462581. Однокомнатная квартира-студия в ЖК Инстеп. Бабяково на 2 этаже. Квартира без отделки, после оформления собственности можно делать ремонт. Общая площадь: 27.74 кв.м., площадь гостиной 18.8 кв.м., из которых 5.09 кв.м. выделено под кухонную...
    • 27 м²
    • студия-ком
    • 2/14 эт.
    3 453 630 Р
    Агент
    +7 (901) Показать номер
    Посмотреть контакты
    Студия Воронежская область, с. Новая Усмань, Ольха мкр  (27.74 м) - Фото 1
    Студия Воронежская область, с. Новая Усмань, Ольха мкр  (27.74 м) - Фото 2
    студия, общая площадь 27м², жилая 13м², кухня 5м²

    Продается однокомнатная квартира-студия в ЖК Инстеп. Бабяково на 12 этаже. Квартира без отделки, полностью готова к ремонту. Общая площадь: 27.74 кв.м., площадь гостиной 18.8 кв.м., из которых 5.09 кв.м. выделено под кухонную зону. Все окна выходят...
    • 27 м²
    • студия-ком
    • 12/12 эт.
    • панельный
    3 573 634 Р
    Агент
    +7 (912) Показать номер
    Посмотреть контакты
    Студия Воронежская область, с. Новая Усмань, Ольха мкр  (26.68 м) - Фото 1
    Студия Воронежская область, с. Новая Усмань, Ольха мкр  (26.68 м) - Фото 2
    студия, общая площадь 26м², жилая 14м², кухня 5м²

    Просторная однокомнатная квартира-студия в ЖК Инстеп. Бабяково на 9 этаже. Квартира без отделки, после получения ключей можно делать ремонт. Общая площадь: 26.68 кв.м., площадь гостиной 18.96 кв.м., из которых 5 кв.м. выделено под кухонную зону. Все...
    • 26 м²
    • студия-ком
    • 9/14 эт.
    • панельный
    3 481 687 Р
    Агент
    +7 (912) Показать номер
    Посмотреть контакты
    Студия Воронежская область, с. Новая Усмань, Ольха мкр  (26.68 м) - Фото 1
    Студия Воронежская область, с. Новая Усмань, Ольха мкр  (26.68 м) - Фото 2
    студия, общая площадь 26м², жилая 14м², кухня 5м²

    Однокомнатная квартира-студия от застройщика в ЖК Инстеп. Бабяково на 9 этаже. Квартира без отделки, новый владелец может сделать ремонт по индивидуальному проекту. Общая площадь: 26.68 кв.м., площадь гостиной 18.96 кв.м., из которых 5 кв.м. выделено...
    • 26 м²
    • студия-ком
    • 9/14 эт.
    • панельный
    3 481 687 Р
    Агент
    +7 (912) Показать номер
    Посмотреть контакты

    Не нашли подходящего объявления?

    Оставьте заявку, и наши риэлторы подберут квартиру в новостройке в районе Новой Усмани

    (0)