8 500 000 Р 104 500 $ или 90 240

Информация о коттедже

119 м2
Площадь
2
Этажность
5 cоток
Участок

Дополнительная информация

Дом продаётся вместе с участком
есть
Развернуть
Агент
+7 (910) 749-41-25
Начать чат с агентом

Дом в Воронежская область, Новоусманский район, с. Бабяково Заливной ...

Вашему вниманию представлен капитальный двухэтажный дом общей площадью 120 кв,метров, с продуманной и функциональной планировкой на участке 5 соток. Расположен в Бабяково недалеко от Воронежа - всего 6 км. В селе есть школа, детский сад, продуктовые магазины (Пятерочка, Магнит, Победа). До трассы 2 минуты на машине. Коммуникации: вода-скважина, газ, электричество, канализация септик. Отопление теплый пол и радиаторы. На первом этаже спальня, санузел, кухня гостиная 25кв.м (кухни-гостиной есть выход, можно сделать террасу),гардеробная у входа. На втором этаже расположены 2 спальни 12,3 и 13 кв.м. и одна большая (можно сделать 2 гостиную)-25,6 кв.м., санузел. Дом в предчистовой отделке. Огорожен забором. Стань обладателем качественного и теплого дома По всем интересующим вопросам обращайтесь по телефону. Рассмотрим все варианты оплаты. Звони прямо сейчас Код пользователя: 157274Номер в базе: 7976863

Читать полностью

    Для того, чтобы купить 2-этажный коттедж по адресу: Бабяково, Заливной пер., 33/1, позвоните по телефону +7 (910) 749-41-25. Торопитесь! Объявление №50016417961 о продаже двухэтажного коттеджа опубликовано 09 ноября 2025.

    Позвонить Написать
    8 500 000 Р104 500 $ или 90 240
    Агент
    +7 (910) 749-41-25
    Начать чат с агентом
    Похожие предложения
    Дом в Воронежская область, Новоусманский район, с. Бабяково Зеленая ... - Фото 1
    Дом в Воронежская область, Новоусманский район, с. Бабяково Зеленая ... - Фото 2
    1 этаж, общая площадь 102м², участок 6 соток

    Дом 116 кв.м. Земля 6 соток( 15*40) прямой правильной формы. В доме три просторные комнаты, кухня-гостиная, санузел 8.15 кB. М., хозкомната из которой при желании можно сделать второй санузел, терраса 17 кB. M. ( больше чем планировалась по плану) , есть...
    • 1 эт.
    • 102 м²
    • 6 сот.
    8 500 000 Р
    Агент
    +7 (919) Показать номер
    Посмотреть контакты
    Дом в Бабяково, Совхозная улица, 53 (95.5 м) - Фото 1
    Дом в Бабяково, Совхозная улица, 53 (95.5 м) - Фото 2
    1 этаж, общая площадь 95м², участок 5 соток

    • 1 эт.
    • 95 м²
    • 5 сот.
    8 500 000 Р
    Агент
    +7 (903) Показать номер
    Посмотреть контакты
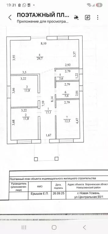
    Дом в Новая Усмань, Центральная улица, 1 (98 м) - Фото 1
    Дом в Новая Усмань, Центральная улица, 1 (98 м) - Фото 2
    1 этаж, общая площадь 98м², участок 7 соток

    Дом под семейную ипотеку с РЕМОНТОМ Продается дом 96 кв.м. на участке 6,74 соток в новом перспективном мкр-не Новой Усмани РАЗДОЛЬЕ Удобная планировка, подойдет для большой семьи.Три изолированные комнаты11,8, 12,5 и 11,8 кв.м.с просторной кухней-гостиной...
    • 1 эт.
    • 98 м²
    • 7 сот.
    8 500 000 Р
    Агент
    +7 (903) Показать номер
    Посмотреть контакты
    Дом в Новая Усмань, Пионерская улица, 2 (78 м) - Фото 1
    Дом в Новая Усмань, Пионерская улица, 2 (78 м) - Фото 2
    1 этаж, общая площадь 78м², участок 22 сотки

    Представляем вашему вниманию просторный и уютный дом, расположенный в селе Новая Усмань по улице Пионерская,. На земельном участке площадью почти 22 сотки расположен жилой дом, а также капитальные хозяйственные постройки, с погребом, местом для содержания...
    • 1 эт.
    • 78 м²
    • 22 сот.
    8 500 000 Р
    Агент
    +7 (960) Показать номер
    Посмотреть контакты
    Коттедж в Воронежская область, с. Новая Усмань ул. Кутузова, 41 (110 ... - Фото 1
    Коттедж в Воронежская область, с. Новая Усмань ул. Кутузова, 41 (110 ... - Фото 2
    1 этаж, общая площадь 110м², участок 7 соток

    Продается отличный коттедж с удобной планировкой и тремя спальнями: 15, 13, и 14 кв.м. Кухня 22 кв.м. с выходом на террасу. ( терраса 10.5 кв.м.,на капитальном фундаменте, выведен свет, кирпичные колонны. осталось застеклить). Просторная ванная комната,...
    • 1 эт.
    • 110 м²
    • 7 сот.
    8 500 000 Р
    Агент
    +7 (910) Показать номер
    Посмотреть контакты

    Не нашли подходящего объявления?

    Оставьте заявку, и наши риэлторы подберут купить дом в районе Бабяково

    (0)