2 550 000 Р 30 360 $ или 26 210

Информация о квартире

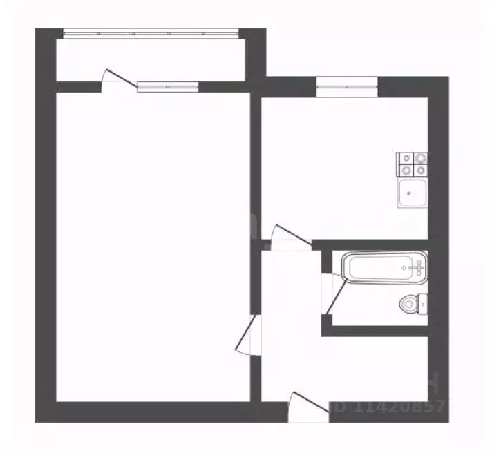
26 м2
Площадь
7 м2
Кухня
1
Комната
3
Этаж
9
Этажность

Дополнительная информация

Тип дома
кирпичный
Развернуть
Агент
+7 (915) 580-42-60
Начать чат с агентом

1-к кв. Воронежская область, Борисоглебск Юго-Восточный мкр, 3 (26.8 ...

Продается светлая однокомнатная квартира площадью 26,8 кв.м. в отличном состоянии. Объект полностью готов к проживанию благодаря качественному современному ремонту. Просторная кухня позволяет комфортно организовать обеденную зону, а застекленный балкон добавляет полезное пространство и может служить местом для отдыха или хранения. Все документы готовы к сделке. В шаговой доступности находятся общеобразовательная школа, детские сады, супермаркеты и аптеки, поликлиника и остановка общественного транспорта.Это предложение представляет собой оптимальный вариант для первого самостоятельного жилья, инвестиции или комфортной жизни без необходимости дополнительных вложений и ремонта. Для получения подробной информации звони Код пользователя: 197217Номер в базе:

Читать полностью

    Для того, чтобы купить однокомнатную квартиру по адресу: Борисоглебск, Юго-Восточный мкр, 3, позвоните по телефону +7 (915) 580-42-60. Торопитесь! Объявление №30094210725 о продаже однокомнатной квартиры опубликовано 2 дня назад.

    Позвонить Написать
    2 550 000 Р30 360 $ или 26 210
    Агент
    +7 (915) 580-42-60
    Начать чат с агентом
    Похожие предложения
    1-к кв. Воронежская область, Борисоглебск Юго-Восточный мкр, 3 (36.1 ... - Фото 1
    1-к кв. Воронежская область, Борисоглебск Юго-Восточный мкр, 3 (36.1 ... - Фото 2
    1-комнатная квартира, общая площадь 36м², жилая 22м², кухня 7м²

    Объект 392. Продаётся 1-комнатная квартира в Юго-Восточном микрорайонеОбщая площадь - 36,1 кв.мЭтаж - 1/9Жилая комната - 22 кв.мСделан косметический ремонт. Заменены все коммуникации.Окна ПВХ.Напольное покрытие - линолеум.Лоджия застекленаВ непосредственной...
    • 36 м²
    • 1-ком
    • 1/9 эт.
    • кирпичный
    2 700 000 Р
    Агент
    +7 (910) Показать номер
    Посмотреть контакты
    1-к кв. Воронежская область, Борисоглебск Юго-Восточный мкр, 3 (27.0 ... - Фото 1
    1-к кв. Воронежская область, Борисоглебск Юго-Восточный мкр, 3 (27.0 ... - Фото 2
    1-комнатная квартира, общая площадь 27м², кухня 9м²

    Однокомнатная квартира площадью 27 кв.м расположена на первом этаже в Юго-Восточном микрорайоне. Просторная кухня 9 кв.м позволяет удобно разместить обеденную зону и современную технику. Планировка функциональная: изолированная комната обеспечивает приватность,...
    • 27 м²
    • 1-ком
    • 1/9 эт.
    • кирпичный
    2 650 000 Р
    Агент
    +7 (930) Показать номер
    Посмотреть контакты
    1-комнатная квартира: Борисоглебск, улица Чкалова, 4 (32.2 м) - Фото 1
    1-комнатная квартира: Борисоглебск, улица Чкалова, 4 (32.2 м) - Фото 2
    1-комнатная квартира, общая площадь 32м², жилая 19м², кухня 6м²

    Арт.. Продается 1 комнтаная квартира в районе автовокзале 32,2 кв на 4 этаже .Ремонт:-косметический-в комнате и на кухне натяжной потолок-лоджия застеклена-окна ПВХ-нова входная дверьПланировка:-совмещенный санузел-скрытая гардеробнаяВода горячая центральная,...
    • 32 м²
    • 1-ком
    • 4/5 эт.
    2 650 000 Р
    Агент
    +7 (960) Показать номер
    Посмотреть контакты
    2-к кв. Воронежская область, Борисоглебск ул. Карла Маркса, 140 (40.9 ... - Фото 1
    2-к кв. Воронежская область, Борисоглебск ул. Карла Маркса, 140 (40.9 ... - Фото 2
    2-комнатная квартира, общая площадь 40м², кухня 7м²

    Продается двухкомнатная квартира в центре города по улице Карла Маркса.Общая площадь квартиры: 40,9 кв.м. Кухня: 7,4 кв.м. Санузел в доме,совмещенный.Окна пластиковые,сделан косметический ремонт.Квартира теплая.Газовое отопление-котел.Есть надворная постройка-место...
    • 40 м²
    • 2-ком
    • 1/1 эт.
    2 700 000 Р
    Агент
    +7 (919) Показать номер
    Посмотреть контакты
    1-к кв. Воронежская область, Борисоглебск Юго-Восточный мкр, 9 (30.4 ... - Фото 1
    1-к кв. Воронежская область, Борисоглебск Юго-Восточный мкр, 9 (30.4 ... - Фото 2
    1-комнатная квартира, общая площадь 30м², кухня 6м²

    Продаётся 1комнатная квартира в ЮгоВосточном микрорайоне — дом 9, 2 этажПродаётся уютная однокомнатная квартира по адресу Россия, Воронежская область, Борисоглебск, ЮгоВосточный микрорайон, 9 . Общая площадь — 30,4 м (жилая — 17,4 м, кухня — 6 м). Квартира...
    • 30 м²
    • 1-ком
    • 2/5 эт.
    • панельный
    2 600 000 Р
    Агент
    +7 (915) Показать номер
    Посмотреть контакты

    Не нашли подходящего объявления?

    Оставьте заявку, и наши риэлторы подберут квартиру в районе Борисоглебска

    (0)