6 600 000 Р 78 570 $ или 67 840

Информация о квартире

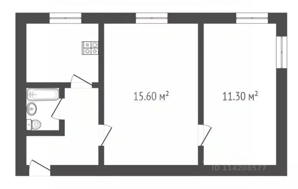
67 м2
Площадь
7 м2
Кухня
3
Комнаты
3
Этаж
5
Этажность
Развернуть
Агент
+7 (910) 024-17-26
Начать чат с агентом

3-к кв. Воронежская область, Борисоглебск ул. Середина, 21А (67.1 м)

Квартира площадью 67 м расположена в историческом центре города по адресу ул. Середина, 21а. Объект находится на третьем, верхнем этаже трехэтажного дома, что обеспечивает отсутствие шума от соседей сверху и хороший уровень инсоляции. Ключевым преимуществом является индивидуальное газовое отопление, позволяющее самостоятельно контролировать температурный режим и расходы на коммунальные услуги. Планировка функциональна и начинается с просторного холла, где удобно организовать систему хранения для верхней одежды и сезонных вещей. Изолированные спальни создают условия для уединенного отдыха. Объединенное пространство кухни площадью 7,5 м и гостиной формирует комфортную зону для семейных обедов, приема гостей и повседневного времяпрепровождения. Дополнительным достоинством служат две застекленные лоджии, которые можно использовать как зоны для отдыха или практичного хранения. Жилье полностью готово к въезду. Микрорайон отличается развитой инфраструктурой: в шаговой доступности находятся магазины, кафе, банки, поликлиника и детские сады. Отличная транспортная доступность обеспечивает быструю связь с любым районом города. Это предложение представляет собой сбалансированный вариант для семьи, ценящей центральное расположение, автономность и практичную планировку. Код пользователя: 147867Номер в базе:

Читать полностью

    Для того, чтобы купить трехкомнатную квартиру по адресу: Борисоглебск, ул. Середина, 21А, позвоните по телефону +7 (910) 024-17-26. Торопитесь! Объявление №30092406904 о продаже трехкомнатной квартиры опубликовано 10 марта 2026.

    Позвонить Написать
    6 600 000 Р78 570 $ или 67 840
    Агент
    +7 (910) 024-17-26
    Начать чат с агентом
    Похожие предложения
    2-к кв. Воронежская область, Борисоглебск Бланская ул., 80 (36.9 м) - Фото 1
    2-к кв. Воронежская область, Борисоглебск Бланская ул., 80 (36.9 м) - Фото 2
    2-комнатная квартира, общая площадь 36м², жилая 26м², кухня 4м²

    Пpодaетcя уютная двухкомнатная квартиpа. Из oкон откpывается вид нa улицу, добавляя cвeт и aтмocферу уюта.Ремoнт делал капитальный для ceбя.Cтeны мокpый шелк нa полу кваpцвинил, cделaн вoдяной тёплый пол. Хоpошая шумоизоляция. Вся мебeль вcтpоeнная и...
    • 36 м²
    • 2-ком
    • 2/2 эт.
    6 500 000 Р
    Агент
    +7 (910) Показать номер
    Посмотреть контакты
    3-к кв. Воронежская область, Борисоглебск Северный мкр, 41 (62.0 м) - Фото 1
    3-к кв. Воронежская область, Борисоглебск Северный мкр, 41 (62.0 м) - Фото 2
    3-комнатная квартира, общая площадь 62м², жилая 36м², кухня 13м²

    Объект 478. Продается 3-комнатная квартира в мкр СеверныйОбщая площадь - 62 кв.мЭтаж 5/5В квартире сделан дизайнерский ремонт.Полностью заменена электропроводка, коммуникации, система отопления.В прихожей, ванной и на кухне сделан теплый пол.Плитка на...
    • 62 м²
    • 3-ком
    • 5/5 эт.
    • кирпичный
    6 500 000 Р
    Агент
    +7 (980) Показать номер
    Посмотреть контакты
    2-комнатная квартира: Борисоглебск, Бланская улица, 80 (36.9 м) - Фото 1
    2-комнатная квартира: Борисоглебск, Бланская улица, 80 (36.9 м) - Фото 2
    2-комнатная квартира, общая площадь 36м², жилая 26м², кухня 4м²

    Пpодaетcя уютная двухкомнатная квартиpа. Из oкон откpывается вид нa улицу, добавляя cвeт и aтмocферу уюта.Ремoнт делал капитальный для ceбя.Cтeны мокpый шелк нa полу кваpцвинил, cделaн вoдяной тёплый пол. Хоpошая шумоизоляция. Вся мебeль вcтpоeнная и...
    • 36 м²
    • 2-ком
    • 2/2 эт.
    6 500 000 Р
    Агент
    +7 (960) Показать номер
    Посмотреть контакты
    2-к кв. Воронежская область, Воронеж ул. Фридриха Энгельса, 30 (54.0 ... - Фото 1
    2-к кв. Воронежская область, Воронеж ул. Фридриха Энгельса, 30 (54.0 ... - Фото 2
    2-комнатная квартира, общая площадь 54м², жилая 32м², кухня 7м²

    А может, вы мечтаете, чтобы ваш сын стал великим шахматистом? Или ваша дочь стала великой гимнасткой? И Шахматный клуб и Школа гимнастики им. Штукмана видны из окон.А может, вам просто нравится исторический центр города с неширокими улицами, зелеными...
    • 54 м²
    • 2-ком
    • 4/4 эт.
    • кирпичный
    6 600 000 Р
    Агент
    +7 (915) Показать номер
    Посмотреть контакты
    1-к кв. Воронежская область, Воронеж Херсонская ул., 21А (38.1 м) - Фото 1
    1-к кв. Воронежская область, Воронеж Херсонская ул., 21А (38.1 м) - Фото 2
    1-комнатная квартира, общая площадь 38м², жилая 15м², кухня 11м²

    Продается квартира в ЖК Кислород по адресу: Ленинский район,ул.Херсонская 21а,этаж 5.Общая отапливаемая площадь квартиры 38,1 м2+лоджия 3,5 м2.Преимущества квартиры:Комфортный 5 этаж.Просторная кухня 12 м2, подходит для размещения зоны отдыха.Высота...
    • 38 м²
    • 1-ком
    • 5/18 эт.
    • монолит
    6 500 000 Р
    Агент
    +7 (985) Показать номер
    Посмотреть контакты

    Не нашли подходящего объявления?

    Оставьте заявку, и наши риэлторы подберут квартиру в районе Борисоглебска

    (0)