Реализация объекта недвижимости приостановлена

Информация о коттедже

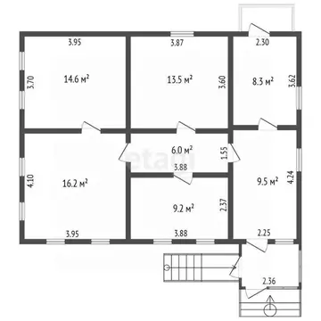
63.0 м2
Площадь
1
Этажность
4.0 cоток
Участок

Дополнительная информация

Дом продаётся вместе с участком
есть
Развернуть

Дом в Борисоглебск, Республиканская улица (63.7 м)

Продаётся уютный частный дом площадью 63,7 м. Просторная планировка: три большие комнаты обеспечивают комфортное проживание семьи любого состава. Удобства: оборудованная большая кухня станет любимым местом сбора всей семьи. Совмещённый санузел обеспечивает удобства современного уровня комфорта. Коммуникации: центральное водоснабжение позволяет забыть о проблемах водоснабжения. Участок: участок богат плодовыми деревьями, которые порадуют вас урожаем каждый сезон. Отдельно стоит отметить наличие гаража с удобной смотровой ямой для самостоятельного обслуживания автомобиля. Код пользователя: 190543Номер в базе:

Читать полностью

    Реализация объекта недвижимости приостановлена

    Не нашли подходящего объявления?

    Оставьте заявку, и наши риэлторы подберут купить дом в районе Борисоглебска

    (0)