4 800 000 Р 62 540 $ или 53 170

Информация о коттедже

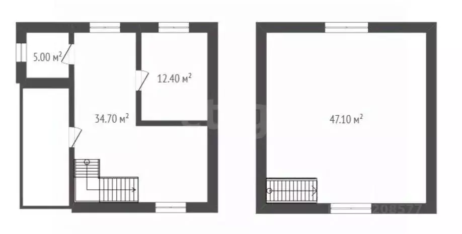
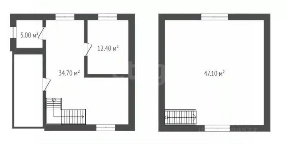
58 м2
Площадь
1
Этажность
5 cоток
Участок

Дополнительная информация

Дом продаётся вместе с участком
есть
Развернуть
Агент
+7 (910) 024-17-26
Начать чат с агентом

Дом в Воронежская область, Борисоглебск Верхореченская ул., 91 (58 м)

Новый дом 58 м с предчистовой отделкойПредставляем вашему вниманию уникальную возможность приобрести новый современный дом, построенный опытной бригадой строителей с более чем 15-летним стажем. Дом сочетает в себе качество, комфорт и современный стиль, что делает его отличным вариантом для семьи, ищущей уютное и функциональное жильё.Основные характеристики:— Общая площадь: 58 м— Планировка позволяет рационально использовать пространство для комфортной жизни.— Стены аккуратно оштукатурены и готовы к оклейке обоями.— Выполнена качественная стяжка пола.— Крыша покрыта надёжной металочерепицей.— Установлены современные энергосберегающие стеклопакеты.Состояние дома:Дом предлагается в предчистовой отделке. Это идеальное решение: вы сразу получаете ровные стены, подготовленные под финишное покрытие, и полы со стяжкой. Вам остаётся только выбрать стиль интерьера по своему вкусу.Локация:Дом находится в новом, активно развивающемся районе. В ближайшее время здесь будет построено ещё минимум 6 домов, что создаст уютное и дружелюбное сообщество. Район тихий и спокойный, при этом в шаговой доступности есть всё необходимое для жизни.Условия сделки:Возможна покупка в ипотеку, в том числе с использованием материнского капитала.Преимущества:— Новый дом — не требует вложений в ремонт старых конструкций.— Современные технологии строительства и качественные материалы.— Опытная строительная бригада с 15-летним стажем.— Возможность оформить ипотеку и маткапитал.Не упустите возможность стать владельцем современного дома в перспективном районе Звоните прямо сейчас и записывайтесь на просмотр. Код пользователя: 147867Номер в базе: 5773663

Читать полностью

    Для того, чтобы купить 1-этажный коттедж по адресу: Борисоглебск, ул. Верхореченская, 91, позвоните по телефону +7 (910) 024-17-26. Торопитесь! Объявление №50016107632 о продаже одноэтажного коттеджа опубликовано 14 февраля 2026.

    Позвонить Написать
    4 800 000 Р62 540 $ или 53 170
    Агент
    +7 (910) 024-17-26
    Начать чат с агентом
    Похожие предложения
    Дом в Воронежская область, Борисоглебск ул. Бориса и Глеба, 1 (180 м) - Фото 1
    Дом в Воронежская область, Борисоглебск ул. Бориса и Глеба, 1 (180 м) - Фото 2
    2 этажа, общая площадь 180м², участок 9 соток

    Внимание Продается дом особняк в современном, развивающемся микрорайоне, рядом новая школа 4, ледовый дворец, детский сад.В дом подведено электричество.С двух сторон уже установлен забор.Дом без отделки, требует полного ремонта.Закуплены стойматериалы...
    • 2 эт.
    • 180 м²
    • 9 сот.
    4 900 000 Р
    Агент
    +7 (910) Показать номер
    Посмотреть контакты
    Дом в Воронежская область, Борисоглебск пер. Кольцова, 19 (51 м) - Фото 1
    Дом в Воронежская область, Борисоглебск пер. Кольцова, 19 (51 м) - Фото 2
    1 этаж, общая площадь 50м², участок 5 соток

    Продается уютный дом в районе Станицы Этот замечательный объект недвижимости площадью 50 м расположен на ухоженном участке в 6 соток. Идеальное место для комфортной жизни или дачного отдыха. Свежий ремонт и новый котел обеспечивают уют и тепло в любое...
    • 1 эт.
    • 50 м²
    • 5 сот.
    4 750 000 Р
    Агент
    +7 (910) Показать номер
    Посмотреть контакты
    Дом в Воронежская область, Воронеж Боровое мкр, ул. Людмилина (65 м) - Фото 1
    Дом в Воронежская область, Воронеж Боровое мкр, ул. Людмилина (65 м) - Фото 2
    2 этажа, общая площадь 65м², участок 8 соток

    Арт.Продаётся дом в стадии строительства — отличная возможность приобрести дом по цене однокомнатной квартиры Основные характеристики: участок:8 соток, ровный;подъезд для техники на участок;вторые ворота; вид из окон: с одной стороны — на храм, с другой...
    • 2 эт.
    • 65 м²
    • 8 сот.
    4 700 000 Р
    Агент
    +7 (933) Показать номер
    Посмотреть контакты
    Дом в Воронежская область, Новоусманский район, Усманское 1-е с/пос, ... - Фото 1
    Дом в Воронежская область, Новоусманский район, Усманское 1-е с/пос, ... - Фото 2
    2 этажа, общая площадь 80м², участок 5 соток

    Продаю Дом 80 м2 2023 года постройки в с. Новая Усмань, СНТ Усманка. Локация у реки, , без пробок можно доехать за 40 минут из Центра Воронежа (23 км). Дорога асфальтирована, недалеко от трассы М-4 Дон, дорога на СНТ закрывается шлагбаумом, охраняемая...
    • 2 эт.
    • 80 м²
    • 5 сот.
    4 760 000 Р
    Агент
    +7 (985) Показать номер
    Посмотреть контакты
    Дом в Воронежская область, Семилукское с/пос, с. Ендовище ул. ... - Фото 1
    Дом в Воронежская область, Семилукское с/пос, с. Ендовище ул. ... - Фото 2
    1 этаж, общая площадь 67м², участок 24 сотки

    Арт.Продаётся дом в экологически чистом месте Воронежской области, с. Ендовище, ул. Гагарина д.85Тихое и уединенное место вдали от городской суеты, рядом река Ведуга.До остановки и магазинов пешком около 25 минутДом кирпичный с газовым отоплением. Тёплый...
    • 1 эт.
    • 67 м²
    • 24 сот.
    4 800 000 Р
    Агент
    +7 (985) Показать номер
    Посмотреть контакты

    Не нашли подходящего объявления?

    Оставьте заявку, и наши риэлторы подберут купить дом в районе Борисоглебска

    (0)