Реализация объекта недвижимости приостановлена

Информация о коттедже

116.0 м2
Площадь
1
Этажность
6.0 cоток
Участок

Дополнительная информация

Дом продаётся вместе с участком
есть
Развернуть

Дом в Борисоглебск, улица 7 Ноября (116.9 м)

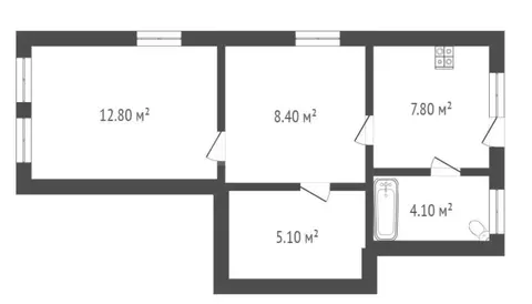
Дом площадью 116,9 м в тихом уютном месте — комфортное жильё по доступной цене Продается жилой дом площадью 116,9 м, расположенный в тихом и уютном районе. Отличный вариант для семьи, которая ценит тишину, удобство и близость к инфраструктуре.Планировка дома:2 спальни, в одной из которых выполнен качественный ремонтКухняСовмещенный санузел, установлен бойлерКрыльцо (неотапливаемое помещение)Дом пригоден для проживания, требует незначительного косметического ремонта. Мебель полностью сохраняется, можно сразу заезжать и жить.Участок – 6 соток:Плиточное покрытие двораГараж, времянка, хозпостройкиНебольшой палисадник перед домом – идеально для цветовОгород с плодородной землейПодъезд к дому асфальтированный, что обеспечивает комфорт в любое время года.Развитая инфраструктура рядом: церковь, магазины, школа, детский сад и другие объекты. Удобное расположение + готовность к проживанию = отличное предложение Звоните прямо сейчас Код пользователя: 177868Номер в базе: 6795268

Читать полностью

    Реализация объекта недвижимости приостановлена

    Не нашли подходящего объявления?

    Оставьте заявку, и наши риэлторы подберут купить дом в районе Борисоглебска

    (0)